MAISON DE VILLE NIMES JEAN JAURES / JARDINS DE LA FONTAINE
Images
Description
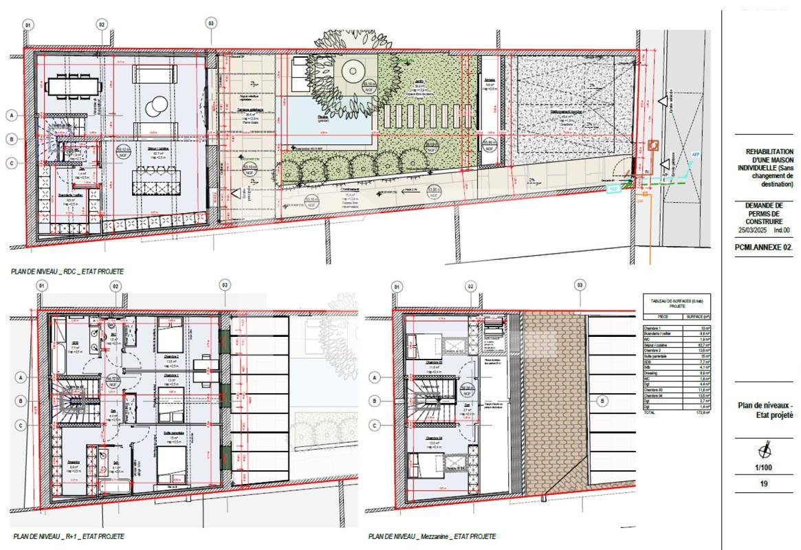
JULIEN BEAUMONT DE L'AGENCE REGARD VOUS PROPOSE A LA VENTE UN PROJET D'EXCPETION AU COEUR DE LA VILLE DE NIMES.
Ancienne chaudronnerie avec permis de construire accepté sur un Emplacement premium.
Situé dans l'un des secteurs les plus recherchés de Nîmes, à deux pas des Jardins de la Fontaine et du boulevard Jean-Jaurès, ce bien rare offre une opportunité unique de créer une maison de ville contemporaine sur un emplacement exceptionnel, sans aucun vis-à-vis.
L'ensemble immobilier se compose actuellement de deux bâtiments édifiés sur une parcelle de 274 m², anciennement à usage de chaudronnerie.
Un permis de construire accepté permet la réalisation d'une maison de ville haut de gamme, pensée pour conjuguer confort, volumes et intimité.
Le projet autorisé propose :
Une maison de ville contemporaine de 173 m2.
5 chambres.
Un vaste salon / séjour / cuisine baigné de lumière.
Un puits de lumière central apportant une luminosité naturelle exceptionnelle.
Un double garage.
Un toit végétalisé.
Un jardin paysagé avec l'intégration d'une piscine.
Des essences naturelles pour un cadre verdoyant et apaisant.
Un projet personnalisable
L'aménagement intérieur reste entièrement modulable, offrant aux futurs acquéreurs la liberté de concevoir un espace de vie sur mesure, en adéquation avec leurs besoins et leurs envies.
Les atouts :
Emplacement ultra recherché.
Proximité immédiate du centre-ville.
Aucun vis-à-vis.
Permis de construire purgé.
Rare opportunité de création d'une maison neuve en cœur de Nîmes.
Un bien exceptionnel, destiné à une clientèle en quête d'un projet unique alliant emplacement, prestige et liberté architecturale.
Dossier complet et plans sur demande.
N'hésitez pas à prendre contact avec JULIEN BEAUMONT DE L'AGENCE REGARD pour une première visite de cette maison de ville en vente sur Nîmes.
Diagnostics énergétiques
Consommation énergétique (DPE)
Information sur la consommation énergétique non disponible.
Émissions de Gaz à effet de serre (GES)
Information sur les émissions de gaz à effet de serre non disponible.
Logement susceptibles de vous intéresser
Nous vous proposons de découvrir aussi cette sélection de logements situés à moins de 10km de Nîmes et qui seraient susceptibles de vous intéresser.
Nîmes
MAISONJULIEN BEAUMONT DE L’AGENCE REGARD VOUS PROPOSE A LA VENTE UN PROJET D’EXCPETION AU COEUR DE LA VILLE DE NIMES.Ancienne chaudronnerie avec permis de construire accepté sur un Emplacement premium.Situé dans l’un des secteurs les plus recherchés de Nîmes, à deux pas des Jardins de la Fontaine et du boulevard Jean-Jaurès, ce bien rare offre une opportunité unique de créer une maison de ville contemporaine sur un emplacement exceptionnel, sans aucun vis-à-vis.L’ensemble immobilier se compose actuellement de deux bâtiments édifiés sur une parcelle de 274 m², anciennement à usage de chaudronnerie.Un permis de construire accepté permet la réalisation d’une maison de ville haut de gamme, pensée pour conjuguer confort, volumes et intimité.Le projet autorisé propose :Une maison de ville contemporaine de 173 m2.5 chambres.Un vaste salon / séjour / cuisine baigné de lumière.Un puits de lumière central apportant une luminosité naturelle exceptionnelle.Un double garage.Un toit végétalisé.Un jardin paysagé avec l’intégration d’une piscine.Des essences naturelles pour un cadre verdoyant et apaisant.Un projet personnalisableL’aménagement intérieur reste entièrement modulable, offrant aux futurs acquéreurs la liberté de concevoir un espace de vie sur mesure, en adéquation avec leurs besoins et leurs envies.Les atouts :Emplacement ultra recherché.Proximité immédiate du centre-ville.Aucun vis-à-vis.Permis de construire purgé.Rare opportunité de création d’une maison neuve en cœur de Nîmes.Un bien exceptionnel, destiné à une clientèle en quête d’un projet unique alliant emplacement, prestige et liberté architecturale.Dossier complet et plans sur demande.N’hésitez pas à prendre contact avec JULIEN BEAUMONT DE L’AGENCE REGARD pour une première visite de cette maison de ville en vente sur Nîmes.
Poulx
MAISONSOPHIE MELLADO DE L’AGENCE REGARD VOUS PRESENTE CETTE BELLE MAISON DE 150 M2 AVEC PISCINE SUR 1250 M2 DE TERRAIN DANS UN ENVIRONNEMENT RESIDENTIEL ET CAMPAGNE A POULX, PROCHE DE NÎMES, Construite en 2000, la maison, exposée sud, offre une belle pièce de vie de 40 m2 avec une cuisine ouverte et équipée de près de 14 m2 donnant sur une grande terrasse côté piscine. Une cuisine d’été permet de passer de bons moments de détente avec famille et amis. La maison possède 4 chambres dont une est au RDC et voisine d’une grande salle d’eau de presque 10 m2. A l’étage, on trouve 3 belles chambres avec chacune des placards, une salle d’eau et un WC séparé. Un grand garage de 44 m2 isolé et trois places de parking permettent de stationner les véhicules. Cette maison, de type méditerranéenne traditionnelle est de belle facture et ne demande qu’à être adoptée. Une belle opportunité proche de Nîmes et de toutes les commodités. On trouve l’École Élémentaire Georges Brassens et l’École Maternelle Georges Brassens à moins de 10 minutes à pied. L’autoroute A9 et la nationale N106 sont accessibles à moins de 9 km. Il y a un tennis et un restaurant à proximité. Les informations sur les risques auxquels ce bien est exposé sont disponibles sur le site Géorisques : www.georisques.gouv.fr. Contactez votre agence immobilière REGARD pour plus de renseignements sur cette maison indépendante à vendre à POULX.
Nîmes
MAISONJULIEN BEAUMONT DE L’AGENCE REGARD VOUS PROPOSE CETTE MAISON TRADITIONELLE 4 CHAMBRES AVEC PISCINE SUR TERRAIN DE 484m2.Située dans un secteur calme et agréable, cette belle maison traditionnelle de 2005 offre un cadre de vie confortable et parfaitement entretenu.D’une superficie de 116 m², elle se compose au rez-de-chaussée d’une vaste pièce de vie lumineuse bénéficiant d’un plancher chauffant, d’une cuisine équipée, ainsi que d’un WC indépendant, une salle d’eau,une buanderie et une chambre en demi pallier.Un accés direct a un agarge de presque 30m2 complete l’ensemble du Rez de chausséeÀ l’étage, vous trouverez trois chambres, une salle de bain et un second WC séparé.Une chambre a l’etage bénéficie d’une douche privative.La maison est équipée de la climatisation réversible et d’une chaudière gaz en excellent état, assurant confort et économies d’énergie.Les prestations sont de qualité : menuiseries PVC double vitrage, volets roulants électriques avec moustiquaires, VMC, adoucisseur d’eau et fibre optique.À l’extérieur, vous profiterez d’un terrain clos de 484 m², agrémenté d’une piscine 7×3 m avec SPA integré, plage carrelée, régulateur de pH et traitement au sel récent.N’hésitez pas à prendre contact avec Julien BEAUMONT de l’Agence REGARD pour une première visite de cette maison en vente sur Nîmes.Cette maison allie confort et entretien irréprochable un bien rare sur le marché, prêt à accueillir ses nouveaux propriétaires.
Nîmes
MAISONEMILIE BARRA DE L’AGENCE REGARD VOUS PROPOSE A LA VENTE SUR NIMES UNE VILLA DE 140m² ENVIRON AVEC PISCINE ET GARAGESituée dans un quartier prisé à Nîmes, cette villa contemporaine de 2025 propose un cadre de vie calme, moderne et lumineux. Dès l’entrée, l’espace de vie séduit par son harmonie : un vaste séjour ouvert sur la grande terrasse en bois, suivi d’une cuisine haut-de-gamme qui magnifie l’ensemble. Les grandes baies vitrées attirent naturellement le regard vers la terrasse exposée plein sud, où la piscine cerclée de bois se fond dans le paysage, comme une évidence.Le rez-de-chaussée accueille également une buanderie, un toilette séparé, un espace de rangementainsi qu’un accès direct au garage, pratique et discret.À l’étage, quatre belles chambres offrent de vrais volumes, dont une suite parentale avec sa propre douche. Une salle de bain supplémentaire, équipée d’une baignoire et d’une douche à l’italienne, ainsi qu’un toilette indépendant complètent ce niveau.La maison bénéficie d’équipements modernes : domotique avec gainable Airzone, volets roulants électriques, système Verisure, et une performance énergétique rare grâce à son DPE classé A.Le garage permet d’accueillir une voiture et une moto, ainsi que du rangement complémentaire tandis que la 1ère cour d’entrée laisse la possibilité de garer deux véhicules.Un des atouts de cette villa récente reste la vue exceptionnelle qu’elle offre depuis la terrasse, la piscine et même la chambre parentale : un panorama ouvert sur la nature nîmoise et un ciel qui semble ne jamais finir. Un décor dont on ne se lasse pas.D’autres avantages sont à découvrir lors d’une visite guidée par mes soins.Nous sommes à 5mn des transports en communs, 10mn des 1ers commerces, 5 mn du CHU, 10mn de l’autoroute A9.
Nîmes
MAISONEMMANUELLE SILVESTRE DE L’AGENCE REGARD IMMOBILIER VOUS PROPOSE EN EXCLUSIVITE CETTE BELLE MAISON FAMILIALE DE 238 M2 AVEC PISCINE INCLUANT UNE DEPENDANCE SUR UN TERRAIN BOISE DE 3200 M2.Cette superbe maison à étages de 238 m2 ravira les amoureux de pierres sèches et de pleine nature.Elle se compose au RDC d’une belle entrée avec point d’eau et WC, d’un grand salon-séjour de 54 m2 avec cheminée, d’une cuisine séparée et d’un bureau.Au 1er étage elle propose 4 belles chambres, une salle de bain, une salle d’eau et un WC séparé.Au 2ème étage vous accèderez à une grande dépendance de 51 m2 comprenant également une salle d’eau avec WC.Nichée dans la verdure une très jolie piscine au sel et un pool house raviront famille et amis.Un garage vient compléter ce bien.Cette belle propriété permet d’accueillir environ 6 véhicules.Cette maison de famille vous offrira un cadre de vie exceptionnel en pleine nature et à seulement à quelques minutes en voiture du centre ville de Nîmes dans un quartier très recherché : A VOIR ABSOLUMENT !Envie d’en savoir plus sur cette maison à vendre ? Prenez contact avec Emmanuelle SILVESTRE
Caissargues
MAISONFABIEN & LOTFI DE L’AGENCE REGARD VOUS PROPOSENT UNE VILLA FAMILIALE F5 A PROXIMITÉ DE NIMES AVEC GARAGE, TERRASSES ET JARDINSur un terrain de 422 m², découvrez cette grande villa familiale et ses nombreux atouts.Des arbres fruitiers, une terrasse couverte, un recoin barbecue : tout se prêt à des moments familiaux et entres amis !En rez-de-chaussée : un hall d’entrée digne d’une hacienda, desservant un salon d’un côté et un espace séjour/cuisine de l’autrePar cette pièce vous pourrez d’ailleurs accéder à la terrasse couverte.Sur le même niveau vous trouverez une buanderie, un wc et l’accès au grand garage.Au 1er étage, un palier lumineux vous mènera aux trois chambres, toutes équipées de placards, aux 2 salles de bains/eau et wc indépendant.Un bureau pouvant faire office de chambre d’appoint complète l’étage.De plus, vous ne pourrez qu’être charmé par cette grande terrasse couverte accessible par ce palier, vous procurant un espace agréable pour bouquiner en plein air….Construction traditionnelle, avec prestations confortables : climatisation réversible, chauffage central au gaz, double-vitrage, …La maison est située dans la commune de Caissargues, à proximité de la ligne Tram’bus.On trouve des écoles maternelles et élémentaires à proximité. L’aéroport Nimes-Garons est accessible à moins de 20 km. Il y a de nombreux restaurants et un bureau de poste à moins de 10 minutes.N’hésitez pas à contacter votre agence REGARD pour plus de renseignements sur cette maison en vente à CAISSARGUES.
Nîmes
MAISONJULIEN BEAUMONT DE L’AGENCE REGARD VOUS PROPOSE À LA VENTE EN EXCLUSIVITE CETTE SUPERBE VILLA SITUE DANS LE QUARTIER RECHERCHE DE LA PLANETTE A NÎMES.Située dans le quartier prisé et recherché de La Planette à Nîmes, découvrez cette superbe maison de 185 m² habitables, implantée sur une belle parcelle de 2 000 m², sans aucun vis-à-vis.Cette propriété, actuellement en cours de rénovation complète, sera livrée au 1er trimestre 2026. Elle allie le charme de l’ancien à la qualité du neuf : électricité, plomberie, toiture, étanchéité, gouttières… tout est refait à neuf vace garantie décenalle et dommage ouvrage.Elle se compose de 4 chambres spacieuses, d’une grande pièce de vie lumineuse ouverte sur le jardin et la piscine, ainsi que d’un garage.Véritable maison à la carte, elle offre à ses futurs propriétaires la possibilité de choisir les finitions : carrelages, cuisine, garde-corps de la terrasse, et bien plus encore. L’entrepreneur en charge du projet accompagne chaque acquéreur pour personnaliser la maison selon ses goûts et son style de vie.Côté extérieur, vous profiterez d’un bel espace paysager avec piscine, dans un environnement calme et verdoyant, à seulement quelques minutes du centre-ville de Nîmes.Un bien rare sur le secteur, combinant le confort du neuf, la tranquillité, et la liberté de personnaliser votre futur chez-vous.Livraison prévue : 1er trimestre 2026Quartier La Planète – Nîmes185 m² habitables – 2 000 m² de terrain – 4 chambres – Garage – PiscineN’hésitez pas à prendre contact avec Julien BEAUMONT de l’Agence REGARD pour une première visite de cette maison en vente sur Nîmes.
Caveirac
MAISONFLORIANE LE GOFF DE L’AGENCE REGARD VOUS PROPOSE SUR LA COMMUNE DE CAVEIRAC CETTE VILLA DE PLAIN PIED SUR UN TERRAIN CLOS DE 500M2 AVEC GARAGE ET TERRASSEElle se compose d’un séjour ouvert sur la cuisine équipée, une salle d’eau, un WC, trois chambres.Prestations: climatisation réversible, volets roulants solaires avec moustiquaires, menuiseries pvc double vitrage.La villa est située proche de toutes commmodités.Prenez contact avec FLORIANE de l’AGENCE REGARD pour une première visite de cette maison en vente.
Clarensac
MAISONRUBEN STREET DE L’AGENCE REGARD VOUS PROPOSE CETTE MAISON FAMILIALE DE 132m2 AVEC 4 CHAMBRES, JARDIN ET PISCINEElle est agencée comme suit,Au rez-de-chaussée, vous trouverez une grande pièce de vie lumineuse avec séjour-cuisine donnant sur deux terrasses,Vous bénéficierez d’un cellier et d’une buanderie ainsi qu’un premier wc séparé, et d’un coin bureau.Au 1er étage, vous profiterez de 4 chambres, dont une avec salle d’eau privative, d’une deuxième salle de bains, ainsi qu’un deuxième wc séparé.Nombreuses prestations telles que la climatisation réversible gainable, une aspiration centralisée, menuiseries double vitrage, volets roulants motorisée, portail coulissant motorisé…Le terrain du bien s’étend sur 500 m², et dispose de plusieurs places de parking.L’École Maternelle Gérard Cazeneuve, le Collège Théodore Monod et l’École Élémentaire Marie Pape Carpantier sont implantés à moins de 10 minutes à pied, tout comme une crèche. Côté transports, on trouve cinq gares à moins de 10 minutes en voiture. Les autoroutes A54 et A9 et les nationales N106 et N113 sont accessibles à moins de 10 km. Vous trouverez un tennis à quelques minutes à peine. Il y a également des restaurants, deux commerces, une boulangerie, un bureau de poste, deux épiceries et une boucherie-charcuterie.Les informations sur les risques auxquels ce bien est exposé sont disponibles sur le site Géorisques : www.georisques.gouv.fr.Prenez contact avec votre agent immobilier Ruben STREET DE L’AGENCE REGARD pour une première visite de cette maison à vendre.
L’actualité immobilière à Nîmes
13/10/2022
07/10/2022
03/10/2022
26/09/2022
16/09/2022
09/09/2022