Maison a Vendre
Image de background

Vue panoramique pour cette magnifique villa Au temps des bastides de 296 m² à Rognes

1390000 €
296 m²
4 696 €/m²
Rognes
Bouches-du-Rhône (13)
MAISON
Réf externe: LPVM270329213840
Annonce publiée le 9 avril 2026

Images

Description

Bienvenue chez Abriculteurs, l'agence familiale qui s'engage à un service d'exception. Découvrez une présentation soignée de ce bien : des photos pro, un plan détaillé et une visite virtuelle immersive pour vous projeter. Faites confiance à notre expertise pour transformer vos projets immobiliers en réussites remarquables.

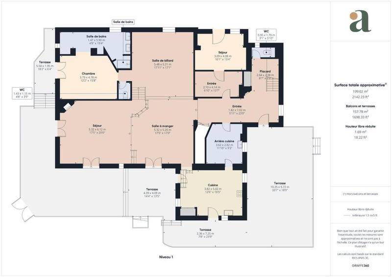
Située à Rognes, dans un cadre exceptionnel avec vue dégagée jusqu'aux Alpes, cette villa de 296 m² habitables offre des volumes généreux et des prestations de qualité sur un terrain de 12 000 m².

Un intérieur spacieux dès l'entrée, vous serez séduit par le volume de la pièce de vie en double hauteur, agrémentée d'une cheminée, prolongée d'un espace billard et d'un bureau (pouvant faire office de suite supplémentaire).
La cuisine, fonctionnelle et conviviale, est complétée par une arrière-cuisine discrète.
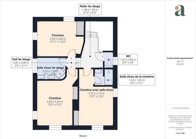
La suite parentale au niveau principal, dispose de son propre dressing, d'une salle d'eau et de WC indépendants.

À l'étage, trois chambres, dont une avec salle d'eau privative et WC, une seconde salle d'eau avec WC et des WC indépendants complètent l'espace nuit.

Un sous-sol aménagé pour votre bien-être
En rez-de-jardin, un espace détente équipé d'un sauna et d'un spa, avec possibilité d'y aménager une salle de sport ainsi qu' une cave, un garage vous attendent.

Un extérieur à couper le souffle
La piscine à débordement chauffée au sel (12 x 6 m), sécurisée par un volet roulant, s'intègre parfaitement à l'environnement naturel, avec pour toile de fond une vue panoramique imprenable.

Les + du bien :

Vue dégagée jusqu'aux Alpes

Piscine à débordement chauffée, au sel et sécurisée

Espace bien-être avec sauna & spa

Terrain de 12 000 m²

Volumes intérieurs généreux

Maison en excellent état

À noter :

Taxe foncière : 3 857 € / an

DPE : C (87 kWhEP/m².an) – GES : C (26 kg CO₂/m².an)

Estimation du coût annuel d'énergie : entre 2 040 € et 2 800 € (abonnements inclus – année de référence 2021)

Prix de présentation : 1 390 000 € TTC
(Honoraires à la charge du vendeur)

Les informations sur les risques auxquels ce bien est exposé sont disponibles sur le site Géorisques : www.georisques.gouv.fr

Ce bien est proposé à la vente interactive sur le site SQUARIMO.
Le prix affiché est un prix de présentation qui n'engage pas le vendeur.
La participation à la vente interactive de SQUARIMO n'entraîne aucun frais supplémentaire, ni pour l'acquéreur ni pour le vendeur.
La participation est soumise à un agrément préalable de SQUARIMO.
Les offres seront transmises au vendeur, qui reste libre de choisir parmi celles formulées.
Une offre déposée sur le site SQUARIMO constitue une intention de négocier de bonne foi et non un engagement d'acquérir.

Annonce rédigée sous la responsabilité éditoriale de Mme PEFFERT Laura , agent commercial (EI), immatriculé au RSAC de Salon-de-Provence sous le n° 904 617 404, sans détention de fonds, agissant pour le compte de la SARL Abriculteurs immobilier, au capital de 5 000 €, immatriculée sous le SIREN n° 837 704 584, titulaire de la carte professionnelle n° CPI 7501 2018 000 025 842 délivrée par la CCI de Paris Île-de-France, dont le représentant légal est M. Adrien Piot, ayant son siège social au 12 rue des Halles, 75001 Paris.
Les informations sur les risques auxquels ce bien est exposé sont disponibles sur le site www.georisques.gouv.fr

Laura PEFFERT
EI • RSAC SALON-DE-PROVENCE 904 617 404

Diagnostics énergétiques

Consommation énergétique (DPE)

A B C D E F G

Émissions de Gaz à effet de serre (GES)

A B C D E F G

CONTACTER

Logement susceptibles de vous intéresser

470 000 € 3 032 €/m²
155 m²

Lambesc

MAISON

Bienvenue chez Abriculteurs, l’agence familiale qui s’engage à un service d’exception. Découvrez une présentation soignée de ce bien : des photos pro, un plan détaillé et une visite virtuelle immersive pour vous projeter. Faites confiance à notre expertise pour transformer vos projets immobiliers en réussites remarquables.CO-EXCLUSIVITÉ – LAMBESC (13410) – Située en périphérie du village, cette maison de type 6 offre de beaux volumes et une vue dégagée sur les champs environnants. Implantée sur une parcelle plane et clôturée de plus de 4 800 m², sa localisation permet un accès rapide aux axes routiers.Le rez-de-chaussée comprend un séjour de 54 m² avec cheminée et climatisation, donnant sur une terrasse. Il est complété par une cuisine indépendante et son cellier attenant.Côté nuit, ce niveau propose deux chambres, une salle de bains et une salle d’eau (2 WC au total).L’étage se compose d’une grande chambre double distribuant une seconde chambre en enfilade avec WC privatif, offrant de multiples possibilités d’aménagement (bureau, dressing ou espace junior).Extérieur et annexes : jardin entièrement clôturé, abri de jardin et garage de 27 m². Stationnement facile sur la parcelle.Les + du bien : – Espace de vie de 54 m² – 2 chambres de plain-pied – Garage de 27 m² – Terrain plat et clôturé, nombreux arbres fruitiersÀ noter : – Etat du bien : à rafraichir – Eau du canal – Fosse septique à rénoverConsommation conventionnelle (kWhEP/m2.an) : 183 (D)Estimation des émissions (kg CO2/m2.an) : 43 (D)Coût de l’énergie min / max : entre 2 200 € et 3 050 € / anAnnée de référence des prix : 2021Prix de vente : 450 000 € (hors honoraires agence).Honoraires à la charge de l’acquéreur de 20 000 € TTC représentant un total de 470 000 € TTC (honoraires d’agence inclus), soit 4,44 % du prix de vente.Les informations sur les risques auxquels ce bien est exposé sont disponibles sur le site Géorisques : www.georisques.gouv.frAnnonce rédigée sous la responsabilité éditoriale de M. Matthieu Richier, agent commercial (EI), immatriculé au RSAC de Salon-de-Provence sous le n° 850 335 530, sans détention de fonds, agissant pour le compte de la SARL Abriculteurs immobilier, au capital de 5 000 €, immatriculée sous le SIREN n° 837 704 584, titulaire de la carte professionnelle n° CPI 7501 2018 000 025 842 délivrée par la CCI de Paris Île-de-France, dont le représentant légal est M. Adrien Piot, ayant son siège social au 12 rue des Halles, 75001 Paris.Les informations sur les risques auxquels ce bien est exposé sont disponibles sur le site www.georisques.gouv.frMatthieu RICHIEREI • RSAC SALON-DE-PROVENCE 850 335 530

870 000 € 5 118 €/m²
170 m²

Puyvert

MAISON

Bienvenue chez Abriculteurs, l’agence familiale qui s’engage à un service d’exception. Découvrez une présentation soignée de ce bien : des photos professionnelles, un plan détaillé et une visite virtuelle immersive pour vous projeter. Faites confiance à notre expertise pour transformer vos projets immobiliers en réussites remarquables.Un panorama unique au cœur de la ProvenceOffrant une vue imprenable sur le massif du Luberon, cette villa d’architecte de 170 m², construite en 2009, séduit par sa localisation recherchée et son environnement.Le domaine s’étend sur un spectaculaire terrain de 7 900 m², comprenant une authentique truffière privée de 2 000 m², ainsi qu’un jardin paysager agrémenté d’oliviers.Ce cadre naturel préservé vous garantit une quiétude absolue, à seulement quelques minutes du village de Lourmarin, tout en restant facilement accessible à l’ensemble des commodités locales.Dès l’entrée, vous serez séduit par la clarté exceptionnelle de la vaste pièce à vivre en L.Les baies vitrées à galandage créent une véritable continuité entre l’intérieur et la nature environnante, offrant des espaces lumineux et ouverts sur l’extérieur.Un poêle à bois moderne ajoute une touche de convivialité, tandis que la grande cuisine dînatoire, entièrement équipée est complétée par une arrière-cuisine et un cellier pour un quotidien fonctionnel.L’espace nuit est conçu pour préserver l’intimité de chaque membre de la famille.Au rez-de-chaussée, une suite parentale lumineuse s’ouvre directement sur la terrasse et bénéficie d’une salle d’eau privative et de nombreux rangements intégrés. À l’étage, un grand plateau polyvalent distribue trois chambres spacieuses, une salle de bains moderne et une seconde terrasse, l’idéal pour aménager un bureau ou un salon de détente selon vos besoins.L’art de vivre en extérieurProfitez pleinement de la douceur provençale grâce à plus de 100 m² de terrasses, dont une partie couverte idéale pour vos repas en plein air et vos soirées d’été. Le jardin paysager s’organise autour d’un terrain de pétanque et d’une cuisine d’été parfaitement équipée, créant un espace convivial pour recevoir famille et amis en toute saison.Le terrain est piscinable, vous laissant la possibilité d’aménager ultérieurement un espace baignade selon vos envies.Confort et performances modernesLa villa propose des prestations de qualité : menuiseries à galandage, isolation performante (DPE classé B), pompe à chaleur récente pour un chauffage économique et confortable, double vitrage intégral, climatisation, fibre optique.Un garage et des places de stationnement privatives complètent le tout.Les + du bien :•Emplacement privilégié avec vue sur le Luberon et environnement naturel exceptionnel (truffière, oliviers)•Confort moderne : pompe à chaleur, isolation optimisée•Prestations récentes : construction traditionnelle, grands volumes, cuisine d’été, terrain piscinable, espaces extérieurs aménagés•Organisation intérieure idéale pour la vie de famille•Fibre optique et équipements connectésInformations complémentaires :•Taxe foncière : 1 370 € / an•Coût chauffage : 820 € à 1 120 € / an (pompe à chaleur)•État du bien : impeccable, aucun travaux à prévoir•Assainissement : tout-à-l’égout•DPE & GES : consommation 98 (B) / émissions 3 (A)•Estimation des coûts d’énergie : entre 1 420 € et 1 980 € par an•Parking : 2 emplacementsPrix de vente : 870 000 € TTC (Honoraires Abriculteurs à la charge du vendeur)Ce bien a retenu votre intérêt ? Pour organiser la visite avec nous, rien de plus simple, prenez rendez-vous en ligne au moment qui vous convient le mieux.Les informations sur les risques auxquels ce bien est exposé sont disponibles sur le site Géorisques : www.georisques.gouv.frAnnonce rédigée sous la responsabilité éditoriale de Madame Sophie Maucotel, agent commercial (EI) immatriculé au RSAC d’Avignon sous le numéro 928034008, sans détention de fonds, agissant pour le compte de la SARL Abriculteurs immobilier au capital de 5 000,00 € immatriculée sous le numéro de SIREN 837 704 584, titulaire de la carte professionnelle n°CPI 7501 2018 000 025 842 délivrée par la CCI de Paris Ile-de-France dont le représentant légal est Monsieur Adrien Piot, ayant son siège social au 12 rue des Halles, 75001 Paris.Les informations sur les risques auxquels ce bien est exposé sont disponibles sur le site www.georisques.gouv.frSophie MAUCOTELEI • RSAC AVIGNON 928 034 008

132 000 € 5 077 €/m²
26 m²

Lambesc

MAISON

Bienvenue chez Abriculteurs, l’agence familiale qui s’engage à un service d’exception. Découvrez une présentation soignée de ce bien : des photos pro, un plan détaillé et une visite virtuelle immersive pour vous projeter. Faites confiance à notre expertise pour transformer vos projets immobiliers en réussites remarquables.Situé dans le centre-village de Lambesc (13410), au calme et toutes commodités à pied, ce plateau de 26,90 m² (hors copropriété) est vendu hors d’eau et hors d’air.L’aménagement intérieur reste à prévoir et permet la création d’un séjour avec cuisine, d’une salle de bains avec WC et d’un espace nuit en mezzanine grâce à sa belle hauteur sous plafond.Une place de parking privative complète ce bien.Les + du bien :- Toutes commodités à pied – Bien hors copropriété- Stationnement privatif- Potentiel d’optimisation de l’espace grâce au volume sous toitureÀ noter :- Etat du bien : travaux à prévoir- Eau de ville- Tout à l’égoutPerformance énergétique :- Bien non soumis au DPEPrix de vente : 132 000 € TTC (Honoraires Abriculteurs à la charge du vendeur).Les informations sur les risques auxquels ce bien est exposé sont disponibles sur le site Géorisques : www.georisques.gouv.frAnnonce rédigée sous la responsabilité éditoriale de M. Matthieu RICHIER , agent commercial (EI), immatriculé au RSAC de Salon de Provence sous le n° 850 335 530, sans détention de fonds, agissant pour le compte de la SARL Abriculteurs immobilier, au capital de 5 000 €, immatriculée sous le SIREN n° 837 704 584, titulaire de la carte professionnelle n° CPI 7501 2018 000 025 842 délivrée par la CCI de Paris Île-de-France, dont le représentant légal est M. Adrien PIOT, ayant son siège social au 12 rue des Halles, 75001 Paris.Les informations sur les risques auxquels ce bien est exposé sont disponibles sur le site www.georisques.gouv.frMatthieu RICHIEREI • RSAC SALON-DE-PROVENCE 850 335 530

1 090 000 € 4 325 €/m²
252 m²

Rognes

MAISON

Bienvenue chez Abriculteurs, l’agence familiale qui s’engage à un service d’exception. Découvrez une présentation soignée de ce bien et en avant première. Faites confiance à notre expertise pour transformer vos projets immobiliers en réussites remarquables.Nichée dans le secteur très recherché des Garrigues à Rognes, cette demeure de caractère déploie environ 252 m² de surface au sein d’un environnement typiquement provençal. La résidence principale, ayant bénéficié d’une rénovation de qualité en 2016, propose 207 m² d’espaces de vie lumineux. Le rez-de-chaussée se distingue par ses volumes généreux, incluant une salle à manger sous plafond cathédrale, un vaste séjour avec verrière et poêle à bois, ainsi qu’un salon d’hiver avec cheminée. Une cuisine ouverte moderne, deux suites parentales de plain-pied, un bureau et une buanderie complètent ce niveau fonctionnel. À l’étage, l’espace se prolonge par une salle de jeux avec cheminée, deux chambres additionnelles, une salle d’eau et un balcon.En complément, une habitation d’amis indépendante de 45 m² permet d’accueillir vos proches ou de générer un revenu locatif en toute intimité, grâce à son séjour, sa cuisine, sa chambre et son jardinet privatif.Le parc paysager de 6 200 m², entièrement clos et sécurisé par un portail motorisé, est une véritable oasis de détente avec sa piscine chauffée de 11×5 mètres, son pool-house et son boulodrome. Les passionnés d’équitation disposeront d’infrastructures dédiées comprenant quatre boxes, un atelier et un espace de 2 000 m² pouvant servir de paddock ou de carrière. Cette propriété unique allie avec brio l’authenticité de la Provence et des prestations haut de gamme pour une qualité de vie exceptionnelle.Les + du bien :- Rénovation faite avec goût- Terrain clôturé de plus de 6 200 m²- Terrasses- Eau chaude fournie par une chaudière à gaz- Piscine chauffée par pompe à chaleur et poolhouse- Terrain de pétanque- Dépendance avec rentabilité locative- Jacuzzi- Salle de jeux- Infrastructures pour les chevauxÀ noter :- Taxe foncière : 3 455€ / an- Coût annuel du chauffage : 2 500€ / an- Fosse septique ( à remettre aux normes)- Consommation conventionnelle estimée (kWhEP/m2.an) : 85 (C)- Estimation des émissions (kg CO2/m2.an) : 14 (C)- Estimation des coûts annuels d’énergie : entre 1 500€ et 2 080€ /an- Année de référence des prix : 2021, 2022, 2023Prix de vente : 1 090 000 € TTC (Honoraires Abriculteurs à la charge du vendeur)Les informations sur les risques auxquels ce bien est exposé sont disponibles sur le site Géorisques : www.georisques.gouv.frAnnonce rédigée sous la responsabilité éditoriale de Mme PEFFERT Laura , agent commercial (EI), immatriculé au RSAC de Salon-de-Provence sous le n° 904 617 404, sans détention de fonds, agissant pour le compte de la SARL Abriculteurs immobilier, au capital de 5 000 €, immatriculée sous le SIREN n° 837 704 584, titulaire de la carte professionnelle n° CPI 7501 2018 000 025 842 délivrée par la CCI de Paris Île-de-France, dont le représentant légal est M. Adrien Piot, ayant son siège social au 12 rue des Halles, 75001 Paris.Les informations sur les risques auxquels ce bien est exposé sont disponibles sur le site www.georisques.gouv.frLaura PEFFERTEI • RSAC SALON-DE-PROVENCE 904 617 404

493 453 € 7 477 €/m²
66 m²

Rognes

MAISON

Bienvenue chez Abriculteurs, l’agence familiale qui s’engage à un service d’exception. Découvrez une présentation soignée de ce bien : des photos pro, un plan détaillé et une visite virtuelle immersive pour vous projeter. Faites confiance à notre expertise pour transformer vos projets immobiliers en réussites remarquables.Située dans un secteur paisible et recherché de Rognes, cette maison individuelle bâtie en 1976 profite d’un cadre naturel exceptionnel sur un terrain clos de 10 000 m². L’habitation actuelle de 66 m², baignée de lumière grâce à son orientation plein sud, propose un agencement efficace avec un séjour accueillant, une cuisine et deux chambres. L’ensemble bénéficie d’un confort thermique moderne assuré par une pompe à chaleur et des unités de climatisation réversibles réparties dans la maison.Le potentiel de ce bien est remarquable puisque sa conception sur plancher béton autorise une extension de 40 m², permettant ainsi de façonner la villa selon vos projets futurs. À l’extérieur, la propriété s’ouvre sur une vue dégagée au cœur de la Provence, sécurisée par un portail motorisé. La gestion de l’eau y est exemplaire avec deux forages privatifs et un accès direct à l’eau du canal pour l’arrosage automatique. Une terrasse ensoleillée et deux garages, dont un communiquant avec l’intérieur, viennent parfaire cette opportunité rare destinée aux amateurs de calme souhaitant valoriser un patrimoine immobilier de qualité.Les + du bien :- Cadre- Terrain d’environ 10 000m²- GaragesÀ noter :- Taxe foncière : 956 €/ an- Coût annuel du chauffage : 1050 €/ an- État du bien : bon état- Fosse septiqueConsommation conventionnelle (kWhEP/m2.an) : 133 (C)Estimation des émissions (kg CO2/m2.an) : 5 (A)Coût de l’énergie min / max : entre 870 et 1 230€Année de référence des prix : 2021, 2022, 2023Prix de vente : 470 000 € TTC (hors honoraires agence)Honoraires à la charge de l’acquéreur de 23 453€ représentant un total de 493 453 € (honoraires d’agence inclus), soit 4,99 % du prix de vente.Ce bien a retenu votre intérêt ? Pour organiser la visite, contactez-nous.Les informations sur les risques auxquels ce bien est exposé sont disponibles sur le site Géorisques : www.georisques.gouv.frAnnonce rédigée sous la responsabilité éditoriale de Mme PEFFERT Laura , agent commercial (EI), immatriculé au RSAC de Salon-de-Provence sous le n° 904 617 404, sans détention de fonds, agissant pour le compte de la SARL Abriculteurs immobilier, au capital de 5 000 €, immatriculée sous le SIREN n° 837 704 584, titulaire de la carte professionnelle n° CPI 7501 2018 000 025 842 délivrée par la CCI de Paris Île-de-France, dont le représentant légal est M. Adrien Piot, ayant son siège social au 12 rue des Halles, 75001 Paris.Les informations sur les risques auxquels ce bien est exposé sont disponibles sur le site www.georisques.gouv.frLaura PEFFERTEI • RSAC SALON-DE-PROVENCE 904 617 404

499 000 € 2 935 €/m²
170 m²

Lambesc

MAISON

Bienvenue chez Abriculteurs, l’agence familiale qui s’engage à un service d’exception. Découvrez une présentation soignée de ce bien : des photos pro, un plan détaillé et une visite virtuelle immersive pour vous projeter. Faites confiance à notre expertise pour transformer vos projets immobiliers en réussites remarquables.CO-EXCLUSIVITÉ – LAMBESC (13410) – Implantée sur une parcelle d’environ 1 000 m², cette propriété se compose d’une habitation principale de type T7 d’environ 170 m², complétée par une dépendance indépendante de type T2 d’environ 30 m². Sa configuration ainsi que son emplacement se prêtent parfaitement à l’exercice d’une activité professionnelle.Le rez-de-chaussée s’articule autour d’une pièce de vie de 65 m² lumineuse et mise en valeur par une belle hauteur sous plafond. Cet espace se compose : – d’un salon avec cheminée ; – d’une salle à manger équipée d’un poêle à bois ; – d’une cuisine avec cellier attenant.Ce niveau comprend également deux chambres, un bureau, une salle d’eau ainsi qu’un WC indépendant.À l’étage, le palier dessert une mezzanine ouverte sur le séjour et distribue trois chambres, dont une avec dressing et terrasse privative. Une salle de bains avec WC complète ce niveau.Le ravalement de façade, réalisé en janvier 2026, assure un excellent état extérieur de la construction. Les aménagements extérieurs comprennent : – une piscine avec deux terrasses (exposition Sud ombragée par la végétation et Ouest partiellement couverte) ; – un garage d’environ 38 m² ; – plusieurs emplacements de stationnement au sein de la parcelle.Les + du bien : – Ravalement de façade réalisé en 2026 – Espace de vie de 65 m² – Volumes et hauteur sous plafond – Piscine – Dépendance T2 – Commodités accessibles à pied – Possibilité de lier son activité professionnelA noter : – Etat du bien : intérieur à rafraichir – Chauffage : fuel – Eau de ville – Tout à l’égout – Vide sanitaire – Taxe foncière : 2 543€ / anConsommation conventionnelle (kWhEP/m2.an) : 171 (D)Estimation des émissions (kg CO2/m2.an) : 31 (D)Coût de l’énergie min / max : entre 2 050€ et 2 870€Année de référence des prix : 2021Prix de vente : 499 000 € TTC (Honoraires Abriculteurs à la charge du vendeur*).Les informations sur les risques auxquels ce bien est exposé sont disponibles sur le site Géorisques : www.georisques.gouv.frAnnonce rédigée sous la responsabilité éditoriale de M. Matthieu Richier, agent commercial (EI), immatriculé au RSAC de Salon-de-Provence sous le n° 850 335 530, sans détention de fonds, agissant pour le compte de la SARL Abriculteurs immobilier, au capital de 5 000 €, immatriculée sous le SIREN n° 837 704 584, titulaire de la carte professionnelle n° CPI 7501 2018 000 025 842 délivrée par la CCI de Paris Île-de-France, dont le représentant légal est M. Adrien Piot, ayant son siège social au 12 rue des Halles, 75001 Paris.Les informations sur les risques auxquels ce bien est exposé sont disponibles sur le site www.georisques.gouv.frMatthieu RICHIEREI • RSAC SALON-DE-PROVENCE 850 335 530

1 390 000 € 4 696 €/m²
296 m²

Rognes

MAISON

Bienvenue chez Abriculteurs, l’agence familiale qui s’engage à un service d’exception. Découvrez une présentation soignée de ce bien : des photos pro, un plan détaillé et une visite virtuelle immersive pour vous projeter. Faites confiance à notre expertise pour transformer vos projets immobiliers en réussites remarquables.Située à Rognes, dans un cadre exceptionnel avec vue dégagée jusqu’aux Alpes, cette villa de 296 m² habitables offre des volumes généreux et des prestations de qualité sur un terrain de 12 000 m².Un intérieur spacieux dès l’entrée, vous serez séduit par le volume de la pièce de vie en double hauteur, agrémentée d’une cheminée, prolongée d’un espace billard et d’un bureau (pouvant faire office de suite supplémentaire).La cuisine, fonctionnelle et conviviale, est complétée par une arrière-cuisine discrète.La suite parentale au niveau principal, dispose de son propre dressing, d’une salle d’eau et de WC indépendants.À l’étage, trois chambres, dont une avec salle d’eau privative et WC, une seconde salle d’eau avec WC et des WC indépendants complètent l’espace nuit.Un sous-sol aménagé pour votre bien-êtreEn rez-de-jardin, un espace détente équipé d’un sauna et d’un spa, avec possibilité d’y aménager une salle de sport ainsi qu’ une cave, un garage vous attendent.Un extérieur à couper le souffleLa piscine à débordement chauffée au sel (12 x 6 m), sécurisée par un volet roulant, s’intègre parfaitement à l’environnement naturel, avec pour toile de fond une vue panoramique imprenable.Les + du bien :Vue dégagée jusqu’aux AlpesPiscine à débordement chauffée, au sel et sécuriséeEspace bien-être avec sauna & spaTerrain de 12 000 m²Volumes intérieurs généreuxMaison en excellent étatÀ noter :Taxe foncière : 3 857 € / anDPE : C (87 kWhEP/m².an) – GES : C (26 kg CO₂/m².an)Estimation du coût annuel d’énergie : entre 2 040 € et 2 800 € (abonnements inclus – année de référence 2021) Prix de présentation : 1 390 000 € TTC(Honoraires à la charge du vendeur)Les informations sur les risques auxquels ce bien est exposé sont disponibles sur le site Géorisques : www.georisques.gouv.frCe bien est proposé à la vente interactive sur le site SQUARIMO.Le prix affiché est un prix de présentation qui n’engage pas le vendeur.La participation à la vente interactive de SQUARIMO n’entraîne aucun frais supplémentaire, ni pour l’acquéreur ni pour le vendeur.La participation est soumise à un agrément préalable de SQUARIMO.Les offres seront transmises au vendeur, qui reste libre de choisir parmi celles formulées.Une offre déposée sur le site SQUARIMO constitue une intention de négocier de bonne foi et non un engagement d’acquérir.Annonce rédigée sous la responsabilité éditoriale de Mme PEFFERT Laura , agent commercial (EI), immatriculé au RSAC de Salon-de-Provence sous le n° 904 617 404, sans détention de fonds, agissant pour le compte de la SARL Abriculteurs immobilier, au capital de 5 000 €, immatriculée sous le SIREN n° 837 704 584, titulaire de la carte professionnelle n° CPI 7501 2018 000 025 842 délivrée par la CCI de Paris Île-de-France, dont le représentant légal est M. Adrien Piot, ayant son siège social au 12 rue des Halles, 75001 Paris.Les informations sur les risques auxquels ce bien est exposé sont disponibles sur le site www.georisques.gouv.frLaura PEFFERTEI • RSAC SALON-DE-PROVENCE 904 617 404

449 000 € 3 454 €/m²
130 m²

Lambesc

MAISON

Bienvenue chez Abriculteurs, l’agence familiale qui s’engage à un service d’exception. Découvrez une présentation soignée de ce bien : des photos pro, un plan détaillé et une visite virtuelle immersive pour vous projeter. Faites confiance à notre expertise pour transformer vos projets immobiliers en réussites remarquables.Située à Lambesc (13410), au calme d’une impasse dans un quartier résidentiel, découvrez cette villa plain-pied de 130 m² habitables, complétés par une véranda de 16 m². Elle est implantée sur une parcelle entièrement clôturée de 680 m².La maison s’articule autour d’un séjour traversant de 44 m² équipé d’une cheminée et communiquant directement avec la véranda.La cuisine, indépendante, dispose d’un accès à une terrasse de 14 m².L’espace nuit comprend trois chambres climatisées, dont une suite parentale avec salle d’eau et WC privatifs. Une salle de bains ainsi qu’un WC indépendant complètent cette partie.Plusieurs rangements sont intégrés dans les chambres et dans l’entrée.La parcelle, entièrement clôturée, comprend une piscine accompagnée de son pool house. Un garage de 34 m² est attenant à la maison. Plusieurs places de stationnement se trouvent devant la propriété.Les + du bien : – Espace de vie agréable, avec cheminée – Piscine avec pool house – Fibre optique – Climatisation réversible dans toutes les chambres – Garage fermé – Nombreux rangementsÀ noter : – Etat du bien : à rafraichir – Chauffage : radiateurs au fuel et climatisation réversible – Eau chaude : chauffe eau électrique – Menuiseries : bois double vitrage – Eau de ville et eau du canal – Tout à l’égout – Taxe foncière : 2 029€ / anPerformance énergétique : – Consommation conventionnelle (kWhEP/m2.an) : 160 (D) – Estimation des émissions (kgCO2/m2.an) : 33 (D) – Coût de l’énergie min / max : entre 2 770 € et 3 840 € / an – Années de référence des prix : 2021, 2022 et 2023Prix de vente : 449 000 € TTC (Honoraires Abriculteurs à la charge du vendeur).Les informations sur les risques auxquels ce bien est exposé sont disponibles sur le site Géorisques : www.georisques.gouv.frAnnonce rédigée sous la responsabilité éditoriale de Matthieu RICHIER , agent commercial (EI), immatriculé au RSAC de Salon-de-Provence sous le n° 850 335 530, sans détention de fonds, agissant pour le compte de la SARL Abriculteurs immobilier, au capital de 5 000 €, immatriculée sous le SIREN n° 837 704 584, titulaire de la carte professionnelle n° CPI 7501 2018 000 025 842 délivrée par la CCI de Paris Île-de-France, dont le représentant légal est Adrien PIOT, ayant son siège social au 12 rue des Halles, 75001 Paris.Les informations sur les risques auxquels ce bien est exposé sont disponibles sur le site www.georisques.gouv.frMatthieu RICHIEREI • RSAC SALON-DE-PROVENCE 850 335 530

185 000 € 2 313 €/m²
80 m²

Rognes

MAISON

Bienvenue chez Abriculteurs, l’agence familiale qui s’engage à offrir un service d’exception. Découvrez une présentation soignée de ce bien : photos professionnelles, plan détaillé et visite virtuelle immersive pour vous projeter pleinement. Faites confiance à notre expertise pour transformer vos projets immobiliers en réussites remarquables.Découvrez cette maison de village au cœur du charmant centre historique de Rognes, proposée avec les avantages d’une vente anticipée :•⁠ ⁠Des frais de notaire uniquement payé sur le prix d’achat hors travaux soit une économie d’environ 4.000 euros•⁠ ⁠Une possibilité de personnalisation des finitions du bien à votre image avec un choix du revêtement de sol en passant par l’équipement de salle d’eau ou de la cuisine•⁠ ⁠Une possibilité de défiscalisation du montant des travaux restant pour un projet locatif•⁠ ⁠⁠Un prix travaux ajustable selon vos envies et besoinsD’une surface d’environ 80 m², elle se développe sur trois niveaux et offre un agencement atypique et agréable.Elle proposera un futur séjour avec cuisine ouverte au 2ème étage constituant un espace de vie convivial et lumineux. Au premier étage une chambre, avec salle d’eau et WC séparés et pour finir au RDC une suite parentale avec salle d’eau WC et un coin dressing buanderie.La rénovation réalisée à ce jour est sérieuse, une toiture, une isolation et des planchers refaits à neuf.Le bien est raccordé au tout-à-l’égout.Cette maison conviendra aussi bien pour une résidence principale, un pied-à-terre provençal ou un investissement locatif, à proximité immédiate des commodités et de la vie du village de Rognes.Les + du bien :En cours de rénovation, charme de l’ancienPossibilité de choisir les finitionsPas de frais notarié sur le montant des travaux.À noter :Taxe foncière : en attenteCoût annuel du chauffage : non soumisÉtat du bien : en partie rénovéTout-à-l’égoutNon soumis au DPE.Prix de départ : 185 000 € TTC(Honoraires Abriculteurs à la charge du vendeur)Ce bien est proposé à la vente interactive sur le site SQUARIMO.Le prix affiché est un prix de présentation minimum qui n’engage pas le vendeur.La participation à la vente interactive de SQUARIMO n’entraîne aucun frais supplémentaire, ni pour l’acquéreur ni pour le vendeur.La participation est soumise à un agrément préalable de SQUARIMO.Les offres seront transmises au vendeur, qui reste libre de choisir parmi celles formulées.Une offre déposée sur le site SQUARIMO constitue une intention de négocier de bonne foi et non un engagement d’acquérir.Le bien est vendu en l’état, en cours de rénovation.Le logement est actuellement inhabitable et ne dispose pas des équipements essentiels (cuisine, sanitaires, chauffage, finitions).Des devis de travaux ont été réalisés par des entreprises qualifiées pour l’achèvement de la rénovation, pour un montant d’environ 45 000 € TTC.Ces devis sont fournis à titre informatif et pourront être validés, si souhaité, lors de la vente avec les artisans.L’acquéreur est libre de reprendre ces devis et de contracter directement avec les artisans, ou de choisir ses propres entreprises et prestations.Le vendeur n’intervient ni comme constructeur ni comme maître d’œuvre et n’assume aucune responsabilité concernant la réalisation, les délais ou la conformité des travaux après la vente.Ce bien a retenu votre intérêt ?Pour organiser une visite avec nous, contactez-nous.Les informations sur les risques auxquels ce bien est exposé sont disponibles sur le site Géorisques : www.georisques.gouv.frAnnonce rédigée sous la responsabilité éditoriale de Mme Laura Peffert, agent commercial (EI), immatriculée au RSAC de Salon-de-Provence sous le n° 904 617 404, sans détention de fonds, agissant pour le compte de la SARL Abriculteurs Immobilier, au capital de 5 000 €, immatriculée sous le SIREN n° 837 704 584, titulaire de la carte professionnelle n° CPI 7501 2018 000 025 842 délivrée par la CCI de Paris Île-de-France, dont le représentant légal est M. Adrien Piot, ayant son siège social au 12 rue des Halles, 75001 Paris.Les informations sur les risques auxquels ce bien est exposé sont disponibles sur le site www.georisques.gouv.frLaura PEFFERTEI • RSAC SALON-DE-PROVENCE 904 617 404

295 000 € 1 941 €/m²
152 m²

La Roque-d'Anthéron

MAISON

Bienvenue chez Abriculteurs, l’agence familiale qui s’engage à un service d’exception. Découvrez une présentation soignée de ce bien : des photos pro, un plan détaillé et une visite virtuelle immersive pour vous projeter. Faites confiance à notre expertise pour transformer vos projets immobiliers en réussites remarquables.Au cœur du village de La-Roque-d’Anthéron, à deux pas des commodités, cette maison de 152 m² séduit par son authenticité et son charme provençal.Le rez-de-chaussée accueille une dépendance T2 comprenant un séjour avec cuisine ouverte, une chambre voutée et une salle de bains avec WC.À l’étage, la maison principale s’articule autour d’une pièce de vie traversante de 30,6 m², d’une cuisine indépendante et d’une terrasse de 28 m² exposée plein Sud.L’espace nuit, situé au dernier niveau, comprend trois chambres dont une de 16,5 m² , ainsi qu’une salle d’eau avec WC.Les + du bien : – Toutes commodités à pied – Poêle à bois – Terrasse de 28 m² – Dépendance T2 – Fibre optiqueA noter : – Etat du bien : rafraichissement à prévoir – PVC double vitrage – Eau de ville – Tout à l’égout – Taxe foncière : 530 € / an.Performance énergétique : – Consommation conventionnelle (kWhEP/m2.an) : 191 (D) – Estimation des émissions (kgCO2/m2.an) : 7 (B) – Coût de l’énergie min / max : 2 360 € et 3 240 € – Année de référence des prix : 2021, 2022, 2023Prix de vente : 295 000 € TTC (Honoraires Abriculteurs à la charge du vendeur).Les informations sur les risques auxquels ce bien est exposé sont disponibles sur le site Géorisques : www.georisques.gouv.fr.Annonce rédigée sous la responsabilité éditoriale de M. Matthieu Richier, agent commercial (EI), immatriculé au RSAC de Salon-de-Provence sous le n° 850 335 530, sans détention de fonds, agissant pour le compte de la SARL Abriculteurs immobilier, au capital de 5 000 €, immatriculée sous le SIREN n° 837 704 584, titulaire de la carte professionnelle n° CPI 7501 2018 000 025 842 délivrée par la CCI de Paris Île-de-France, dont le représentant légal est M. Adrien Piot, ayant son siège social au 12 rue des Halles, 75001 Paris.Les informations sur les risques auxquels ce bien est exposé sont disponibles sur le site www.georisques.gouv.frMatthieu RICHIEREI • RSAC SALON-DE-PROVENCE 850 335 530

L’actualité immobilière à Rognes

Image du post Construire une maison container : avantages, techniques et prix 13/10/2022
Lire l’article
Construire une maison container : avantages, techniques et prix
Image du post 12 modèles de maisons contemporaines de constructeurs à s’offrir 07/10/2022
Lire l’article
12 modèles de maisons contemporaines de constructeurs à s’offrir
Image du post Maison de plain-pied : les plus belles réalisations de constructeurs 03/10/2022
Lire l’article
Maison de plain-pied : les plus belles réalisations de constructeurs
Image du post Habitat alternatif : lequel choisir et où s’installer ? 26/09/2022
Lire l’article
Habitat alternatif : lequel choisir et où s’installer ?
Image du post Viabiliser un terrain : prix et démarches 16/09/2022
Lire l’article
Viabiliser un terrain : prix et démarches
Image du post Construction d’une maison passive : infos et modèles 09/09/2022
Lire l’article
Construction d’une maison passive : infos et modèles