Maison Saubrigues
Images
Description
Projet de construction de maison neuve à Saubrigues.Terrain viabilisé de 430 m² situé dans un petit lotissement calme proche du centre de Saubrigues.Magnifique maison de 103 m² avec 3 chambres, 1 salle d'eau, 1 WC séparés et un séjour - salon cuisine de plus de 40 m².
Ce projet est proposé par IGC construction Angresse, il pourra être modifié et finalisé selon vos souhaits et votre budget.
345550 euros HFN, contrat de maison prête à décorer ( reste à votre charge les peintures intérieurs, l'aménagement de la cuisine et des placards et l'aménagement extérieur ).
Les informations sur les risques auxquels ce bien est exposé sont disponibles sur le site Géorisques : (Lien supprimé)
Logement susceptibles de vous intéresser
Nous vous proposons de découvrir aussi cette sélection de logements situés à moins de 10km de Saubrigues et qui seraient susceptibles de vous intéresser.
Saint-Vincent-de-Tyrosse
MAISONBienvenue chez Abriculteurs, l’agence familiale qui s’engage à un service immobilier d’exception. Découvrez une présentation soignée de ce bien : des photos professionnelles, un plan détaillé,Découvrez cette jolie maison Landaise de 5 pièces, d’une superficie de 160 m² sur deux étages et qui dispose d’un magnifique terrain arboré de 1788 m².Idéalement située, proche de tous commerces et écoles, et à 15 minutes des plages.Dans un quartier résidentiel très calme, cette maison s’organise comme suit :Au rez-de-chaussée, un salon avec cheminée et un agréable séjour orientés Sud-Ouest, une cuisine équipée, un cellier avec accès au double garage et une grande véranda orientée plein Sud. Cet étage compte aussi une chambre avec rangement, une salle de bain avec douche et baignoire, et des toilettes indépendantes.A l’étage, se trouvent 3 belles chambres dont 2 chambres avec balcon et vue sur la piscine, une salle d’eau avec toilettes.Des combles aménagés en espace de rangement sont accessibles directement à l’étage.Une très belle piscine chauffée et un Pool house viennent compléter ce bien et ce très beau jardin.En plus des 2 places dans le garage, un large espace sur le côté de la maison est prévu pour garer 3 voitures,A proximité : Centre Ville, Écoles maternelle et élémentaire, collège et lycéeBus GareLes + du bien :- Calme et à l’abri des regards- Piscine de 8×4- Portail motorisé, raccordement à la fibre- jardin arboréÀ noter :- Taxe foncière : 1646 € / an- Tout à l’égoutConsommation conventionnelle (kWhEP/m2.an) : 122 (C)Estimation des émissions (kg CO2/m2.an) : 24 (C)Prix de vente : 672 000 € TTC (Honoraires Abriculteurs à la charge du vendeur)Les informations sur les risques auxquels ce bien est exposé sont disponibles sur le site Géorisques : : www.georisques.gouv.frAnnonce rédigée sous la responsabilité éditoriale de Mme Caroline BOITIAUX, agent commercial (EI), immatriculé au RSAC de DAX sous le n° 484471206, sans détention de fonds, agissant pour le compte de la SARL Abriculteurs immobilier, au capital de 5 000 €, immatriculée sous le SIREN n° 837 704 584, titulaire de la carte professionnelle n° CPI 7501 2018 000 025 842 délivrée par la CCI de Paris Île-de-France, dont le représentant légal est M. Adrien Piot, ayant son siège social au 12 rue des Halles, 75001 Paris.Les informations sur les risques auxquels ce bien est exposé sont disponibles sur le site www.georisques.gouv.fr
Saint-Martin-de-Hinx
TERRAIN ET MAISONOpportunité ! Au cœur de Saint-Martin-De-Hinx, dans un petit lotissement de 6 lots IGC vous propose ce projet de maison plain-pied de 95m² habitables à proximité immédiate des toutes les commodités.Le projet se compose d’une belle pièce à vivre très lumineuse de 38m², d’une SDE, d’un WC séparé et de 4 chambres.Un petit cellier ainsi qu’un petit hall d’entrée avec placard sont également prévus pour plus de praticité au quotidien.La pièce de vie bénéficie d’une triple exposition pour profiter du cadre naturel d’un jardin déjà arboré.Ce projet aux normes RE2020 intègre tout le confort moderne avec notamment une pompe à chaleur réversible pour un confort d’hiver & d’été optimal associé à la domotique pour en maîtriser raisonnablement les coûts.Ce projet est personnalisable selon vos besoins et votre budget.Le prix indiqué comprend la totalité du projet hormis les postes cuisines, placards, peinture et sol des chambres.N’hésitez pas nous contacter plus plus de renseignements.
Bénesse-Maremne
TERRAIN ET MAISONSituée à Bénesse-Maremne, cette maison de 128m2 présente un cadre de vie agréable et idéal pour une famille. Cette maison propose 6 pièces, dont 3 chambres,1 suite parentale avec salle d’eau et de 2 dressing, et 1 bureau. Au coeur de la maison, un séjour-salon-cuisine de plus de 45 m2 offre une pièce de vie spacieuse et lumineuse. Concernant l’extérieur, un jardin de 510m2 vous permets d’aménager un espace extérieur selon vos choix.Le garage est en option est n’est donc pas compris dans le prix de du rpojet. Ce projet est proposé par IGC construction Angresse, il pourra être modifié et finalisé selon vos souhaits et votre budget.450 000 euros HFN, contrat de maison prête à décorer ( reste à votre charge les peintures intérieurs, l’aménagement de la cuisine et des placards ).Les informations sur les risques auxquels ce bien est exposé sont disponibles sur le site Géorisques : (Lien supprimé)
Saubion
TERRAIN ET MAISONDécouvrez cette belle maison neuve de 130m2, pensée pour offrir confort et fonctionnalité dans un cadre agréable. Elle se compose d’un séjour-salon-cuisine lumineux de 40m2, ainsi que d’un cellier. Elle propose trois chambres dont une suite parentale avec dressing et salle d’eau. A l’extérieur, vous profiterez d’un jardin de 632m2 à aménager selon vos envies. Ce projet est proposé par IGC construction Angresse, il pourra être modifié et finalisé selon vos souhaits et votre budget.495 000 euros HFN, contrat de maison prête à décorer ( reste à votre charge les peintures intérieurs, l’aménagement de la cuisine et des placards ).Les informations sur les risques auxquels ce bien est exposé sont disponibles sur le site Géorisques : (Lien supprimé)
Saubion
TERRAIN ET MAISONDécouvrez ce magnifique projet chez IGC. Maison neuve prête à décorer sur la commune de Saubion. Terrain viabilisé de 714m2 situé à 7 min des plages landaises.Agréable maison de 127m2 avec 3 chambres, dont 1 suite parentale avec dressing et salle d’eau,1 bureau, 1 salle de bain séparée, 1 séjour-salon-cuisine de 45m2, 1 cellier, 1 garage et une terrasse couverte. Ce projet est proposé par IGC construction Angresse, il pourra être modifié et finalisé selon vos souhaits et votre budget.524 880 euros HFN, contrat de maison prête à décorer ( reste à votre charge les peintures intérieurs, l’aménagement de la cuisine et des placards ).Les informations sur les risques auxquels ce bien est exposé sont disponibles sur le site Géorisques : (Lien supprimé)
Capbreton
TERRAIN ET MAISONProjet de construction de maison neuve à Capbreton à quelques minutes des plages landaises.Terrain viabilisé de 627 m².Magnifique maison de plus de 150 m² avec 2 chambres, 1 suite parentale avec salle d’eau et dressing, 1 salle d’eau séparée, 1 buanderie, 2 WC, 1 bureau et un séjour – salon cuisine de plus de 60 m².Garage, terrasse couverte et porche d’entrée compris dans le prix de vente.Prix garantie sous reserve de la visite terrain et de l’étude de sol.Ce projet est proposé par IGC construction Angresse, il pourra être modifié et finalisé selon vos souhaits et votre budget.1 160 000 euros HFN, contrat de maison prête à décorer (reste à votre charge les peintures intérieures, l’aménagement de la cuisine et des placards ).Les informations sur les risques auxquels ce bien est exposé sont disponibles sur le site Géorisques : (Lien supprimé)
Saint-Jean-de-Marsacq
TERRAIN ET MAISONA Saint Jean de Marsacq, charmant village landais, découvrez sur ce joli terrain de 703 m² pour votre projet de construction cette jolie villa IGC de plain-pied d’une surface de 89 m² entièrement optimisée et très fonctionnelle.Vous profiterez d’une lumineuse pièce à vivre ouverte sur la cuisine.Elle se compose également de 3 chambres, d’une salle de bain et d’un WC indépendant.Ideal primo-accédant ou investissement locatif, cette maison respecte le confort thermique et phonique grâce à la RE2020. N’hésitez pas à contacter votre agence IGC Angresse au (Numéro supprimé) pour votre projet de construction.Hors frais de notaire liés au terrain et hors carrelage et sanitaires.
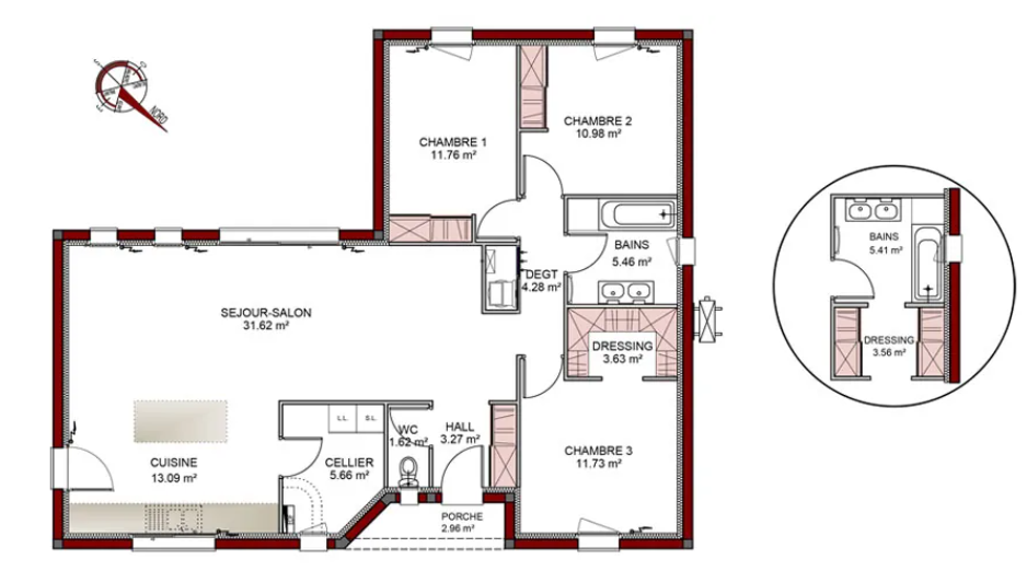
Saubrigues
TERRAIN ET MAISONProjet de construction de maison neuve à Saubrigues.Terrain viabilisé de 430 m² situé dans un petit lotissement calme proche du centre de Saubrigues.Magnifique maison de 103 m² avec 3 chambres, 1 salle d’eau, 1 WC séparés et un séjour – salon cuisine de plus de 40 m².Ce projet est proposé par IGC construction Angresse, il pourra être modifié et finalisé selon vos souhaits et votre budget.345550 euros HFN, contrat de maison prête à décorer ( reste à votre charge les peintures intérieurs, l’aménagement de la cuisine et des placards et l’aménagement extérieur ).Les informations sur les risques auxquels ce bien est exposé sont disponibles sur le site Géorisques : (Lien supprimé)
Saint-Vincent-de-Tyrosse
TERRAIN ET MAISONProjet de construction de maison neuve à TyrosseTerrain viabilisé de 632 m² situé dans un petit lotissement calme.Très belle maison de 80 m² avec 3 chambres, 1 salle de bain, 1WC séparé et un séjour salon cuisine de plus de 30 m².Ce projet est proposé par IGC construction Angresse, il pourra être modifié et finalisé selon vos souhaits et votre budget.295600 euros HFN, contrat de maison prête à décorer ( reste à votre charge les peintures intérieurs, l’aménagement de la cuisine et des placards ).Les informations sur les risques auxquels ce bien est exposé sont disponibles sur le site Géorisques : (Lien supprimé)
Capbreton
TERRAIN ET MAISONIdéalement situé à l’entrée de CAPBRETON sur un terrain de 500 m² HORS LOTISSEMENT issu d’une division de parcelle, offrez-vous le confort d’une maison contemporaine imaginée pour conjuguer lumière, fonctionnalité et confort au quotidien.🪟 Espace jour : un vaste séjour baigné de lumière avec cuisine ouverte (cellier attenant) pour des moments conviviaux en famille ou entre amis + terrasse couverte. 🛏️ Espace nuit : trois chambres dont une suite parentale avec salle d’eau, une salle de bains familiale. ✨ Les + IGC :• Maison de plain-pied, lumineuse et fonctionnelle • Conception éco-responsable et performante • Espaces optimisés et personnalisables • Accompagnement complet du plan à la remise des clés • Certification NF Habitat HQEDepuis plus de 40 ans, IGC met son savoir-faire au service de la qualité, de la sécurité et de la satisfaction de ses clients. 📍 Emplacement : secteur très recherché, proche commerces, cadre de vie privilégié 💰 Étude gratuite et personnalisée sans engagement 📞 Contactez Jérôme LASSABE au (Numéro supprimé) pour plus d’informations ou pour une première rencontre dans notre showroom de DAX.
L’actualité immobilière à Saubrigues
13/10/2022
07/10/2022
03/10/2022
26/09/2022
16/09/2022
09/09/2022