Maison a Vendre
Image de background

Maison neuve 131 M2

549000 €
131 m²
Quincieux
Rhône (69)
TERRAIN ET MAISON
Réf externe: 311419
Annonce publiée le 12 mars 2026

Images

Description

Découvrez le chantier grâce à une visite immersive en drone FPV (Vidéo disponible sur demande)

Maison neuve RE2020 (Construction en cours) - 131 m² + Garage - Calme & vue champs - Quincieux

En fond d'une division parcellaire intimiste de trois maisons, cette maison neuve RE2020, en cours d'édification (livraison prévu juillet 2026), bénéficie d'un emplacement rare et privilégié : sans vis-à-vis, entièrement tournée vers les champs, dans un cadre champêtre calme et préservé.

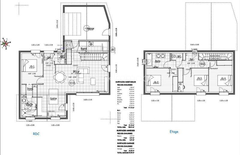
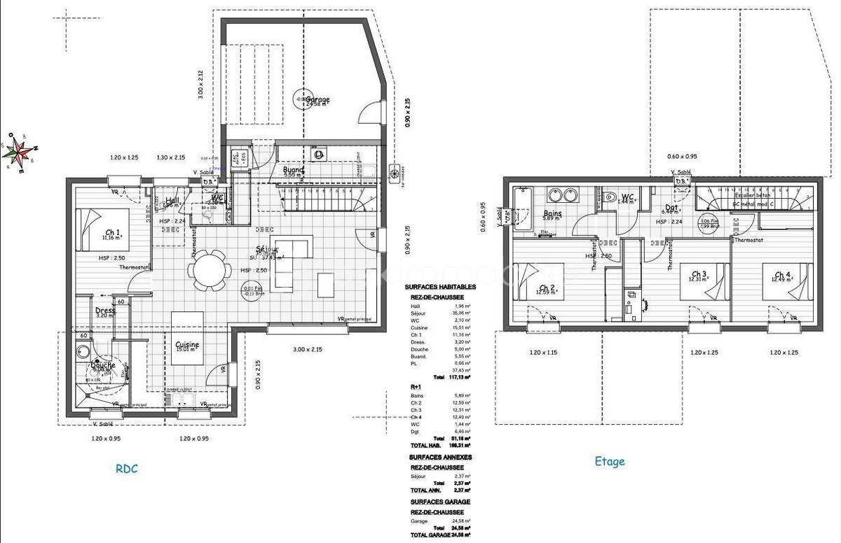
131 m² habitables + garage de 24 m² :

Au rez-de-chaussée : 1 grande pièce de vie lumineuse, 1 suite parentale avec salle d'eau et dressing, 1 buanderie, 1 WC

A l'étage : 3 chambres d'environ 12 m², 1 salle de bain, 1 WC

Confort & prestations :

Chauffage & Rafraichissement par pompe à chaleur gainable,
Ballon thermodynamique
Volets roulants électriques
Placards aménagés...

Extérieur : terrain clos et arboré d'environ 700 m², deux places de stationnement

Les plus : Frais de notaire réduits, garantie décennale et dommages ouvrage, construction neuve RE2020, emplacement préservé

A 800 m du centre de Quincieux (Commerces et services).

DPE non soumis pour ce bien - maison en cours de construction
(DPE sera établi à l'achèvement des travaux)

Cette annonce référence 311419 vous est présentée par votre agent commercial BSK Immobilier DIMITRI CORGER (EI) immatriculé au RSAC de OULLINS (69600) sous le numéro 93228234600018.

Prix du bien : 549 000,00 €
Les honoraires d'agence sont à la charge du vendeur.

Non soumis au DPE.

Les informations sur les risques auxquels ce bien est exposé sont disponibles sur le site Géorisques : www.georisques.gouv.fr

CONTACTER

Logement susceptibles de vous intéresser

549 000 €
131 m²

Quincieux

TERRAIN ET MAISON

Découvrez le chantier grâce à une visite immersive en drone FPV (Vidéo disponible sur demande)Maison neuve RE2020 (Construction en cours) – 131 m² + Garage – Calme & vue champs – QuincieuxEn fond d’une division parcellaire intimiste de trois maisons, cette maison neuve RE2020, en cours d’édification (livraison prévu juillet 2026), bénéficie d’un emplacement rare et privilégié : sans vis-à-vis, entièrement tournée vers les champs, dans un cadre champêtre calme et préservé.131 m² habitables + garage de 24 m² :Au rez-de-chaussée : 1 grande pièce de vie lumineuse, 1 suite parentale avec salle d’eau et dressing, 1 buanderie, 1 WCA l’étage : 3 chambres d’environ 12 m², 1 salle de bain, 1 WCConfort & prestations :Chauffage & Rafraichissement par pompe à chaleur gainable,Ballon thermodynamiqueVolets roulants électriquesPlacards aménagés…Extérieur : terrain clos et arboré d’environ 700 m², deux places de stationnementLes plus : Frais de notaire réduits, garantie décennale et dommages ouvrage, construction neuve RE2020, emplacement préservéA 800 m du centre de Quincieux (Commerces et services).DPE non soumis pour ce bien – maison en cours de construction(DPE sera établi à l’achèvement des travaux)Cette annonce référence 311419 vous est présentée par votre agent commercial BSK Immobilier DIMITRI CORGER (EI) immatriculé au RSAC de OULLINS (69600) sous le numéro 93228234600018.Prix du bien : 549 000,00 €Les honoraires d’agence sont à la charge du vendeur.Non soumis au DPE.Les informations sur les risques auxquels ce bien est exposé sont disponibles sur le site Géorisques : www.georisques.gouv.fr

L’actualité immobilière à Quincieux

Image du post Construire une maison container : avantages, techniques et prix 13/10/2022
Lire l’article
Construire une maison container : avantages, techniques et prix
Image du post 12 modèles de maisons contemporaines de constructeurs à s’offrir 07/10/2022
Lire l’article
12 modèles de maisons contemporaines de constructeurs à s’offrir
Image du post Maison de plain-pied : les plus belles réalisations de constructeurs 03/10/2022
Lire l’article
Maison de plain-pied : les plus belles réalisations de constructeurs
Image du post Habitat alternatif : lequel choisir et où s’installer ? 26/09/2022
Lire l’article
Habitat alternatif : lequel choisir et où s’installer ?
Image du post Viabiliser un terrain : prix et démarches 16/09/2022
Lire l’article
Viabiliser un terrain : prix et démarches
Image du post Construction d’une maison passive : infos et modèles 09/09/2022
Lire l’article
Construction d’une maison passive : infos et modèles