Projet de construction - Villa contemporaine
Images
Description
IGC, constructeur de maison depuis plus de 40 ans vous propose cette jolie villa contemporaine pour votre projet de construction sur la commune de St Geours de Maremne.
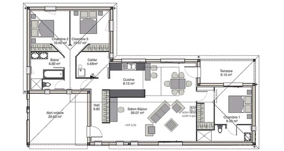
D'une superficie de plus de 100 m² et avec son plan en forme de L, son originalité réside dans son entrée décalée et la composition de sa façade, à la fois asymétrique et équilibrée.
Fonctionnelle et lumineuse cette villa vous offre un séjour et traversant avec de grandes baies vitrées.Vous bénéficierez également de 3 chambres avec dressing, d'un cellier et d'un abris voiture.
Le plan est entièrement modulable selon vos souhaits et votre budget.
Contactez votre agence IGC Angresse au (Numéro supprimé), nous serons ravis de construire pour pour le projet qui vous ressemble.
Photo non contractuelle.
Logement susceptibles de vous intéresser
Nous vous proposons de découvrir aussi cette sélection de logements situés à moins de 10km de Saint-Geours-de-Maremne et qui seraient susceptibles de vous intéresser.
Saubusse
TERRAIN ET MAISONDans un environnement unique à proximité du Centre et du commerces, offrez-vous le confort d’une maison contemporaine imaginée pour conjuguer lumière, fonctionnalité et confort au quotidien.🪟 Espace jour : un vaste séjour baigné de lumière avec cuisine ouverte (cellier attenant) pour des moments conviviaux en famille ou entre amis + terrasse couverte. 🛏️ Espace nuit : trois chambres dont une suite parentale avec salle d’eau, une salle de bains familiale et un garage intégré. Chaque mètre carré est pensé pour votre confort et votre sérénité.✨ Les + IGC :• Maison de plain-pied, lumineuse et fonctionnelle • Conception éco-responsable et performante • Espaces optimisés et personnalisables • Accompagnement complet du plan à la remise des clésDepuis plus de 40 ans, IGC met son savoir-faire au service de la qualité, de la sécurité et de la satisfaction de ses clients.Certification NF Habitat HQE 📍 Emplacement : secteur très recherché calme et agréable, cadre de vie privilégié 💰 Étude gratuite et personnalisée sans engagement 📞 Contactez Jérôme LASSABE au (Numéro supprimé) pour plus d’informations ou pour une première rencontre dans notre showroom de DAX.
Tosse
TERRAIN ET MAISONProjet de construction de maison neuve à Tosse.Terrain viabilisé de 550 m² situé dans un joli lotissement calme proche de la forêt landaise.Magnifique maison de 103 m² avec 3 chambres, 1 salle d’eau, 1 WC séparés et un séjour – salon cuisine de plus de 50 m².Ce projet est proposé par IGC construction Angresse, il pourra être modifié et finalisé selon vos souhaits et votre budget.497670 euros HFN, contrat de maison prête à décorer ( reste à votre charge les peintures intérieurs, l’aménagement de la cuisine et des placards ).Les informations sur les risques auxquels ce bien est exposé sont disponibles sur le site Géorisques : (Lien supprimé)
Saint-Vincent-de-Tyrosse
TERRAIN ET MAISONProjet de construction de maison neuve à TyrosseTerrain viabilisé de 632 m² situé dans un petit lotissement calme.Très belle maison de 80 m² avec 3 chambres, 1 salle de bain, 1WC séparé et un séjour salon cuisine de plus de 30 m².Ce projet est proposé par IGC construction Angresse, il pourra être modifié et finalisé selon vos souhaits et votre budget.320600 euros HFN, contrat de maison prête à décorer ( reste à votre charge les peintures intérieurs, l’aménagement de la cuisine et des placards ).Les informations sur les risques auxquels ce bien est exposé sont disponibles sur le site Géorisques : (Lien supprimé)
Rivière-Saas-et-Gourby
TERRAIN ET MAISONIdéalement situé plein centre de DAX et au calme, votre constructeur de maisons IGC, offrez-vous le confort d’une maison contemporaine de 123 m² imaginée pour conjuguer lumière, fonctionnalité et confort au quotidien.🪟 Espace jour : un vaste séjour traversant baigné de lumière, avec cuisine ouverte pour des moments conviviaux en famille ou entre amis. 🛏️ Espace nuit : trois chambres dont une suite parentale avec salle d’eau, une salle de bains familiale et un garage intégré. Chaque mètre carré est pensé pour votre confort et votre sérénité.✨ Les + IGC :• Maison de plain-pied, lumineuse et fonctionnelle • Conception éco-responsable et performante • Espaces optimisés et personnalisables • Accompagnement complet, du plan à la remise des clésDepuis plus de 40 ans, IGC met son savoir-faire au service de la qualité, de la sécurité et de la satisfaction de ses clients.Certification NF Habitat HQE 📍 Emplacement : secteur calme et agréable, cadre de vie privilégié 💰 Étude gratuite et personnalisée sans engagement 📞 Contactez Jérôme LASSABE au (Numéro supprimé) pour plus d’informations ou pour une première rencontre dans notre showroom de DAX.
Rivière-Saas-et-Gourby
TERRAIN ET MAISONDans un quartier résidentiel, calme et proche de tout, offrez-vous le confort d’une maison contemporaine de 105 m² imaginée pour conjuguer lumière, fonctionnalité et confort au quotidien.🪟 Espace jour : un vaste séjour traversant baigné de lumière, avec cuisine ouverte pour des moments conviviaux en famille ou entre amis. 🛏️ Espace nuit : trois chambres dont une suite parentale avec salle d’eau, une salle de bains familiale et un garage intégré. Chaque mètre carré est pensé pour votre confort et votre sérénité.✨ Les + IGC :• Maison de plain-pied, lumineuse et fonctionnelle • Conception éco-responsable et performante • Espaces optimisés et personnalisables • Accompagnement complet, du plan à la remise des clésDepuis plus de 40 ans, IGC met son savoir-faire au service de la qualité, de la sécurité et de la satisfaction de ses clients.Certification NF Habitat HQE 📍 Emplacement : secteur calme et agréable, cadre de vie privilégié 💰 Étude gratuite et personnalisée sans engagement 📞 Contactez Jérôme LASSABE au (Numéro supprimé) pour plus d’informations ou pour une première rencontre dans notre showroom de DAX.
Saint-Jean-de-Marsacq
TERRAIN ET MAISONSituée à Saint-Jean-de-Marsacq dans un environnement paisible et verdoyant, cette construction neuve vous offre tout le confort dont vous avez besoin pour poser vos valises !La maison (120 m² habitables + garage 15 m²) :4 belles chambres lumineusesUne salle de bain moderne avec doucheUne cuisine ouverte sur un grand séjour, idéale pour partager des moments conviviauxUn garage de 15 m² pour votre voiture ou du rangementLe terrain :Superficie de 544 m², parfaitement exposéIdéal pour un jardin, une terrasse, une piscine…Situé dans un quartier résidentiel, proche des commodités tout en profitant du calme de la campagneConstruction conforme aux normes RE2020Possibilité de personnalisation si achat en cours de constructionSi vous êtes intéresser par ce projet de construction n’hésité pas à me contacter au : (Numéro supprimé)
Tercis-les-Bains
TERRAIN ET MAISONTercis-les-Bains (40180) – À 5 min de DaxIGC Construction vous propose un projet de construction moderne et fonctionnel dans un cadre de vie paisible, à Tercis-les-Bains, aux portes de Dax. Votre future maison – 85 m² habitables + garage de 15 m² :3 chambres avec placards intégrésPièce de vie spacieuse et lumineuse avec cuisine ouverteSalle de bain équipée + WC séparésCellier attenant à la cuisineGarage de 15 m² avec accès direct à la maisonDomotique intégrée : volets roulants motorisés, alarme, gestion connectéeLe terrain – 523 m² :Terrain plat, exposé plein sudProche commerces, écoles, transports, et à moins de 10 minutes du centre-ville de DaxPourquoi choisir IGC Construction ?Constructeur de référence dans les Landes depuis plus de 40 ansSuivi personnalisé de votre projetGaranties constructeur : décennale, dommage ouvrage, livraison à prix et délai convenuContactez votre agence IGC Dax au (Numéro supprimé) pour en savoir plus ou obtenir une étude gratuite de votre projet.
Saubion
TERRAIN ET MAISONFaites construire votre maison IGC sur cette parcelle de 460 m² à Saubion; rare sur le secteur.Cette maison de plain pied et fonctionnelle d’une surface habitable de 64 m² à 114 m² (selon votre budget et vous envies) vous propose trois chambres, un bureau et un salon – séjour spacieux, cette maison est belle, confortable et agréable à vivre.Profitez de son séjour lumineux, d’une pièce de vie ouverte sur la cuisine, et d’un séjour traversant avec de grandes baies vitrée.Le plan de la maison est entièrement personnalisable et modulable selon vos envies et votre budget. N’hésitez pas à contacter votre agence IGC Angresse au (Numéro supprimé) pour étudier toutes les possibilités qui s’offrent à vous.Exemple d’enveloppe budgétaire pour la réalisation d’une maison IGC sur le terrain de nos partenaires fonciers.Maison prête à décorer, tous frais liés à la structure compris hors frais annexes (financier et notaire). Photo non contractuelle.(Numéro supprimé)
Saint-Vincent-de-Tyrosse
TERRAIN ET MAISONFaite construire votre maison avec IGC Angresse sur ce joli terrain de 750 m² à St Vincent de Tyrosse.Cette maison de plain pied et fonctionnelle d’une surface habitable de 64 m² à 114 m² (selon votre budget et vous envies) vous propose trois chambres, un bureau et un salon – séjour spacieux, cette maison est belle, confortable et agréable à vivre.Profitez de son séjour lumineux, d’une pièce de vie ouverte sur la cuisine, et d’un séjour traversant avec de grandes baies vitréesLa terrasse et la garage peuvent être ajouter à votre projet.N’hésitez pas à contacter votre agence IGC Angresse au (Numéro supprimé), nous sommes à votre écoute pour créer ensemble votre projet de construction.Maison prête à décorer, tous frais liés à la structure compris hors frais annexes (financier et notaire).
L’actualité immobilière à Saint-Geours-de-Maremne
13/10/2022
07/10/2022
03/10/2022
26/09/2022
16/09/2022
09/09/2022