Projet Terrain 1200 m² + Maison 125 m²
Images
Description
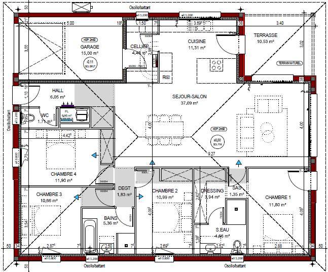
Projet Terrain 1200 m² + Maison 4 chambres HORS LOTISSEMENT - Dans un environnement unique à proximité du Centre et du Lac, offrez-vous le confort d’une maison contemporaine imaginée pour conjuguer lumière, fonctionnalité et confort au quotidien.
🪟 Espace jour : un vaste séjour baigné de lumière avec cuisine ouverte (cellier attenant) pour des moments conviviaux en famille ou entre amis + terrasse couverte. 🛏️ Espace nuit : quatre chambres dont une suite parentale avec salle d’eau, une salle de bains familiale et un garage intégré. Chaque mètre carré est pensé pour votre confort et votre sérénité.
✨ Les + IGC :• Maison de plain-pied, lumineuse et fonctionnelle • Conception éco-responsable et performante • Espaces optimisés et personnalisables • Accompagnement complet du plan à la remise des clés
Depuis plus de 40 ans, IGC met son savoir-faire au service de la qualité, de la sécurité et de la satisfaction de ses clients.Certification NF Habitat HQE 📍 Emplacement : secteur très recherché calme et agréable, cadre de vie privilégié 💰 Étude gratuite et personnalisée sans engagement 📞 Contactez Jérôme LASSABE au (Numéro supprimé) pour plus d’informations ou pour une première rencontre dans notre showroom de DAX.
Logement susceptibles de vous intéresser
Nous vous proposons de découvrir aussi cette sélection de logements situés à moins de 10km de Soustons et qui seraient susceptibles de vous intéresser.
Azur
TERRAIN ET MAISONTrès jolie villa neuve de 86m² située à Azur sur un terrain de 479m², hors lotissement!3 chambres, 1 dressing, 1 SDE, 1 grand salon séjour traversant avec cuisine ouverte, 1 cellier, 1 WC séparéCe projet est proposé par IGC construction Angresse, il pourra être modifié et finalisé selon vos souhaits et votre budget.239900 euros HFN, hors garage, contrat de maison prête à décorer (reste à votre charge les peintures intérieures, l’aménagement de la cuisine et des placards et l’aménagement extérieur).Pour plus de renseignement, n’hésitez pas à contacter Baptiste BERLIOZ au (Numéro supprimé)
Seignosse
MAISONBienvenue chez Abriculteurs, l’agence familiale qui s’engage à un service immobilier d’exception. Découvrez une présentation soignée de ce bien : des photos professionnelles, un plan détaillé et une visite virtuelle immersive .Dans l’environnement privilégié du Golf de Seignosse, à seulement 5 minutes des plages des Bourdaines et du lac d’Hossegor, charmante villa lumineuse située au calme en fond d’impasse, sur un terrain plat et paysagé d’environ 670 m².La maison se compose d’une entrée avec placards, d’un vaste séjour traversant avec cheminée, ouvrant sur deux vérandas permettant de profiter davantage du jardin arboré, et d’une cuisine indépendante équipée.Le rez-de-chaussée comprend également deux grandes chambres, un bureau (ou chambre d’appoint), une salle de bains avec douche et baignoire, une buanderie et un WC indépendant.À l’étage, une chambre avec coin douche, toilette et des espaces de rangements.Prestations complémentaires : un grand garage (accessible depuis la maison), une cabane de jardin et un carport.Environnement privilégié, entre nature, golf, plages et lac.Idéal résidence principale ou secondaire. Bien rare.À noter :- Les charges annuelles varient entre 1760€ et 2420€ (abonnements inclus, années de référence 2021/2022/2023, .Classe énergie : D(230 kWhEP/m².an), GES : B(7kg CO₂/m².an).- Raccordée au tout-à-l’égoutPrix de vente : 850 000 € (hors honoraires)Honoraires à la charge de l’acquéreur : 51000 €Prix total HAI : 901 000 € TTCLes informations sur les risques auxquels ce bien est exposé sont disponibles sur le site Géorisques : : www.georisques.gouv.frAnnonce rédigée sous la responsabilité éditoriale de Mme Caroline BOITIAUX, agent commercial (EI), immatriculé au RSAC de DAX sous le n° 484471206, sans détention de fonds, agissant pour le compte de la SARL Abriculteurs immobilier, au capital de 5 000 €, immatriculée sous le SIREN n° 837 704 584, titulaire de la carte professionnelle n° CPI 7501 2018 000 025 842 délivrée par la CCI de Paris Île-de-France, dont le représentant légal est M. Adrien Piot, ayant son siège social au 12 rue des Halles, 75001 Paris.Les informations sur les risques auxquels ce bien est exposé sont disponibles sur le site www.georisques.gouv.fr
Tosse
MAISONBienvenue chez Abriculteurs, l’agence familiale qui s’engage à un service immobilier d’exception. Découvrez une présentation soignée de ce bien : des photos professionnelles et une visite virtuelle immersive disponibles sur demande, pour vous projeter dans un cadre unique.Dans un cadre paisible et verdoyant, cette somptueuse propriété de 295 m² habitables s’étend sur un terrain arboré de 4 926 m². L’atmosphère sereine y est sublimée par un étang privé de 1 000 m², alimenté par le ruisseau Capdeil, apportant à ce lieu une ambiance bucolique unique.La maison principale :Cette demeure pleine de charme et d’authenticité se compose de 10 pièces, 7 chambres, dont 5 suites avec salles d’eau privatives. Le cœur de la maison se trouve dans une superbe pièce de vie cathédrale, spacieuse et lumineuse, idéale pour des moments de convivialité et de partage.La dépendance :Attenante à la maison mais indépendante, une dépendance de 55 m² propose 2 chambres, dont une suite, ainsi qu’une pièce de vie avec cuisine ouverte. Idéale pour un gîte, un espace invités, ou tout autre projet d’accueil, cette annexe offre de nombreuses possibilités d’aménagement.À l’extérieur :Une grande terrasse équipée d’une pergola offre un cadre idéal pour vos repas en extérieur et vos moments de détente.La piscine chauffée au sel (12 x 5 m) vous garantit des baignades agréables du printemps à l’automne.Un terrain de pétanque complète ce superbe espace extérieur.À proximité immédiate : piste cyclable, commerces et commodités.Ce bien s’adapte aussi bien à une résidence principale familiale qu’à un projet de maison d’hôtes, dans un environnement enchanteur.Les atouts de ce bien : il dispose d’un vaste terrain arboré avec un étang privé, de cinq suites ainsi qu’une dépendance bénéficiant de son propre accès. Une piscine chauffée au sel, une grande terrasse et une pergola complètent cet ensemble. L’environnement est paisible, tout en étant proche des commodités et d’une piste cyclable.À noter : le diagnostic de performance énergétique indique une classe C (138 kWhEP/m².an) et une classe A pour les émissions de gaz à effet de serre (4 kg CO₂/m².an).Estimation du coût annuel d’énergie : entre 3 070 € et 4 210 € (abonnements inclus, années de référence 2021/2022/2023)Prix de vente :1 800 000 € (hors honoraires)Honoraires à la charge de l’acquéreur : 72 000 €Prix total HAI : 1 872 000 € TTCLes informations sur les risques auxquels ce bien est exposé sont disponibles sur le site Géorisques : : www.georisques.gouv.frAnnonce rédigée sous la responsabilité éditoriale de Mme Caroline BOITIAUX, agent commercial (EI), immatriculé au RSAC de DAX sous le n° 484471206, sans détention de fonds, agissant pour le compte de la SARL Abriculteurs immobilier, au capital de 5 000 €, immatriculée sous le SIREN n° 837 704 584, titulaire de la carte professionnelle n° CPI 7501 2018 000 025 842 délivrée par la CCI de Paris Île-de-France, dont le représentant légal est M. Adrien Piot, ayant son siège social au 12 rue des Halles, 75001 Paris.Les informations sur les risques auxquels ce bien est exposé sont disponibles sur le site www.georisques.gouv.fr
Tosse
TERRAIN ET MAISONDécouvrez ce magnifique projet chez IGC. Maison neuve prête à décorer sur la commune de Tosse. Terrain viabilisé de 419m2 situé à 10 min des plages landaises.Agréable maison de 85m2 avec 3 chambres, 1 salle de bain séparée, 1 séjour-salon-cuisine de 36m2, 1 cellier.Ce projet est proposé par IGC construction Angresse, il pourra être modifié et finalisé selon vos souhaits et votre budget.324000 euros HFN, contrat de maison prête à décorer ( reste à votre charge les peintures intérieurs, l’aménagement de la cuisine et des placards ).Les informations sur les risques auxquels ce bien est exposé sont disponibles sur le site Géorisques : (Lien supprimé)
Soustons
TERRAIN ET MAISONSituée à Soustons, cette maison neuve de 110m2 donne un cadre de vie confortable et parfaitement adapté à une vie de famille.Elle seprésente 4 pièces, dont 1 suite parentale, ainsi que deux chambres. Au centre de la maison, vous découvrirez un espace de vie lumineux de plus de 50m2.Coté extérieur, le terrain de 1265 m2 permet d’aménager un jardin selon vos envies. Le bardage ainsi que l’aménagement extérieur reste à charge client.Ce projet est proposé par IGC construction Angresse, il pourra être modifié et finalisé selon vos souhaits et votre budget.448 000 euros HFN, contrat de maison prête à décorer ( reste à votre charge les peintures intérieurs, l’aménagement de la cuisine et des placards ainsi que l’aménagement extérieur ).Les informations sur les risques auxquels ce bien est exposé sont disponibles sur le site Géorisques : (Lien supprimé)
Seignosse
TERRAIN ET MAISONSituée dans un environnement privilégié à Seignosse Océan, cette belle maison neuve vous est proposé sur un terrain de 790m2, offrant calme, espace et qualité de vie à proximité du littoral.Le projet comprend une maison moderne et fonctionnelle composée:Au rez-de-chaussée, d’une pièce de vie spacieuse de plus de 50m2, un cellier, ainsi que d’une suite parentale.A l’étage, de trois chambres, d’une salle d’eau et d’un WC séparé. Le garage est en option.Cette maison a été pensée pour allier confort, modernité et optimisation des espaces, idéale pour une famille.Ce projet est proposé par IGC construction Angresse, il pourra être modifié et finalisé selon vos souhaits et votre budget.1 250 000 euros HFN, contrat de maison prête à décorer ( reste à votre charge les peintures intérieurs, l’aménagement de la cuisine et des placards ).Les informations sur les risques auxquels ce bien est exposé sont disponibles sur le site Géorisques : (Lien supprimé)
Tosse
TERRAIN ET MAISONSituée à Tosse, cette maison neuve de 133m2 présente un cadre de vie confortable et parfaitement adapté à une vie de famille.Elle se compose de 4 pièces, dont deux suites parentales, ainsi que d’un bureau. Au centre de la maison, vous découvrirez un vaste espace de vie de près de 60m2.Coté extérieur, le terrain de 550m2 permet d’aménager un jardin selon vos envies. Le bardage reste à charge client. Ce projet est proposé par IGC construction Angresse, il pourra être modifié et finalisé selon vos souhaits et votre budget.493 000 euros HFN, contrat de maison prête à décorer ( reste à votre charge les peintures intérieurs, l’aménagement de la cuisine et des placards ainsi que l’aménagement extérieur ).Les informations sur les risques auxquels ce bien est exposé sont disponibles sur le site Géorisques : (Lien supprimé)
Soustons
TERRAIN ET MAISONSituée à Soustons, cette maison spacieuse de 165m2 offre des volumes généreux et un agencement idéal pour une vie de famille confortable.Elle se compose d’un vaste séjour-salon-cuisine lumineux de 65m2. La partie nuit comprend 4 chambres, 1 bureau 2 salles d’eau ainsi qu’un dressing.Un garage de plus de 35m2 complète ce bien et apporte un espace de stationnement et de rangement appréciable. Implantée sur un terrain de 663m2, cette maison offre un beau jardin à aménager selon vos envies. Ce projet est proposé par IGC construction Angresse, il pourra être modifié et finalisé selon vos souhaits et votre budget.615 600 euros HFN, contrat de maison prête à décorer ( reste à votre charge les peintures intérieurs, l’aménagement de la cuisine et des placards ).Les informations sur les risques auxquels ce bien est exposé sont disponibles sur le site Géorisques : (Lien supprimé)
Seignosse
TERRAIN ET MAISONDans un environnement privilégié à Seignosse Océan, découvrez cette maison d’exception de 180m2, aux prestations soignées et aux volumes généreux, pensée pour offrir un confort absolu.Ce bien vous permet d’accéder aux plages landaises à pied ou à vélo. La maison se compose de 6 pièces, dont 5 chambres, chacune disposant de sa propre salle d’eau.Elle présente un sejour-salon-cuisine de près de 65m2 offrant convivialité et luminosité. Implantée sur un terrain de 937m2, la propriété donne un cadre extérieur avec de belles possibilités d’aménagement. Ce projet est proposé par IGC construction Angresse, il pourra être modifié et finalisé selon vos souhaits et votre budget.1 698 650 euros HFN, contrat de maison prête à décorer ( reste à votre charge les peintures intérieurs, l’aménagement de la cuisine et des placards ).Les informations sur les risques auxquels ce bien est exposé sont disponibles sur le site Géorisques : (Lien supprimé)
Saubion
TERRAIN ET MAISONDécouvrez cette belle maison neuve de 130m2, pensée pour offrir confort et fonctionnalité dans un cadre agréable. Elle se compose d’un séjour-salon-cuisine lumineux de 40m2, ainsi que d’un cellier. Elle propose trois chambres dont une suite parentale avec dressing et salle d’eau. A l’extérieur, vous profiterez d’un jardin de 632m2 à aménager selon vos envies. Ce projet est proposé par IGC construction Angresse, il pourra être modifié et finalisé selon vos souhaits et votre budget.495 000 euros HFN, contrat de maison prête à décorer ( reste à votre charge les peintures intérieurs, l’aménagement de la cuisine et des placards ).Les informations sur les risques auxquels ce bien est exposé sont disponibles sur le site Géorisques : (Lien supprimé)
L’actualité immobilière à Soustons
13/10/2022
07/10/2022
03/10/2022
26/09/2022
16/09/2022
09/09/2022