Superbe villa proche de Léon
Images
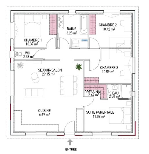
Description
Très belle maison de plain-pied de 97m² à Saint Michel EscalusVotre constructeur de maisons IGC, vous propose Atlantique 97, une maison de plain-pied lumineuse, confortable et bien pensée pour offrir le maximum de fonctionnalité à ses occupants. Cette maison de plain-pied d’une surface habitable de 97 m² propose une façade rythmée, stylisée, une alliance d’enduit sable et un bardage en bois naturel.Elle porte le style de notre région océanique. Cette maison est composée de trois chambres, une suite parentale et un agréable salon séjour, idéale pour les familles qui souhaitent une maison adaptée à leurs besoins.• Maison 3 chambres + suite parentale• Maison lumineuse & plain-pied• Maison bardage bois naturel• Maison éco-responsable
Logement susceptibles de vous intéresser
Nous vous proposons de découvrir aussi cette sélection de logements situés à moins de 10km de Léon et qui seraient susceptibles de vous intéresser.
Azur
TERRAIN ET MAISONTrès jolie villa neuve située à Azur sur un terrain de 390m², hors lotissement!3 chambres avec placard, 1 SDE, grand salon séjour avec cuisine ouverte, WC séparé et aéré.Ce projet est proposé par IGC construction Angresse, il pourra être modifié et finalisé selon vos souhaits et votre budget.238000 euros HFN, contrat de maison prête à décorer (reste à votre charge les peintures intérieures, l’aménagement de la cuisine et des placards et l’aménagement extérieur).Pour plus de renseignement, n’hésitez pas à contacter Baptiste BERLIOZ au (Numéro supprimé)
Azur
TERRAIN ET MAISONProjet de construction maison neuve à Azur.Terrain de 400 m² hors lotissement situé sur la route de Messanges.Maison de 90 m², 3 chambres, 1 salle de bain, WC séparés, salon- séjour cuisine de plus de 35 m².Ce projet est proposé par IGC construction Angresse, il pourra être modifié et finalisé selon vos souhaits et votre budget.279 560 euros HFN, contrat de maison prête à décorer ( reste à votre charge les peintures intérieurs, l’aménagement de la cuisine et des placards ).Les informations sur les risques auxquels ce bien est exposé sont disponibles sur le site Géorisques : (Lien supprimé)
Moliets-et-Maa
TERRAIN ET MAISONSituée à Moliets, dans un environnement calme et agréable, cette maison offre une surface habitable de 110m2, idéale pour une famille.Elle se compose de 5 pièces, dont 4 chambres, permettant d’accueillir confortablement une famille. L’agencement est fonctionnel avec des volumes bien répartis et une belle luminosité. Implantée sur un terrain de 1008m2,la maison bénéficie d’un extérieur spacieux, offrant de nombreuses possibilités d’aménagement. Ce projet est proposé par IGC construction Angresse, il pourra être modifié et finalisé selon vos souhaits et votre budget.707 000 euros HFN, contrat de maison prête à décorer ( reste à votre charge les peintures intérieurs, l’aménagement de la cuisine et des placards ).Les informations sur les risques auxquels ce bien est exposé sont disponibles sur le site Géorisques : (Lien supprimé)
Léon
TERRAIN ET MAISONTrès belle maison de plain-pied de 97m² à Saint Michel EscalusVotre constructeur de maisons IGC, vous propose Atlantique 97, une maison de plain-pied lumineuse, confortable et bien pensée pour offrir le maximum de fonctionnalité à ses occupants. Cette maison de plain-pied d’une surface habitable de 97 m² propose une façade rythmée, stylisée, une alliance d’enduit sable et un bardage en bois naturel.Elle porte le style de notre région océanique. Cette maison est composée de trois chambres, une suite parentale et un agréable salon séjour, idéale pour les familles qui souhaitent une maison adaptée à leurs besoins.• Maison 3 chambres + suite parentale• Maison lumineuse & plain-pied• Maison bardage bois naturel• Maison éco-responsable
Moliets-et-Maa
TERRAIN ET MAISONMaison moderne et confortable de 110 m² avec garage.Dans un bel environnement proche des plages et du bourg, sur un beau terrain plat de 800 m², découvrez ce beau projet de maison IGC de 110 m² imaginé pour conjuguer lumière, fonctionnalité et confort au quotidien.🪟 Espace jour : un vaste séjour traversant baigné de lumière, avec cuisine ouverte pour des moments conviviaux en famille ou entre amis. 🛏️ Espace nuit : quatre chambres dont une suite parentale avec salle d’eau, une salle de bains familiale et un garage intégré. Chaque mètre carré est pensé pour votre confort et votre sérénité.✨ Les + IGC :• Maison de plain-pied, lumineuse et fonctionnelle • Conception éco-responsable et performante • Espaces optimisés et personnalisables • Accompagnement complet, du plan à la remise des clésDepuis plus de 40 ans, IGC met son savoir-faire au service de la qualité, de la sécurité et de la satisfaction de ses clients.Certification NF Habitat HQE 📍 Emplacement : secteur calme et agréable, cadre de vie privilégié 💰 Étude gratuite et personnalisée sans engagement 📞 Contactez Jérôme LASSABE au (Numéro supprimé) pour plus d’informations ou pour une première rencontre dans notre showroom de DAX.
Moliets-et-Maa
TERRAIN ET MAISONDans un quartier calme et proche de tout, sur un terrain de 567 m² viabilisé et plat, offrez-vous le confort d’une maison contemporaine de 100 m² imaginée pour conjuguer lumière et fonctionnalité au quotidien.🪟 Espace jour : un vaste séjour traversant baigné de lumière, avec cuisine ouverte pour des moments conviviaux en famille ou entre amis. 🛏️ Espace nuit : trois chambres dont une suite parentale avec salle d’eau, une salle de bains familiale.✨ Les + IGC :• Maison de plain-pied, lumineuse et fonctionnelle • Conception éco-responsable et performante • Espaces optimisés et personnalisables • Accompagnement complet, du plan à la remise des clésDepuis plus de 40 ans, IGC met son savoir-faire au service de la qualité, de la sécurité et de la satisfaction de ses clients.Certification NF Habitat HQE 📍 Emplacement : secteur calme et agréable, cadre de vie privilégié 💰 Étude gratuite et personnalisée sans engagement 📞 Contactez Jérôme LASSABE au (Numéro supprimé) pour plus d’informations ou pour une première rencontre dans notre showroom de DAX.
Messanges
TERRAIN ET MAISONEn plein cœur du bourg, au calme et dans un environnement privilégié, à quelques minutes d’une des plus belles plages des Landes, offrez-vous le confort d’une maison contemporaine de 100 m² imaginée pour conjuguer lumière, fonctionnalité et confort au quotidien.🪟 Espace jour : un vaste séjour traversant baigné de lumière, avec cuisine ouverte pour des moments conviviaux en famille ou entre amis. 🛏️ Espace nuit : trois chambres dont une suite parentale avec salle d’eau, une salle de bains familiale et un garage intégré. Chaque mètre carré est pensé pour votre confort et votre sérénité.✨ Les + IGC :• Maison de plain-pied, lumineuse et fonctionnelle • Conception éco-responsable et performante • Espaces optimisés et personnalisables • Accompagnement complet, du plan à la remise des clésDepuis plus de 40 ans, IGC met son savoir-faire au service de la qualité, de la sécurité et de la satisfaction de ses clients.Certification NF Habitat HQE 📍 Emplacement : secteur calme et agréable, cadre de vie privilégié 💰 Étude gratuite et personnalisée sans engagement 📞 Contactez Jérôme LASSABE au (Numéro supprimé) pour plus d’informations ou pour une première rencontre dans notre showroom de DAX.
Messanges
TERRAIN ET MAISONDans un cadre naturel d’exception, à seulement 2 km des plages, profitez du calme tout en restant proche de toutes les commodités. Découvrez cette maison contemporaine de 180 m² imaginée pour conjuguer lumière, fonctionnalité et confort au quotidien.🪟 Espace jour : un vaste séjour traversant baigné de lumière, avec cuisine ouverte pour des moments conviviaux en famille ou entre amis. 🛏️ Espace nuit : cinq chambres dont une suite parentale avec salle d’eau, une salle de bains familiale et un garage intégré. Chaque mètre carré est pensé pour votre confort et votre sérénité.✨ Les + IGC :• Maison de plain-pied, lumineuse et fonctionnelle • Conception éco-responsable et performante • Espaces optimisés et personnalisables • Accompagnement complet, du plan à la remise des clésDepuis plus de 40 ans, IGC met son savoir-faire au service de la qualité, de la sécurité et de la satisfaction de ses clients.Certification NF Habitat HQE 📍 Emplacement : secteur calme et agréable, cadre de vie privilégié 💰 Étude gratuite et personnalisée sans engagement 📞 Contactez Jérôme LASSABE au (Numéro supprimé) pour plus d’informations ou pour une première rencontre dans notre showroom de DAX.
Saint-Michel-Escalus
TERRAIN ET MAISONMaison + terrain de 703 m² à Saint-Michel-Escalus – Projet idéal 1er achat ou résidence secondaireOpportunité à saisir ! Projet de construction d’une maison neuve de 100 m2 sur un terrain plat, viabilisé et bien exposé de 703 m², situé à Saint-Michel-Escalus, dans un cadre naturel et paisible à deux pas de l’océan.Projet proposé :Maison de 100 m² habitables3 chambres avec rangementsPièce de vie spacieuse et lumineuse avec cuisine ouverteSalle de bain, WC séparésPlans modulables selon vos besoins et finitions personnalisablesLe terrain :Surface : 703 m²Viabilisé : eau, électricité, télécoms, tout-à-l’égoutTerrain plat et facile à aménagerExposition optimale pour une maison lumineuseQuartier calme, proche de la nature, à quelques minutes des plages et des commercesLocalisation :Saint-Michel-Escalus – à proximité immédiate de Léon, Vielle-Saint-Girons, et des stations balnéaires landaises.Contactez Nicolas Oliveira au : (Numéro supprimé) pour une étude gratuite et personnalisée de votre projet.
Saint-Michel-Escalus
TERRAIN ET MAISONÀ saisir ! Projet de construction d’une maison neuve de 140 m² sur un terrain plat et viabilisé de 757 m², situé à Saint-Michel-Escalus, à quelques minutes de l’océan.Projet proposé :Maison de 140 m² en forme de L4 chambres dont une suite parentaleGrande pièce de vie lumineuse avec cuisine ouverteCellier, salle de bain + salle d’eau, WC séparésConception moderne et fonctionnellePossibilité de personnalisation des plans et des prestationsLe terrain :757 m², entièrement viabilisé (eau, électricité, tout-à-l’égout, télécoms)Exposition idéale, ensoleillée toute la journéeTerrain plat, facile à bâtirEnvironnement calme, nature préservée, à proximité des plages et des commoditésLocalisation :Saint-Michel-Escalus – charmante commune des Landes, proche de Léon, Vielle-Saint-Girons, et des plages de la côte Atlantique.Contactez Nicolas Oliveira au (Numéro supprimé) pour plus d’informations, visite du terrain ou étude gratuite de votre projet personnalisé.
L’actualité immobilière à Léon
13/10/2022
07/10/2022
03/10/2022
26/09/2022
16/09/2022
09/09/2022