Votre maison moderne à Bougue
Images
Description
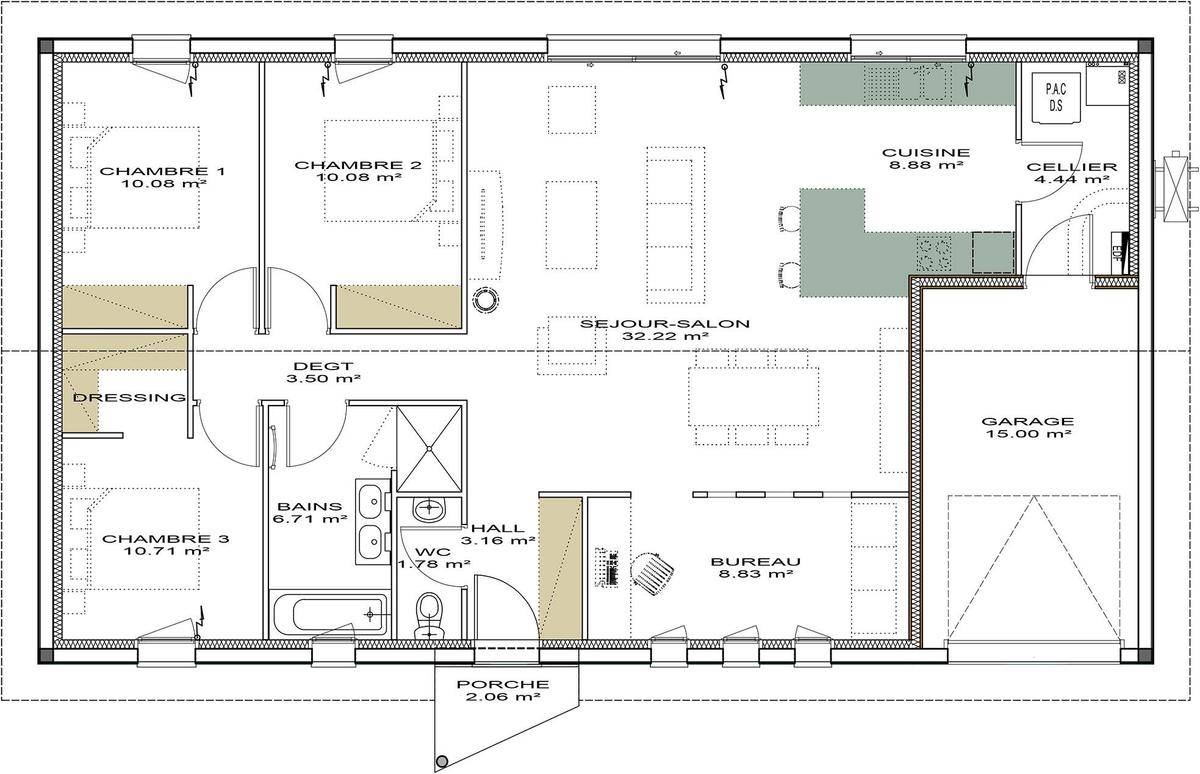
A quelques minutes du centre de Mont-de-Marsan , IGC vous propose une projet de construction moderne sur un terrain 500 m². Une maison plain pied et fonctionnelle d’une surface habitable de 100 m². Séjour lumineux, pièce de vie ouverte sur la cuisine, séjour traversant, grandes baies vitrées, terrasse, maison modulable, espaces de rangements, garage. Sa façade rythmée et son porche stylisé lui procure une allure contemporaine. Contactez votre agence IGC de Dax pour réaliser votre maison "confort nouvelle génération" RE2020.Construction IGCGuillaume Bon (Numéro supprimé)
Logement susceptibles de vous intéresser
Nous vous proposons de découvrir aussi cette sélection de logements situés à moins de 10km de Bougue et qui seraient susceptibles de vous intéresser.
Bascons
MAISONSitué au cœur du bourg de Lit-et-Mixe, à proximité immédiate de toutes les commodités et à quelques minutes des plages landaises, cette maison de 230m² habitables offre un potentiel rare pour les professions libérales, commerçants, ou investisseurs.Sur une parcelle totale de 750m² , cette maison à rénover se compose :Rez-de-chaussée : entrée, cuisine indépendante, salon, séjour, salle d’eau, WC, buanderie, et grande pièce suplémentaireÉtage : grand palier desservant 4 chambres spacieuses, une salle d’eau et un WC supplémentaire Possibilité de réorganiser les volumesStationnement libre sur la parcelle pour plusieurs véhicules. Terrain plat, piscinable, environnement agréable. Raccordement tout à l’égout. Communes voisines attractives :Mimizan (40200)Saint-Julien-en-Born (40170)Moliets-et-Maa (40660)Léon (40550)260 000€ – Vente en direct propriétaire
Mont-de-Marsan
TERRAIN ET MAISONMaison NEUVE de 2025 située au fond d’un impasse 128 m2 + 20 m2 de Garage. Idéalement située dans une impasse à proximité immédiate du centre ville.Vous n’aurez plus qu’à faire tout l’intérieur (voir plan)Les travaux estimés pour toutes les finitions (devis artisans) sont estimés à 80k€Pour plus d’information, contacter Nicolas GARDIES : (Numéro supprimé)Cette annonce référence 314913 vous est présentée par votre agent commercial BSK Immobilier NICOLAS GARDIES (EI) immatriculé au RSAC de MONT-DE-MARSAN (40000) sous le numéro 9(Numéro supprimé)012.Prix du bien : 178 000,00 €Les honoraires d’agence sont à la charge du vendeur.Les informations sur les risques auxquels ce bien est exposé sont disponibles sur le site Géorisques : www.georisques.gouv.fr
Mont-de-Marsan
TERRAIN ET MAISONA Mont-de-Marsan, quartier de Saint Médard, IGC vous propose une maison moderne de plain-pied de 123 m² sur un terrain de 625 m2. Son plan en « L » bien adaptée à un mode de vie contemporain, favorise l’intimité de ses habitants. Le salon séjour particulièrement lumineux, propose de grandes baies en double exposition. L’espace nuit est pensé pour faciliter le confort de chacun. Contactez votre agence IGC de Mont-de-Marsan pour réaliser votre maison « confort nouvelle génération » RE2020.
Mazerolles
TERRAIN ET MAISONProche de Mont-de-Marsan, en plain cœur du bourg, IGC vous propose une maison moderne de plain-pied de 123 m² sur un terrain de 550m2. Son plan en « L » bien adaptée à un mode de vie contemporain, favorise l’intimité de ses habitants. Le salon séjour particulièrement lumineux, propose de grandes baies en double exposition. L’espace nuit est pensé pour faciliter le confort de chacun. Contactez votre agence IGC de Mont-de-Marsan pour réaliser votre maison « confort nouvelle génération » RE2020.
Bougue
TERRAIN ET MAISONA quelques minutes du centre bourg, et 5 min de Mont-de-Marsan IGC vous propose une projet de construction moderne sur un terrain 500 m². Une maison plain pied et fonctionnelle d’une surface habitable de 85m². Séjour lumineux, pièce de vie ouverte sur la cuisine, séjour traversant, grandes baies vitrées, terrasse, maison modulable, espaces de rangements. Contactez votre agence IGC de Dax pour réaliser votre maison « confort nouvelle génération » RE2020.Construction IGCGuillaume Bon
Bascons
TERRAIN ET MAISONÀ quelques minutes à pied du centre bourg , IGC vous propose une maison moderne de plain-pied de 123 m² sur un terrain de 600 m². Son plan en « L » bien adaptée à un mode de vie contemporain, favorise l’intimité de ses habitants. Le salon séjour particulièrement lumineux, propose de grandes baies en double exposition. L’espace nuit est pensé pour faciliter le confort de chacun. Contactez votre agence IGC de Mont-de-Marsan pour réaliser votre maison « confort nouvelle génération » RE2020. *Guillaume BON
Bascons
TERRAIN ET MAISONProche centre bourg , IGC vous propose une projet de construction moderne sur un terrain 500 m². Une maison plain pied et fonctionnelle d’une surface habitable de 100 m². Séjour lumineux, pièce de vie ouverte sur la cuisine, séjour traversant, grandes baies vitrées, terrasse, maison modulable, espaces de rangements, garage. Sa façade rythmée et son porche stylisé lui procure une allure contemporaine. Contactez votre agence IGC de Dax pour réaliser votre maison « confort nouvelle génération » RE2020.Construction IGCGuillaume Bon
Bascons
TERRAIN ET MAISONÀ une centaine du centre bourg , IGC vous propose une maison moderne de plain-pied de 123 m² sur un terrain de 788m². Son plan en « L » bien adaptée à un mode de vie contemporain, favorise l’intimité de ses habitants. Le salon séjour particulièrement lumineux, propose de grandes baies en double exposition. L’espace nuit est pensé pour faciliter le confort de chacun. Contactez votre agence IGC de Mont-de-Marsan pour réaliser votre maison « confort nouvelle génération » RE2020. *Guillaume BON
Bougue
TERRAIN ET MAISONA quelques minutes du centre de Mont-de-Marsan , IGC vous propose une projet de construction moderne sur un terrain 500 m². Une maison plain pied et fonctionnelle d’une surface habitable de 100 m². Séjour lumineux, pièce de vie ouverte sur la cuisine, séjour traversant, grandes baies vitrées, terrasse, maison modulable, espaces de rangements, garage. Sa façade rythmée et son porche stylisé lui procure une allure contemporaine. Contactez votre agence IGC de Dax pour réaliser votre maison « confort nouvelle génération » RE2020.Construction IGCGuillaume Bon (Numéro supprimé)
Bougue
TERRAIN ET MAISONÀ quelques minutes de Mont-de-Marsan et en plain cœur du bourg, IGC vous propose une maison moderne de plain-pied de 123 m² sur un terrain de 600 m². Son plan en « L » bien adaptée à un mode de vie contemporain, favorise l’intimité de ses habitants. Le salon séjour particulièrement lumineux, propose de grandes baies en double exposition. L’espace nuit est pensé pour faciliter le confort de chacun. Contactez votre agence IGC de Mont-de-Marsan pour réaliser votre maison « confort nouvelle génération » RE2020. *Guillaume BON (Numéro supprimé)
L’actualité immobilière à Bougue
13/10/2022
07/10/2022
03/10/2022
26/09/2022
16/09/2022
09/09/2022