Maison neuve
Images
Description
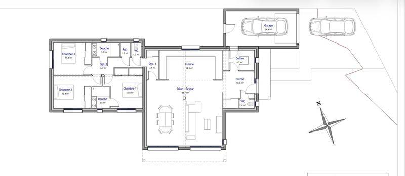
37340 - SAVIGNÉ SUR LATHAN - MAISON PLAIN-PIED CONTEMPORAINE DE 2023 - 141M2 - 3 CHAMBRES - PARCELLE 1000M2
EffiCity, l'agence qui estime votre bien en ligne, vous propose de découvrir cette superbe maison de PLAIN-PIED construite en 2023, idéalement située à 900metres du centre-bourg, alliant confort moderne, volumes et luminosité.
Dès l'entrée, vous serez séduits par une grande entrée accueillante desservant une BUANDERIE, des WC et un accès au GARAGE (24M2).
La pièce de vie offre un SÉJOUR SPACIEUX DE 66M2, et un espace pour une cuisine ouverte, sublimée par de grandes baies vitrées donnant accès à une agréable terrasse exposée sud.
La partie nuit se compose de 3 CHAMBRES, dont une SUITE PARENTALE de 13M2 avec salle d'eau privative, une seconde salle d'eau, ainsi qu'un WC séparé.
Côté prestations, la maison dispose d'un CHAUFFAGE AU SOL alimenté par une pompe à chaleur et de volets électriques.
Les atouts :
oMaison récente (2023)
oPlain-pied
oChauffage au sol / pompe à chaleur
oTrès lumineuse
oTerrain de 1 000 m²
oEnvironnement calme
oProximité immédiate du centre-bourg
Une maison clé en main, idéale pour une famille ou pour ceux qui recherchent le confort du neuf dans un cadre paisible
Les informations sur les risques auxquels ce bien est exposé sont disponibles sur le site Georisque : georisques. gouv. fr
Elvire Cizel - EI - est Agent Commercial mandataire en immobilier, immatriculé au Registre Spécial des Agents Commerciaux du Tribunal de Commerce de Tours sous le n(Numéro supprimé).
Siège social du mandant : effiCity, 48 avenue de Villiers - 75017 PARIS - Société par Actions Simplifiée, société au capital de 132 373,05 euros, immatriculée au RCS Paris 497 617 746 et titulaire de la Carte professionnelle CPI 7501 2015 000 002 025 - CCI Paris IDF - Caisse de Garantie : GALIAN Assurances 89 rue de la Boétie 75008 Paris
Diagnostics énergétiques
Consommation énergétique (DPE)
Émissions de Gaz à effet de serre (GES)
Logement susceptibles de vous intéresser
Nous vous proposons de découvrir aussi cette sélection de logements situés à moins de 10km de Savigné-sur-Lathan et qui seraient susceptibles de vous intéresser.
Ambillou
TERRAIN ET MAISONMaison neuve à construire MAGNOLIA_2CH_61_V1 BELLE MAISON DE 2 CHAMBRES Cette maison de 2 chambres offre une distribution optimisée des pièces. Ce plan compact et fonctionnel a été pensé pour faciliter l’accès à la propriété avec un budget maîtrisé. • Lumineuse avec cuisine ouverte donnant sur son jardin. • Beaux volumes et distribution optimisée des pièces pour votre confort de vie. • Aménagements et équipements de haut niveau : volets roulants motorisés et connectés, système de chauffage par pompe à chaleur, domotique, carrelage grand format. ET SI VOUS FAISIEZ CONSTRUIRE AVEC MAISONS ALYSIA ?Testez notre configurateur en ligne et chiffrez instantanément votre projet personnalisé, téléchargeable. • Gratuit, rapide et sans engagement. • + de 250 modèles de maisons personnalisables. • Calculettes en ligne pour identifier votre budget et évaluer votre future mensualité. Rendez-vous sur notre site maisons-alysia(.com) pour concrétiser votre rêve. Contactez-nous au (Numéro supprimé) pour finaliser votre projet ! Coût du terrain inclus dans cette offre. Hors peintures et faïence, revêtements de sol des chambres. Hors assurance dommages-ouvrage, frais de notaire et frais d’adaptation du terrain éventuels.Cette offre est proposée en collaboration avec notre partenaire foncier selon disponibilités. Contact : au (Numéro supprimé).
Souvigné
TERRAIN ET MAISONMaison neuve à construire ALBIZIA_3CH_92_V1 BELLE MAISON DE 3 CHAMBRES Cette maison de 3 chambres offre une superficie initiale de 92 m2 habitable avant agrandissement. Elle propose une pièce de vie de 42 m2 évolutive selon vos besoins et vos souhaits. • Lumineuse avec cuisine ouverte donnant sur son jardin. • Beaux volumes et distribution optimisée des pièces pour votre confort de vie. • Aménagements et équipements de haut niveau : volets roulants motorisés et connectés, système de chauffage par pompe à chaleur, domotique, carrelage grand format. ET SI VOUS FAISIEZ CONSTRUIRE AVEC MAISONS ALYSIA ?Testez notre configurateur en ligne et chiffrez instantanément votre projet personnalisé, téléchargeable. • Gratuit, rapide et sans engagement. • + de 250 modèles de maisons personnalisables. • Calculettes en ligne pour identifier votre budget et évaluer votre future mensualité. Rendez-vous sur notre site maisons-alysia(.com) pour concrétiser votre rêve. Contactez-nous au (Numéro supprimé) pour finaliser votre projet ! Coût du terrain inclus dans cette offre. Hors peintures et faïence, revêtements de sol des chambres. Hors assurance dommages-ouvrage, frais de notaire et frais d’adaptation du terrain éventuels.Cette offre est proposée en collaboration avec notre partenaire foncier selon disponibilités. Contact : au (Numéro supprimé).
Savigné-sur-Lathan
TERRAIN ET MAISON37340 – SAVIGNÉ SUR LATHAN – MAISON PLAIN-PIED CONTEMPORAINE DE 2023 – 141M2 – 3 CHAMBRES – PARCELLE 1000M2EffiCity, l’agence qui estime votre bien en ligne, vous propose de découvrir cette superbe maison de PLAIN-PIED construite en 2023, idéalement située à 900metres du centre-bourg, alliant confort moderne, volumes et luminosité.Dès l’entrée, vous serez séduits par une grande entrée accueillante desservant une BUANDERIE, des WC et un accès au GARAGE (24M2).La pièce de vie offre un SÉJOUR SPACIEUX DE 66M2, et un espace pour une cuisine ouverte, sublimée par de grandes baies vitrées donnant accès à une agréable terrasse exposée sud.La partie nuit se compose de 3 CHAMBRES, dont une SUITE PARENTALE de 13M2 avec salle d’eau privative, une seconde salle d’eau, ainsi qu’un WC séparé.Côté prestations, la maison dispose d’un CHAUFFAGE AU SOL alimenté par une pompe à chaleur et de volets électriques. Les atouts :oMaison récente (2023)oPlain-piedoChauffage au sol / pompe à chaleuroTrès lumineuseoTerrain de 1 000 m²oEnvironnement calmeoProximité immédiate du centre-bourgUne maison clé en main, idéale pour une famille ou pour ceux qui recherchent le confort du neuf dans un cadre paisible Les informations sur les risques auxquels ce bien est exposé sont disponibles sur le site Georisque : georisques. gouv. fr Elvire Cizel – EI – est Agent Commercial mandataire en immobilier, immatriculé au Registre Spécial des Agents Commerciaux du Tribunal de Commerce de Tours sous le n(Numéro supprimé).Siège social du mandant : effiCity, 48 avenue de Villiers – 75017 PARIS – Société par Actions Simplifiée, société au capital de 132 373,05 euros, immatriculée au RCS Paris 497 617 746 et titulaire de la Carte professionnelle CPI 7501 2015 000 002 025 – CCI Paris IDF – Caisse de Garantie : GALIAN Assurances 89 rue de la Boétie 75008 Paris
L’actualité immobilière à Savigné-sur-Lathan
13/10/2022
07/10/2022
03/10/2022
26/09/2022
16/09/2022
09/09/2022