 
 
 Maison neuve (90 m²) - 4 chambres à CHATEAUGIRON
Images
Description
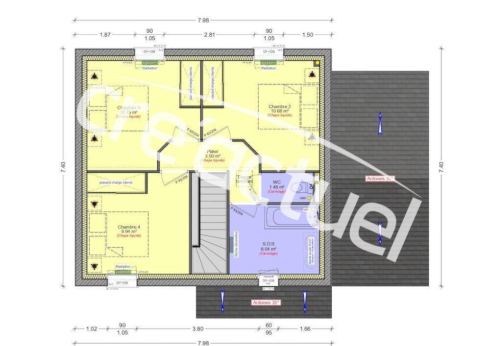
Devenez propriétaire de cette maison confortable  de 90 m2 composée d'une belle pièce de vie lumineuse  de 35 m2 et de 4 chambres . Sur un terrain de 420 m2 situé sur la Commune de CHATEAUGIRON,  proche du centre et des commerces, ce projet de maison contemporaine saura vous séduire. Rencontrons-nous !
Permis de construire prêt à déposer. Prix clé en main tous frais inclus (Frais de notaire, bornage, viabilisation et raccordements, assurance dommage ouvrage) à partir de 339 000 € TTC FRAIS D'AGENCE INCLUS. Disponibilité sous réserve de notre partenaire foncier. Prix susceptible d'évoluer (source tarif 2025) hors adaptation au sol.
Pour votre projet, faites confiance à Cre'Actuel, créateur et constructeur de maisons individuelles.
"Visuels non contractuels. Maison conforme à la règlementation RE 2020 sous réserve de l'implantation et de l'exposition du projet de construction sur le terrain."
Logement susceptibles de vous intéresser
Nous vous proposons de découvrir aussi cette sélection de logements situés à moins de 10km de Châteaugiron et qui seraient susceptibles de vous intéresser.
 
  
 
 Vern-sur-Seiche
TERRAIN ET MAISONDevenez propriétaire de cette maison confortable de 59 m2 composée d’une belle pièce de vie lumineuse de 30 m2 et de 2 chambres . Sur un terrain de 446 m2 situé sur la Commune de VERN SUR SEICHE, proche du centre et des commerces, ce projet de maison contemporaine saura vous séduire. Rencontrons-nous !Permis de construire prêt à déposer. Prix clé en main tous frais inclus (Frais de notaire, bornage, viabilisation et raccordements, assurance dommage ouvrage) à partir de 315 000 € TTC FRAIS D’AGENCE INCLUS. Disponibilité sous réserve de notre partenaire foncier. Prix susceptible d’évoluer (source tarif 2025) hors adaptation au sol.Pour votre projet, faites confiance à Cre’Actuel, créateur et constructeur de maisons individuelles. »Visuels non contractuels. Maison conforme à la règlementation RE 2020 sous réserve de l’implantation et de l’exposition du projet de construction sur le terrain. »
 
  
 
 Châteaugiron
TERRAIN ET MAISONDevenez propriétaire de cette maison confortable de 110 m2 composée d’une belle pièce de vie lumineuse de 38 m2 et de 4 chambres . Sur un terrain de 420 m2 situé sur la Commune de CHATEAUGIRON, proche du centre et des commerces, ce projet de maison contemporaine saura vous séduire. Rencontrons-nous !Permis de construire prêt à déposer. Prix clé en main tous frais inclus (Frais de notaire, bornage, viabilisation et raccordements, assurance dommage ouvrage) à partir de 359 000 € TTC FRAIS D’AGENCE INCLUS. Disponibilité sous réserve de notre partenaire foncier. Prix susceptible d’évoluer (source tarif 2025) hors adaptation au sol.Pour votre projet, faites confiance à Cre’Actuel, créateur et constructeur de maisons individuelles. »Visuels non contractuels. Maison conforme à la règlementation RE 2020 sous réserve de l’implantation et de l’exposition du projet de construction sur le terrain. »
 
  
 
 Châteaugiron
TERRAIN ET MAISONDevenez propriétaire de cette maison confortable de 90 m2 composée d’une belle pièce de vie lumineuse de 35 m2 et de 4 chambres . Sur un terrain de 420 m2 situé sur la Commune de CHATEAUGIRON, proche du centre et des commerces, ce projet de maison contemporaine saura vous séduire. Rencontrons-nous !Permis de construire prêt à déposer. Prix clé en main tous frais inclus (Frais de notaire, bornage, viabilisation et raccordements, assurance dommage ouvrage) à partir de 339 000 € TTC FRAIS D’AGENCE INCLUS. Disponibilité sous réserve de notre partenaire foncier. Prix susceptible d’évoluer (source tarif 2025) hors adaptation au sol.Pour votre projet, faites confiance à Cre’Actuel, créateur et constructeur de maisons individuelles. »Visuels non contractuels. Maison conforme à la règlementation RE 2020 sous réserve de l’implantation et de l’exposition du projet de construction sur le terrain. »
 
  
 
 Châteaugiron
TERRAIN ET MAISONDevenez propriétaire de cette maison confortable de 111 m2 composée d’une belle pièce de vie lumineuse de 45 m2 et de 4 chambres . Sur un terrain de 307 m2 situé sur la Commune de Châteaugiron, ce projet de maison contemporaine saura vous séduire. Rencontrons-nous !Permis de construire prêt à déposer. Prix clé en main tous frais inclus (Frais de notaire, bornage, viabilisation et raccordements, assurance dommage ouvrage) à partir de 303 900 € TTC FRAIS D’AGENCE INCLUS. Disponibilité sous réserve de notre partenaire foncier. Prix susceptible d’évoluer (source tarif 2025) hors adaptation au sol.Pour votre projet, faites confiance à Cre’Actuel, créateur et constructeur de maisons individuelles. »Visuels non contractuels. Maison conforme à la règlementation RE 2020 sous réserve de l’implantation et de l’exposition du projet de construction sur le terrain. »
 
  
 
 Domagné
TERRAIN ET MAISONDevenez propriétaire de cette maison confortable de 90 m2 composée d’une belle pièce de vie lumineuse de 35 m2 et de 4 chambres . Sur un terrain de 336 m2 situé sur la Commune de Domagné, proche du centre et des commerces, ce projet de maison contemporaine saura vous séduire. Rencontrons-nous !Permis de construire prêt à déposer. Prix clé en main tous frais inclus (Frais de notaire, bornage, viabilisation et raccordements, assurance dommage ouvrage) à partir de 254 900 € TTC FRAIS D’AGENCE INCLUS. Disponibilité sous réserve de notre partenaire foncier. Prix susceptible d’évoluer (source tarif 2025) hors adaptation au sol.Pour votre projet, faites confiance à Cre’Actuel, créateur et constructeur de maisons individuelles. »Visuels non contractuels. Maison conforme à la règlementation RE 2020 sous réserve de l’implantation et de l’exposition du projet de construction sur le terrain. »
 
  
 
 Châteaubourg
TERRAIN ET MAISONDevenez propriétaire de cette maison confortable de 110 m2 composée d’une belle pièce de vie lumineuse de 38 m2 et de 4 chambres . Sur un terrain de 385 m2 situé sur la Commune de CHATEAUBOURG, ce projet de maison contemporaine saura vous séduire. Rencontrons-nous !Permis de construire prêt à déposer. Prix clé en main tous frais inclus (Frais de notaire, bornage, viabilisation et raccordements, assurance dommage ouvrage) à partir de 319 000 € TTC FRAIS D’AGENCE INCLUS. Disponibilité sous réserve de notre partenaire foncier. Prix susceptible d’évoluer (source tarif 2025) hors adaptation au sol.Pour votre projet, faites confiance à Cre’Actuel, créateur et constructeur de maisons individuelles. »Visuels non contractuels. Maison conforme à la règlementation RE 2020 sous réserve de l’implantation et de l’exposition du projet de construction sur le terrain. »
L’actualité immobilière à Châteaugiron
 13/10/2022
 
 13/10/2022
 
  07/10/2022
 
 07/10/2022
 
  03/10/2022
 
 03/10/2022
 
  26/09/2022
 
 26/09/2022
 
  16/09/2022
 
 16/09/2022
 
  09/09/2022
 
 09/09/2022
 
  
 
 
 
 
 
  
  
  
  
  
  
 