 
 
 Maison neuve (110 M²) - 4 chambres - BREAL SOUS MONTFORT
Images
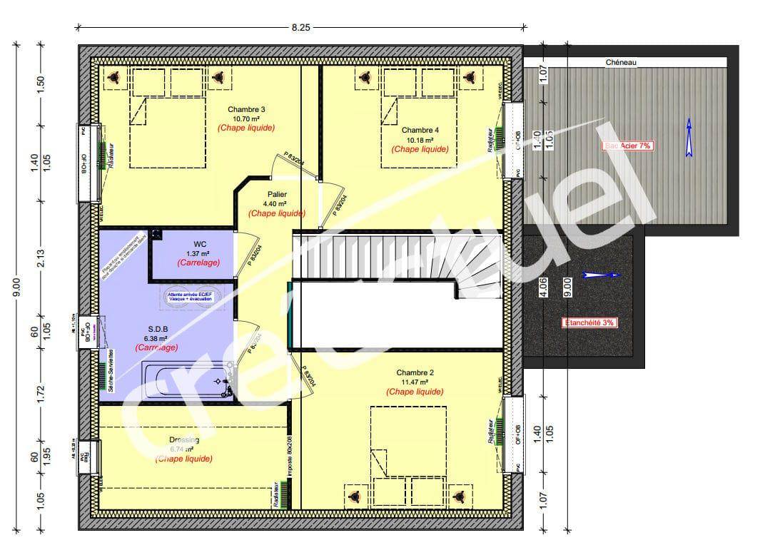
Description
Devenez propriétaire de cette maison confortable  de 110 m2 composée d'une belle pièce de vie lumineuse  de 38 m2 et de 4 chambres . Sur un terrain de 307 m2 situé sur la Commune de BREAL SOUS MONTFORT,  proche du centre et des commerces, ce projet de maison contemporaine saura vous séduire. Rencontrons-nous !
Permis de construire prêt à déposer. Prix clé en main tous frais inclus (Frais de notaire, bornage, viabilisation et raccordements, assurance dommage ouvrage) à partir de 298 550 € TTC FRAIS D'AGENCE INCLUS. Disponibilité sous réserve de notre partenaire foncier. Prix susceptible d'évoluer (source tarif 2025) hors adaptation au sol.
Pour votre projet, faites confiance à Cre'Actuel, créateur et constructeur de maisons individuelles.
"Visuels non contractuels. Maison conforme à la règlementation RE 2020 sous réserve de l'implantation et de l'exposition du projet de construction sur le terrain."
Logement susceptibles de vous intéresser
Nous vous proposons de découvrir aussi cette sélection de logements situés à moins de 10km de Bréal-sous-Montfort et qui seraient susceptibles de vous intéresser.
 
  
 
 Goven
TERRAIN ET MAISONDevenez propriétaire de cette maison confortable de 110 m2 composée d’une belle pièce de vie lumineuse de 41 m2 et de 4 chambres . Sur un terrain de 339 m2 situé sur la Commune de Goven, ce projet de maison contemporaine saura vous séduire. Rencontrons-nous !Permis de construire prêt à déposer. Prix clé en main tous frais inclus (Frais de notaire, bornage, viabilisation et raccordements, assurance dommage ouvrage) à partir de 283 200 € TTC FRAIS D’AGENCE INCLUS. Disponibilité sous réserve de notre partenaire foncier. Prix susceptible d’évoluer (source tarif 2025) hors adaptation au sol.Pour votre projet, faites confiance à Cre’Actuel, créateur et constructeur de maisons individuelles. »Visuels non contractuels. Maison conforme à la règlementation RE 2020 sous réserve de l’implantation et de l’exposition du projet de construction sur le terrain. »
 
  
 
 Bruz
TERRAIN ET MAISONDevenez propriétaire de cette maison confortable de 122 m2 composée d’une belle pièce de vie lumineuse de 50 m2 et de 4 chambres . Sur un terrain de 541 m2 situé sur la Commune de BRUZ, proche du centre et des commerces, ce projet de maison contemporaine saura vous séduire. Rencontrons-nous !Permis de construire prêt à déposer. Prix clé en main tous frais inclus (Frais de notaire, bornage, viabilisation et raccordements, assurance dommage ouvrage) à partir de 541 800 € TTC FRAIS D’AGENCE INCLUS. Disponibilité sous réserve de notre partenaire foncier. Prix susceptible d’évoluer (source tarif 2025) hors adaptation au sol.Pour votre projet, faites confiance à Cre’Actuel, créateur et constructeur de maisons individuelles. »Visuels non contractuels. Maison conforme à la règlementation RE 2020 sous réserve de l’implantation et de l’exposition du projet de construction sur le terrain. »
 
  
 
 Baulon
TERRAIN ET MAISONDevenez propriétaire de cette maison confortable de 105 m2 composée d’une belle pièce de vie lumineuse de 43 m2 et de 4 chambres . Sur un terrain de 447 m2 situé sur la Commune de BAULON, proche du centre et des commerces, ce projet de maison contemporaine saura vous séduire. Rencontrons-nous !Permis de construire prêt à déposer. Prix clé en main tous frais inclus (Frais de notaire, bornage, viabilisation et raccordements, assurance dommage ouvrage) à partir de 267 500 € TTC FRAIS D’AGENCE INCLUS. Disponibilité sous réserve de notre partenaire foncier. Prix susceptible d’évoluer (source tarif 2025) hors adaptation au sol.Pour votre projet, faites confiance à Cre’Actuel, créateur et constructeur de maisons individuelles. »Visuels non contractuels. Maison conforme à la règlementation RE 2020 sous réserve de l’implantation et de l’exposition du projet de construction sur le terrain. »
 
  
 
 Bréal-sous-Montfort
TERRAIN ET MAISONDevenez propriétaire de cette maison confortable de 110 m2 composée d’une belle pièce de vie lumineuse de 38 m2 et de 4 chambres . Sur un terrain de 307 m2 situé sur la Commune de BREAL SOUS MONTFORT, proche du centre et des commerces, ce projet de maison contemporaine saura vous séduire. Rencontrons-nous !Permis de construire prêt à déposer. Prix clé en main tous frais inclus (Frais de notaire, bornage, viabilisation et raccordements, assurance dommage ouvrage) à partir de 298 550 € TTC FRAIS D’AGENCE INCLUS. Disponibilité sous réserve de notre partenaire foncier. Prix susceptible d’évoluer (source tarif 2025) hors adaptation au sol.Pour votre projet, faites confiance à Cre’Actuel, créateur et constructeur de maisons individuelles. »Visuels non contractuels. Maison conforme à la règlementation RE 2020 sous réserve de l’implantation et de l’exposition du projet de construction sur le terrain. »
 
  
 
 Lassy
TERRAIN ET MAISONDevenez propriétaire de cette maison confortable de 110 m2 composée d’une belle pièce de vie lumineuse de 38 m2 et de 4 chambres . Sur un terrain de 500 m2 situé sur la Commune de LASSY, proche du centre et des commerces, ce projet de maison contemporaine saura vous séduire. Rencontrons-nous !Permis de construire prêt à déposer. Prix clé en main tous frais inclus (Frais de notaire, bornage, viabilisation et raccordements, assurance dommage ouvrage) à partir de 274 850 € TTC FRAIS D’AGENCE INCLUS. Disponibilité sous réserve de notre partenaire foncier. Prix susceptible d’évoluer (source tarif 2025) hors adaptation au sol.Pour votre projet, faites confiance à Cre’Actuel, créateur et constructeur de maisons individuelles. »Visuels non contractuels. Maison conforme à la règlementation RE 2020 sous réserve de l’implantation et de l’exposition du projet de construction sur le terrain. »
 
  
 
 Chavagne
TERRAIN ET MAISONDevenez propriétaire de cette maison confortable de 95 m2 composée d’une belle pièce de vie lumineuse de 40 m2 et de 3 chambres . Sur un terrain de 233 m2 situé sur la Commune de CHAVAGNE, proche du centre et des commerces, ce projet de maison contemporaine saura vous séduire. Rencontrons-nous !Permis de construire prêt à déposer. Prix clé en main tous frais inclus (Frais de notaire, bornage, viabilisation et raccordements, assurance dommage ouvrage) à partir de 239 450 € TTC FRAIS D’AGENCE INCLUS. Disponibilité sous réserve de notre partenaire foncier. Prix susceptible d’évoluer (source tarif 2025) hors adaptation au sol.Pour votre projet, faites confiance à Cre’Actuel, créateur et constructeur de maisons individuelles. »Visuels non contractuels. Maison conforme à la règlementation RE 2020 sous réserve de l’implantation et de l’exposition du projet de construction sur le terrain. »
 
  
 
 L'Hermitage
TERRAIN ET MAISONDevenez propriétaire de cette maison confortable de 111 m2 composée d’une belle pièce de vie lumineuse de 40 m2 et de 3 chambres . Sur un terrain de 255 m2 situé sur la Commune de L’HERMITAGE, proche du centre et des commerces, ce projet de maison contemporaine saura vous séduire. Rencontrons-nous !Permis de construire prêt à déposer. Prix clé en main tous frais inclus (Frais de notaire, bornage, viabilisation et raccordements, assurance dommage ouvrage) à partir de 334 700 € TTC FRAIS D’AGENCE INCLUS. Disponibilité sous réserve de notre partenaire foncier. Prix susceptible d’évoluer (source tarif 2025) hors adaptation au sol.Pour votre projet, faites confiance à Cre’Actuel, créateur et constructeur de maisons individuelles. »Visuels non contractuels. Maison conforme à la règlementation RE 2020 sous réserve de l’implantation et de l’exposition du projet de construction sur le terrain. »
 
  
 
 Cintré
TERRAIN ET MAISONMaison Neuve 150 m² – Prestations Haut de Gamme à Cintré (Rennes Métropole)Découvrez cette superbe maison neuve d’environ 150 m², construite sur un terrain de 318 m², bénéficiant de prestations modernes et encore sous garantie décennale. Agencement & Prestations : Rez-de-chaussée :oSpacieuse pièce de vie baignée de lumière avec corniche.oCuisine semi-ouverte, aménagée et équipéeoSuite parentale avec salle d’eau privativeoBuanderie pratique + WC indépendant Étage :oSeconde suite parentale avec dressing et salle d’eauoDeux grandes chambres avec placards intégrésoMezzanine, idéale pour un bureau ou coin détenteoSalle de bains avec baignoire & meuble double vasqueoWC séparé Confort & Équipements :oChauffage par pompe à chaleur avec plancher chauffant au rez-de-chaussée et à l’étage : économique et performantoGarage motorisé + deux places de stationnement privatif devant la maisonoTerrasse carrelée faisant le tour de la maisonoJardin avec pelouse synthétique Emplacement idéal à Cintré, commune dynamique de Rennes Métropole :Calme et résidentiel, à proximité immédiate des écoles, commerces et transports, avec un accès rapide à Rennes.Certaines photos sont non contractuelles et sont proposées à titre illustratif pour faciliter la projection. Exclusivité à ne pas manquer ! Contactez-nous dès maintenant pour organiser une visite au (Numéro supprimé).Cette annonce référence 301832 vous est présentée par votre agent commercial BSK Immobilier HUGO RESLOUX (EI) immatriculé au RSAC de RENNES (35000) sous le numéro 75(Numéro supprimé)22.Prix du bien : 370 000,00 €Les honoraires d’agence sont à la charge du vendeur.A propos des performances énergétiques :Date de réalisation du diagnostic énergétique : 08/06/2025Score DPE : 33 kWhEP/m²/anScore GES : 1 kgepCO2/m²/anMontant estimé des dépenses annuelles d’énergie pour un usage standard : entre 460.00 € et 680.00 € par an. Prix moyens des énergies indexés sur l’année 2025 (abonnements compris).Les informations sur les risques auxquels ce bien est exposé sont disponibles sur le site Géorisques : www.georisques.gouv.fr
L’actualité immobilière à Bréal-sous-Montfort
 13/10/2022
 
 13/10/2022
 
  07/10/2022
 
 07/10/2022
 
  03/10/2022
 
 03/10/2022
 
  26/09/2022
 
 26/09/2022
 
  16/09/2022
 
 16/09/2022
 
  09/09/2022
 
 09/09/2022
 
  
 
 
 
 
 
  
  
  
  
 