Avec IGC, votre projet prend vie en toute sérénité.
Images
Description
Proposé par notre partenaire foncier, découvrez ce joli terrain de 1000m² idéalement situé sur la commune de St Laurent d'Arce.
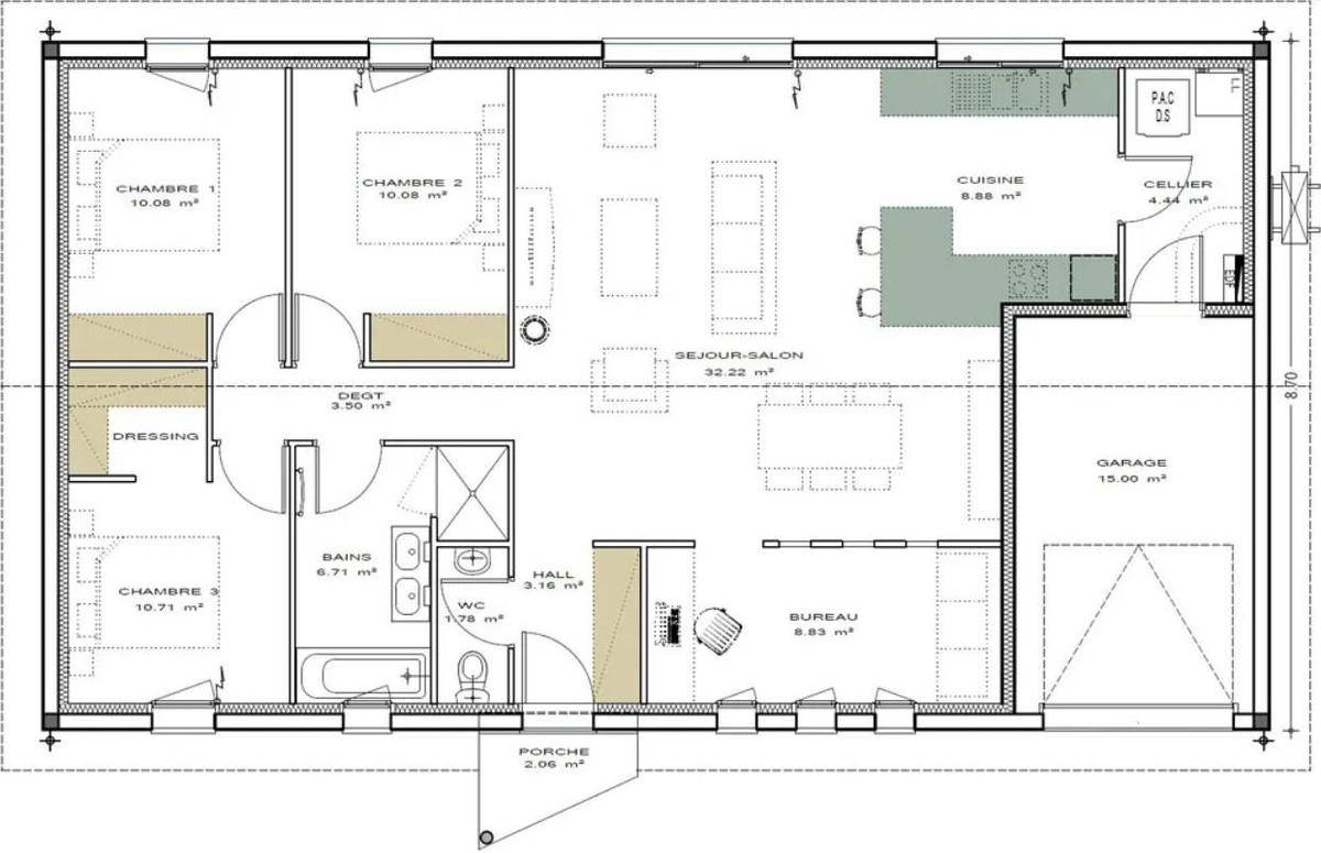
A seulement quelques minutes de Saint André de Cubzac, ce terrain est idéal pour concrétiser votre projet de construction personnalisé. Le terrain offre une jolie vue, quelques haies sont présentes pour apporter de l'intimité et un bel olivier est déjà présent ! Nous vous proposons de vous inspirer de notre modèle "Nova", une très belle maison familiale fonctionnelle et modulable aux prestations soignées. Présentée avec 3 chambres, dont une suite parentale, et un abri couvert vient compléter ce bien, appropriez vous son plan et venez jouer avec ses volumes.
Avec IGC, constructeur reconnu depuis plus de 40 ans, vous bénéficiez de toutes les garanties d'un constructeur solide et expérimenté pour construire en toute sérénité. N'attendez plus pour imaginer la maison qui vous ressemble ! Contactez Megan PERRIER ((Numéro supprimé)) pour une étude gratuite et personnalisée de votre projet.
Logement susceptibles de vous intéresser
Nous vous proposons de découvrir aussi cette sélection de logements situés à moins de 10km de Saint-Laurent-d'Arce et qui seraient susceptibles de vous intéresser.
Saint-André-de-Cubzac
TERRAIN ET MAISONEt si la modernité tenait dans 50m² ?Découvrez votre maison neuve signée IGC, pensée comme un écrin de confort et de simplicité.Une pièce de vie spacieuse et lumineuse de 27m² avec cuisine ouverte et son cellier, un espace nuit avec chambre et bureau doté de son grand espace de rangement.Tout est là, sans superflu !Matériaux actuels, volumes équilibrés, plan optimisé : cette maison coche toutes les cases du confort moderne. Personnalisable à vos gouts, elle s’adapte à toutes les étapes de vie.Avec IGC c’est plus qu’une construction : c’est une expérience sereine, un savoir faire éprouvé et l’assurance de bâtir durablement.Le plus ? Un joli terrain de 400m² à St André de Cubzac (33240) idéal pour ce projet, idéalement situé et à proximité des commodités.Pour plus de renseignements, contactez Megan au (Numéro supprimé)
Peujard
TERRAIN ET MAISONC’est à Peujard que votre projet de vie commence. Principaux axes routiers pour rejoindre St André et Bordeaux, découvrez ce beau terrain prêt à accueillir votre projet.Vous profiterez d’une belle vue, d’une belle exposition, à deux pas du centre du bourg. Cadre idéal pour accueillir votre future maison IGC. Le terrain est non viabilisé, avec les réseaux (eau, électricité, TAE) en bordure.Pensée comme un écrin de confort et de simplicité, découvrez cette jolie maison de 95m² avec sa pièce de vie spacieuse et lumineuse de 32m² avec cuisine ouverte et son cellier de 5m², un espace nuit avec 3 chambres dotées d’espace de rangement, une grande salle d’eau et un WC indépendant. Le plus ? Vous bénéficiez d’un système de chauffage-rafraichissement réversible sur pompe à chaleur dans toutes les pièces de la maison !Tout est là, sans superflu !Matériaux actuels, volumes équilibrés, plan optimisé : cette maison coche toutes les cases du confort moderne. Personnalisable, elle s’adapte à toutes les étapes de vie.Avec IGC, c’est plus qu’une construction : c’est une expérience sereine, un savoir-faire éprouvé et l’assurance de bâtir durablement.➡️ Contactez Megan ((Numéro supprimé)) dès aujourd’hui pour étudier ensemble votre projet de construction sur ce beau terrain.
Val de Virvée
TERRAIN ET MAISONMaison neuve à construire PEPINO_4CH_105_V1 Très joli parcelle d’environ 600m² à Salignac.A découvrir très rapidement. BELLE MAISON DE 4 CHAMBRES Cette maison de 4 chambres (105m² avant agrandissement) offre une conception unique : sa pièce de vie, intelligemment positionnée, vous donne la liberté de l’adapter à l’exposition idéale de votre terrain. Modifiez ou ajoutez des ouvertures pour créer l’espace baigné de lumière dont vous rêvez. Une suite parentale avec dressing et salle d’eau vient parfaire ce confort sur-mesure. • Lumineuse avec cuisine ouverte donnant sur son jardin. • Beaux volumes et distribution optimisée des pièces pour votre confort de vie. • Aménagements et équipements de haut niveau : volets roulants motorisés et connectés, système de chauffage par pompe à chaleur, domotique, carrelage grand format. ET SI VOUS FAISIEZ CONSTRUIRE AVEC MAISONS ALYSIA ?Testez notre configurateur en ligne et chiffrez instantanément votre projet personnalisé, téléchargeable. • Gratuit, rapide et sans engagement. • + de 250 modèles de maisons personnalisables. • Calculettes en ligne pour identifier votre budget et évaluer votre future mensualité. Rendez-vous sur notre site maisons-alysia(.com) pour concrétiser votre rêve. Contactez-nous au (Numéro supprimé) pour finaliser votre projet ! Coût du terrain inclus dans cette offre. Hors peintures et faïence, revêtements de sol des chambres. Hors assurance dommages-ouvrage, frais de notaire et frais d’adaptation du terrain éventuels.Cette offre est proposée en collaboration avec notre partenaire foncier selon disponibilités. Contact : au (Numéro supprimé).
La Lande-de-Fronsac
TERRAIN ET MAISONMaison neuve à construire AMANDIER_3CH_91_V1 Village à quelques minutes de St André de Cubzac, à 15 mn de Libourne.Ce terrain se situe dans un environnement calme et champêtre.Non viabilisé, TAE en bordure de voie. BELLE MAISON DE 3 CHAMBRES Sa forme extérieure en L fait de ce modèle l’allier des terrains pour vous offrir une surface habitable généreuse et des espaces de vies intérieurs et extérieurs protégés. Son intérieur saura vous séduire par ses deux espaces nuits distincts, sa belle pièce de vie lumineuse et son entrée accueillante. Les 3 chambres spacieuses, les dressings, le garage et la 2ème salle d’eau seront des atouts complémentaires au coup de cœur pour ce plan. • Lumineuse avec cuisine ouverte donnant sur son jardin. • Beaux volumes et distribution optimisée des pièces pour votre confort de vie. • Aménagements et équipements de haut niveau : volets roulants motorisés et connectés, système de chauffage par pompe à chaleur, domotique, carrelage grand format. ET SI VOUS FAISIEZ CONSTRUIRE AVEC MAISONS ALYSIA ?Testez notre configurateur en ligne et chiffrez instantanément votre projet personnalisé, téléchargeable. • Gratuit, rapide et sans engagement. • + de 250 modèles de maisons personnalisables. • Calculettes en ligne pour identifier votre budget et évaluer votre future mensualité. Rendez-vous sur notre site maisons-alysia(.com) pour concrétiser votre rêve. Contactez-nous au (Numéro supprimé) pour finaliser votre projet ! Coût du terrain inclus dans cette offre. Hors peintures et faïence, revêtements de sol des chambres. Hors assurance dommages-ouvrage, frais de notaire et frais d’adaptation du terrain éventuels.Cette offre est proposée en collaboration avec notre partenaire foncier selon disponibilités. Contact : au (Numéro supprimé).
Saint-André-de-Cubzac
TERRAIN ET MAISONMaison neuve à construire PEUPLIER_5CH_126_V4 Terrain d’environ 800m² avec un allée d’accès à viabiliser, en deuxième ligne à 5 mn de Saint André de Cubzac. Dans un secteur calme mais proche des commodités BELLE MAISON DE 5 CHAMBRES Cette maison de 5 chambres offre une superficie initiale de 126 m2 habitable avant agrandissement. Elle propose une pièce de vie de 40 m2 évolutive selon vos besoins et vos souhaits. • Lumineuse avec cuisine ouverte donnant sur son jardin. • Beaux volumes et distribution optimisée des pièces pour votre confort de vie. • Aménagements et équipements de haut niveau : volets roulants motorisés et connectés, système de chauffage par pompe à chaleur, domotique, carrelage grand format. ET SI VOUS FAISIEZ CONSTRUIRE AVEC MAISONS ALYSIA ?Testez notre configurateur en ligne et chiffrez instantanément votre projet personnalisé, téléchargeable. • Gratuit, rapide et sans engagement. • + de 250 modèles de maisons personnalisables. • Calculettes en ligne pour identifier votre budget et évaluer votre future mensualité. Rendez-vous sur notre site maisons-alysia(.com) pour concrétiser votre rêve. Contactez-nous au (Numéro supprimé) pour finaliser votre projet ! Coût du terrain inclus dans cette offre. Hors peintures et faïence, revêtements de sol des chambres. Hors assurance dommages-ouvrage, frais de notaire et frais d’adaptation du terrain éventuels.Cette offre est proposée en collaboration avec notre partenaire foncier selon disponibilités. Contact : au (Numéro supprimé).
Cézac
TERRAIN ET MAISONMaison neuve à construire AMANDIER_3CH_91_V1 Très belle parcelle à Cézac. TAE en bordure, non viabilisé. BELLE MAISON DE 3 CHAMBRES Sa forme extérieure en L fait de ce modèle l’allier des terrains pour vous offrir une surface habitable généreuse et des espaces de vies intérieurs et extérieurs protégés. Son intérieur saura vous séduire par ses deux espaces nuits distincts, sa belle pièce de vie lumineuse et son entrée accueillante. Les 3 chambres spacieuses, les dressings, le garage et la 2ème salle d’eau seront des atouts complémentaires au coup de cœur pour ce plan. • Lumineuse avec cuisine ouverte donnant sur son jardin. • Beaux volumes et distribution optimisée des pièces pour votre confort de vie. • Aménagements et équipements de haut niveau : volets roulants motorisés et connectés, système de chauffage par pompe à chaleur, domotique, carrelage grand format. ET SI VOUS FAISIEZ CONSTRUIRE AVEC MAISONS ALYSIA ?Testez notre configurateur en ligne et chiffrez instantanément votre projet personnalisé, téléchargeable. • Gratuit, rapide et sans engagement. • + de 250 modèles de maisons personnalisables. • Calculettes en ligne pour identifier votre budget et évaluer votre future mensualité. Rendez-vous sur notre site maisons-alysia(.com) pour concrétiser votre rêve. Contactez-nous au (Numéro supprimé) pour finaliser votre projet ! Coût du terrain inclus dans cette offre. Hors peintures et faïence, revêtements de sol des chambres. Hors assurance dommages-ouvrage, frais de notaire et frais d’adaptation du terrain éventuels.Cette offre est proposée en collaboration avec notre partenaire foncier selon disponibilités. Contact : au (Numéro supprimé).
Cubzac-les-Ponts
TERRAIN ET MAISONMaison neuve à construire AMANDIER_3CH_91_V1 Très jolie parcelle de 650m², non viabilisé, déjà cloturé à découvrir rapidement à Cubzac Les Ponts. BELLE MAISON DE 3 CHAMBRES Sa forme extérieure en L fait de ce modèle l’allier des terrains pour vous offrir une surface habitable généreuse et des espaces de vies intérieurs et extérieurs protégés. Son intérieur saura vous séduire par ses deux espaces nuits distincts, sa belle pièce de vie lumineuse et son entrée accueillante. Les 3 chambres spacieuses, les dressings, le garage et la 2ème salle d’eau seront des atouts complémentaires au coup de cœur pour ce plan. • Lumineuse avec cuisine ouverte donnant sur son jardin. • Beaux volumes et distribution optimisée des pièces pour votre confort de vie. • Aménagements et équipements de haut niveau : volets roulants motorisés et connectés, système de chauffage par pompe à chaleur, domotique, carrelage grand format. ET SI VOUS FAISIEZ CONSTRUIRE AVEC MAISONS ALYSIA ?Testez notre configurateur en ligne et chiffrez instantanément votre projet personnalisé, téléchargeable. • Gratuit, rapide et sans engagement. • + de 250 modèles de maisons personnalisables. • Calculettes en ligne pour identifier votre budget et évaluer votre future mensualité. Rendez-vous sur notre site maisons-alysia(.com) pour concrétiser votre rêve. Contactez-nous au (Numéro supprimé) pour finaliser votre projet ! Coût du terrain inclus dans cette offre. Hors peintures et faïence, revêtements de sol des chambres. Hors assurance dommages-ouvrage, frais de notaire et frais d’adaptation du terrain éventuels.Cette offre est proposée en collaboration avec notre partenaire foncier selon disponibilités. Contact : au (Numéro supprimé).
Gauriaguet
TERRAIN ET MAISONMaison neuve à construire PEPINO_3CH_95_V1 Pépite terrain à saisir très rapidement !Belle parcelle de 400m², dans le bourg de Gauriaguet.En TAE, non viabilisé. BELLE MAISON DE 3 CHAMBRES Cette maison de 3 chambres (95m² avant agrandissement) offre une conception unique : sa pièce de vie, intelligemment positionnée, vous donne la liberté de l’adapter à l’exposition idéale de votre terrain. Modifiez ou ajoutez des ouvertures pour créer l’espace baigné de lumière dont vous rêvez. Une suite parentale avec dressing et salle d’eau vient parfaire ce confort sur-mesure. • Lumineuse avec cuisine ouverte donnant sur son jardin. • Beaux volumes et distribution optimisée des pièces pour votre confort de vie. • Aménagements et équipements de haut niveau : volets roulants motorisés et connectés, système de chauffage par pompe à chaleur, domotique, carrelage grand format. ET SI VOUS FAISIEZ CONSTRUIRE AVEC MAISONS ALYSIA ?Testez notre configurateur en ligne et chiffrez instantanément votre projet personnalisé, téléchargeable. • Gratuit, rapide et sans engagement. • + de 250 modèles de maisons personnalisables. • Calculettes en ligne pour identifier votre budget et évaluer votre future mensualité. Rendez-vous sur notre site maisons-alysia(.com) pour concrétiser votre rêve. Contactez-nous pour finaliser votre projet ! Coût du terrain inclus dans cette offre. Hors peintures et faïence, revêtements de sol des chambres. Hors assurance dommages-ouvrage, frais de notaire et frais d’adaptation du terrain éventuels.Cette offre est proposée en collaboration avec notre partenaire foncier selon disponibilités. Contact : au (Numéro supprimé).
Marsas
TERRAIN ET MAISONMaison neuve à construire PECHER_3CH_82_V1 Parcelle de 732m² à Marsas, accès rapide pour rejoindre Bordeaux.Surface plancher possible jusqu’à 220m², permis déposable de suite. BELLE MAISON DE 3 CHAMBRES Cette maison de 3 chambres offre une superficie initiale de 82 m2 habitable avant agrandissement. Elle propose une pièce de vie de 35 m2 évolutive selon vos besoins et vos souhaits. • Lumineuse avec cuisine ouverte donnant sur son jardin. • Beaux volumes et distribution optimisée des pièces pour votre confort de vie. • Aménagements et équipements de haut niveau : volets roulants motorisés et connectés, système de chauffage par pompe à chaleur, domotique, carrelage grand format. ET SI VOUS FAISIEZ CONSTRUIRE AVEC MAISONS ALYSIA ?Testez notre configurateur en ligne et chiffrez instantanément votre projet personnalisé, téléchargeable. • Gratuit, rapide et sans engagement. • + de 250 modèles de maisons personnalisables. • Calculettes en ligne pour identifier votre budget et évaluer votre future mensualité. Rendez-vous sur notre site maisons-alysia(.com) pour concrétiser votre rêve. Contactez-nous au (Numéro supprimé) pour finaliser votre projet ! Coût du terrain inclus dans cette offre. Hors peintures et faïence, revêtements de sol des chambres. Hors assurance dommages-ouvrage, frais de notaire et frais d’adaptation du terrain éventuels.Cette offre est proposée en collaboration avec notre partenaire foncier selon disponibilités. Contact : au (Numéro supprimé).
Pugnac
TERRAIN ET MAISONMaison neuve à construire AMANDIER_3CH_91_V1 A la sortie de Pugnac, très belle parcelle de 1095m², au calme.Non viabilisé, arboré. BELLE MAISON DE 3 CHAMBRES Sa forme extérieure en L fait de ce modèle l’allier des terrains pour vous offrir une surface habitable généreuse et des espaces de vies intérieurs et extérieurs protégés. Son intérieur saura vous séduire par ses deux espaces nuits distincts, sa belle pièce de vie lumineuse et son entrée accueillante. Les 3 chambres spacieuses, les dressings, le garage et la 2ème salle d’eau seront des atouts complémentaires au coup de cœur pour ce plan. • Lumineuse avec cuisine ouverte donnant sur son jardin. • Beaux volumes et distribution optimisée des pièces pour votre confort de vie. • Aménagements et équipements de haut niveau : volets roulants motorisés et connectés, système de chauffage par pompe à chaleur, domotique, carrelage grand format. ET SI VOUS FAISIEZ CONSTRUIRE AVEC MAISONS ALYSIA ?Testez notre configurateur en ligne et chiffrez instantanément votre projet personnalisé, téléchargeable. • Gratuit, rapide et sans engagement. • + de 250 modèles de maisons personnalisables. • Calculettes en ligne pour identifier votre budget et évaluer votre future mensualité. Rendez-vous sur notre site maisons-alysia(.com) pour concrétiser votre rêve. Contactez-nous au (Numéro supprimé) pour finaliser votre projet ! Coût du terrain inclus dans cette offre. Hors peintures et faïence, revêtements de sol des chambres. Hors assurance dommages-ouvrage, frais de notaire et frais d’adaptation du terrain éventuels.Cette offre est proposée en collaboration avec notre partenaire foncier selon disponibilités. Contact : au (Numéro supprimé).
L’actualité immobilière à Saint-Laurent-d'Arce
13/10/2022
07/10/2022
03/10/2022
26/09/2022
16/09/2022
09/09/2022