Maison 110m² à Pugnac
Images
Description
Calme, nature et proximité, ce terrain a tout pour plaire !
C'est ici que votre projet de vie à Pugnac commence. Axe routier pour rejoindre Bordeaux et à 10 minutes de St André de Cubzac, découvrez ce beau terrain prêt à accueillir votre projet.
Cette charmante commune allie calme rural et proximité urbaine, avec toutes les commodités à portée de main : écoles, commerces, services et accès rapide à l'A10.
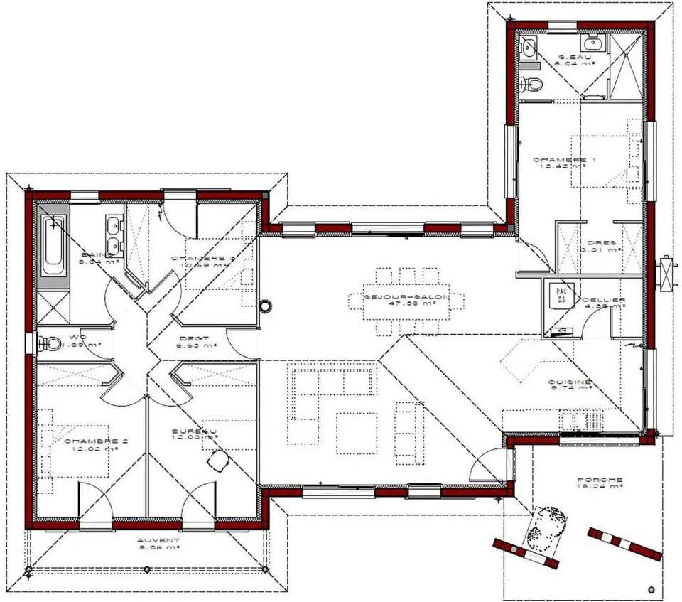
Nous vous proposons de vous inspirer de notre modèle Gaïa, une maison dans l'ère du temps et moderne. L’élégante maison Gaïa 132 se compose de 3 grandes chambres, d’un bureau et d’un vaste salon-séjour ouvert de part et d’autre sur de belles terrasses extérieures en bois idéales pour profiter de repas ensoleillés ou d’après-midi farniente. Selon l’orientation du terrain et selon vos envies, de nombreuses options sont possibles telles qu’une pergola ou des volets persiennes coulissants en bois exotique.
Le terrain vendu viabilisé est proposé dans le cadre d'un projet de construction avec notre agence IGC de St André de Cubzac et en lien avec notre partenaire foncier. Surface idéale pour une maison familiale de plain-pied moderne, à adapter selon vos envies et votre mode de vie.
Contactez Megan au (Numéro supprimé) dès maintenant pour plus d'informations et pour imaginer ensemble votre futur chez-vous, signé IGC !
Logement susceptibles de vous intéresser
Nous vous proposons de découvrir aussi cette sélection de logements situés à moins de 10km de Pugnac et qui seraient susceptibles de vous intéresser.
Berson
TERRAIN ET MAISONEt si la modernité tenait dans 50m² ?Découvrez votre maison neuve signée IGC, pensée comme un écrin de confort et de simplicité.Une pièce de vie spacieuse et lumineuse de 27m² avec cuisine ouverte et son cellier, un espace nuit avec chambre et bureau doté de son grand espace de rangement.Tout est là, sans superflu !Matériaux actuels, volumes équilibrés, plan optimisé : cette maison coche toutes les cases du confort moderne. Personnalisable à vos gouts, elle s’adapte à toutes les étapes de vie.Avec IGC c’est plus qu’une construction : c’est une expérience sereine, un savoir faire éprouvé et l’assurance de bâtir durablement.Le plus ? Un superbe terrain de 700m² à Berson (33390) idéal pour ce projet, calme absolu, idéalement situé et à proximité des commodités.Pour plus de renseignements, contactez Megan au (Numéro supprimé)
Peujard
TERRAIN ET MAISONC’est à Peujard que votre projet de vie commence. Principaux axes routiers pour rejoindre St André et Bordeaux, découvrez ce beau terrain prêt à accueillir votre projet.Vous profiterez d’une belle vue, d’une belle exposition, à deux pas du centre du bourg. Cadre idéal pour accueillir votre future maison IGC. Le terrain est non viabilisé, avec les réseaux (eau, électricité, TAE) en bordure.Pensée comme un écrin de confort et de simplicité, découvrez cette jolie maison de 95m² avec sa pièce de vie spacieuse et lumineuse de 32m² avec cuisine ouverte et son cellier de 5m², un espace nuit avec 3 chambres dotées d’espace de rangement, une grande salle d’eau et un WC indépendant. Le plus ? Vous bénéficiez d’un système de chauffage-rafraichissement réversible sur pompe à chaleur dans toutes les pièces de la maison !Tout est là, sans superflu !Matériaux actuels, volumes équilibrés, plan optimisé : cette maison coche toutes les cases du confort moderne. Personnalisable, elle s’adapte à toutes les étapes de vie.Avec IGC, c’est plus qu’une construction : c’est une expérience sereine, un savoir-faire éprouvé et l’assurance de bâtir durablement.➡️ Contactez Megan ((Numéro supprimé)) dès aujourd’hui pour étudier ensemble votre projet de construction sur ce beau terrain.
Berson
TERRAIN ET MAISONEt si la modernité tenait dans 50m² ?Découvrez votre maison neuve signée IGC, pensée comme un écrin de confort et de simplicité.Une pièce de vie spacieuse et lumineuse de 27m² avec cuisine ouverte et son cellier, un espace nuit avec chambre et bureau doté de son grand espace de rangement.Tout est là, sans superflu !Matériaux actuels, volumes équilibrés, plan optimisé : cette maison coche toutes les cases du confort moderne. Personnalisable à vos gouts, elle s’adapte à toutes les étapes de vie.Avec IGC c’est plus qu’une construction : c’est une expérience sereine, un savoir faire éprouvé et l’assurance de bâtir durablement.Le plus ? Un superbe terrain de 700m² à Berson (33390) idéal pour ce projet, calme absolu, idéalement situé et à proximité des commodités.(Estimation incluant : terrain, frais de notaire, VRD, viabilisation, maison prête-à-décorer + cuisine ou peintures)Pour plus de renseignements, contactez Megan au (Numéro supprimé)
Cézac
TERRAIN ET MAISONMaison neuve à construire AMANDIER_3CH_91_V1 Très belle parcelle à Cézac. TAE en bordure, non viabilisé. BELLE MAISON DE 3 CHAMBRES Sa forme extérieure en L fait de ce modèle l’allier des terrains pour vous offrir une surface habitable généreuse et des espaces de vies intérieurs et extérieurs protégés. Son intérieur saura vous séduire par ses deux espaces nuits distincts, sa belle pièce de vie lumineuse et son entrée accueillante. Les 3 chambres spacieuses, les dressings, le garage et la 2ème salle d’eau seront des atouts complémentaires au coup de cœur pour ce plan. • Lumineuse avec cuisine ouverte donnant sur son jardin. • Beaux volumes et distribution optimisée des pièces pour votre confort de vie. • Aménagements et équipements de haut niveau : volets roulants motorisés et connectés, système de chauffage par pompe à chaleur, domotique, carrelage grand format. ET SI VOUS FAISIEZ CONSTRUIRE AVEC MAISONS ALYSIA ?Testez notre configurateur en ligne et chiffrez instantanément votre projet personnalisé, téléchargeable. • Gratuit, rapide et sans engagement. • + de 250 modèles de maisons personnalisables. • Calculettes en ligne pour identifier votre budget et évaluer votre future mensualité. Rendez-vous sur notre site maisons-alysia(.com) pour concrétiser votre rêve. Contactez-nous au (Numéro supprimé) pour finaliser votre projet ! Coût du terrain inclus dans cette offre. Hors peintures et faïence, revêtements de sol des chambres. Hors assurance dommages-ouvrage, frais de notaire et frais d’adaptation du terrain éventuels.Cette offre est proposée en collaboration avec notre partenaire foncier selon disponibilités. Contact : au (Numéro supprimé).
Gauriaguet
TERRAIN ET MAISONMaison neuve à construire PEPINO_3CH_95_V1 Pépite terrain à saisir très rapidement !Belle parcelle de 400m², dans le bourg de Gauriaguet.En TAE, non viabilisé. BELLE MAISON DE 3 CHAMBRES Cette maison de 3 chambres (95m² avant agrandissement) offre une conception unique : sa pièce de vie, intelligemment positionnée, vous donne la liberté de l’adapter à l’exposition idéale de votre terrain. Modifiez ou ajoutez des ouvertures pour créer l’espace baigné de lumière dont vous rêvez. Une suite parentale avec dressing et salle d’eau vient parfaire ce confort sur-mesure. • Lumineuse avec cuisine ouverte donnant sur son jardin. • Beaux volumes et distribution optimisée des pièces pour votre confort de vie. • Aménagements et équipements de haut niveau : volets roulants motorisés et connectés, système de chauffage par pompe à chaleur, domotique, carrelage grand format. ET SI VOUS FAISIEZ CONSTRUIRE AVEC MAISONS ALYSIA ?Testez notre configurateur en ligne et chiffrez instantanément votre projet personnalisé, téléchargeable. • Gratuit, rapide et sans engagement. • + de 250 modèles de maisons personnalisables. • Calculettes en ligne pour identifier votre budget et évaluer votre future mensualité. Rendez-vous sur notre site maisons-alysia(.com) pour concrétiser votre rêve. Contactez-nous pour finaliser votre projet ! Coût du terrain inclus dans cette offre. Hors peintures et faïence, revêtements de sol des chambres. Hors assurance dommages-ouvrage, frais de notaire et frais d’adaptation du terrain éventuels.Cette offre est proposée en collaboration avec notre partenaire foncier selon disponibilités. Contact : au (Numéro supprimé).
Marsas
TERRAIN ET MAISONMaison neuve à construire PECHER_3CH_82_V1 Parcelle de 732m² à Marsas, accès rapide pour rejoindre Bordeaux.Surface plancher possible jusqu’à 220m², permis déposable de suite. BELLE MAISON DE 3 CHAMBRES Cette maison de 3 chambres offre une superficie initiale de 82 m2 habitable avant agrandissement. Elle propose une pièce de vie de 35 m2 évolutive selon vos besoins et vos souhaits. • Lumineuse avec cuisine ouverte donnant sur son jardin. • Beaux volumes et distribution optimisée des pièces pour votre confort de vie. • Aménagements et équipements de haut niveau : volets roulants motorisés et connectés, système de chauffage par pompe à chaleur, domotique, carrelage grand format. ET SI VOUS FAISIEZ CONSTRUIRE AVEC MAISONS ALYSIA ?Testez notre configurateur en ligne et chiffrez instantanément votre projet personnalisé, téléchargeable. • Gratuit, rapide et sans engagement. • + de 250 modèles de maisons personnalisables. • Calculettes en ligne pour identifier votre budget et évaluer votre future mensualité. Rendez-vous sur notre site maisons-alysia(.com) pour concrétiser votre rêve. Contactez-nous au (Numéro supprimé) pour finaliser votre projet ! Coût du terrain inclus dans cette offre. Hors peintures et faïence, revêtements de sol des chambres. Hors assurance dommages-ouvrage, frais de notaire et frais d’adaptation du terrain éventuels.Cette offre est proposée en collaboration avec notre partenaire foncier selon disponibilités. Contact : au (Numéro supprimé).
Saint-Christoly-de-Blaye
TERRAIN ET MAISONMaison neuve à construire MAGNOLIA_2CH_61_V1 Terrain proche du bourg de Saint Christoly de Blaye, sans être en secteur Bâtiment de France.A 20 mn de Saint André de Cubzac, 10mn de Cavignac. BELLE MAISON DE 2 CHAMBRES Cette maison de 2 chambres offre une distribution optimisée des pièces. Ce plan compact et fonctionnel a été pensé pour faciliter l’accès à la propriété avec un budget maîtrisé. • Lumineuse avec cuisine ouverte donnant sur son jardin. • Beaux volumes et distribution optimisée des pièces pour votre confort de vie. • Aménagements et équipements de haut niveau : volets roulants motorisés et connectés, système de chauffage par pompe à chaleur, domotique, carrelage grand format. ET SI VOUS FAISIEZ CONSTRUIRE AVEC MAISONS ALYSIA ?Testez notre configurateur en ligne et chiffrez instantanément votre projet personnalisé, téléchargeable. • Gratuit, rapide et sans engagement. • + de 250 modèles de maisons personnalisables. • Calculettes en ligne pour identifier votre budget et évaluer votre future mensualité. Rendez-vous sur notre site maisons-alysia(.com) pour concrétiser votre rêve. Contactez-nous au (Numéro supprimé) pour finaliser votre projet ! Coût du terrain inclus dans cette offre. Hors peintures et faïence, revêtements de sol des chambres. Hors assurance dommages-ouvrage, frais de notaire et frais d’adaptation du terrain éventuels.Cette offre est proposée en collaboration avec notre partenaire foncier selon disponibilités. Contact : au (Numéro supprimé).
Pugnac
TERRAIN ET MAISONMaison neuve à construire AMANDIER_3CH_91_V1 A la sortie de Pugnac, très belle parcelle de 1095m², au calme.Non viabilisé, arboré. BELLE MAISON DE 3 CHAMBRES Sa forme extérieure en L fait de ce modèle l’allier des terrains pour vous offrir une surface habitable généreuse et des espaces de vies intérieurs et extérieurs protégés. Son intérieur saura vous séduire par ses deux espaces nuits distincts, sa belle pièce de vie lumineuse et son entrée accueillante. Les 3 chambres spacieuses, les dressings, le garage et la 2ème salle d’eau seront des atouts complémentaires au coup de cœur pour ce plan. • Lumineuse avec cuisine ouverte donnant sur son jardin. • Beaux volumes et distribution optimisée des pièces pour votre confort de vie. • Aménagements et équipements de haut niveau : volets roulants motorisés et connectés, système de chauffage par pompe à chaleur, domotique, carrelage grand format. ET SI VOUS FAISIEZ CONSTRUIRE AVEC MAISONS ALYSIA ?Testez notre configurateur en ligne et chiffrez instantanément votre projet personnalisé, téléchargeable. • Gratuit, rapide et sans engagement. • + de 250 modèles de maisons personnalisables. • Calculettes en ligne pour identifier votre budget et évaluer votre future mensualité. Rendez-vous sur notre site maisons-alysia(.com) pour concrétiser votre rêve. Contactez-nous au (Numéro supprimé) pour finaliser votre projet ! Coût du terrain inclus dans cette offre. Hors peintures et faïence, revêtements de sol des chambres. Hors assurance dommages-ouvrage, frais de notaire et frais d’adaptation du terrain éventuels.Cette offre est proposée en collaboration avec notre partenaire foncier selon disponibilités. Contact : au (Numéro supprimé).
Prignac-et-Marcamps
TERRAIN ET MAISONC’est à Prignac et Marcamps que votre projet de vie commence. Permis de construire déposé ! Délais rapides et budget maîtrisé !Principaux axes routiers pour rejoindre St André de Cubzac, découvrez ce beau terrain prêt à accueillir votre projet.Ce terrain est proposé en exclusivité et dans le cadre d’un projet de construction avec notre agence IGC de St-André-de-Cubzac.Vous profiterez d’une belle vue, d’une belle exposition et d’un cadre serein, parfait pour accueillir votre future maison IGC. Le terrain est viabilisé, avec les réseaux (eau, électricité, TAE) en bordure.IGC, constructeur de maisons depuis 40 ans, vous accompagne dans la création sur mesure de votre maison selon vos envies, votre mode de vie et votre budget. ➡️ Contactez Megan ((Numéro supprimé)) dès aujourd’hui pour étudier ensemble votre projet de construction sur ce beau terrain.
Prignac-et-Marcamps
TERRAIN ET MAISONTerrain de 700 m2 en lotissement sur Prignac et Marcamps, proche centre, écoles et commerces et bus de ligne. A seulement 5 km de St André de Cubzac !D’autres terrains sont également disponibles dans le même lotissement, alors ne tardez pas à choisir le vôtre en premier ! Projet avec maison de 86 m2 avec : 1 pièce de vie spacieuse, cellier3 chambres, 1 SDB, 1 toilette séparée. Prestations de qualité : isolation renforcée, chauffage économique, équipements modernes conformes à la RE2020. Exemple d’enveloppe budgétaire pour la réalisation d’une maison CONSTRUCTION HORIZONTALE sur le terrain de nos partenaires fonciers. Maison prête à décorer. Pour plus d’informations ou pour organiser une visite, contacter Charlotte VIREMOUNEIX, chargée de projets chez Construction Horizontale à Blaye au (Numéro supprimé) ou au (Numéro supprimé). OFFRE COMMERCIALE EN COURS !
L’actualité immobilière à Pugnac
13/10/2022
07/10/2022
03/10/2022
26/09/2022
16/09/2022
09/09/2022