Maison moderne 3 chambres
Images
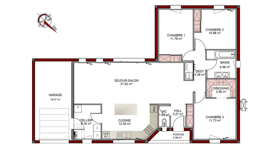
Description
A 20 min de Colomiers AIRBUS, Villa contemporaine sur beau terrain de 600m² au calme, à L'Isle Jourdain. Profitez d'un cadre préservé et intimiste sur un petit lotissement de 6 lots, pour construire votre future maison. Fonctionnelle et confortable composée de 3chambres, dont une suite parentale pour le confort de chacun. Un beau séjour lumineux avec de belles ouvertures donnant sur la terrasse couverte, qui lui confère un charme irrésistible. Faites construire votre maison avec IGC, constructeur de maisons de qualités, c'est vous garantir un projet fiable et sans surprises. Projet de construction sur mesure.
Logement susceptibles de vous intéresser
Nous vous proposons de découvrir aussi cette sélection de logements situés à moins de 10km de L'Isle-Jourdain et qui seraient susceptibles de vous intéresser.
Bonrepos-sur-Aussonnelle
TERRAIN ET MAISONDernières opportunités à BONREPOS SUR AUSSONNELLE (31), sur un terrain de 720m², plat et entièrement viabilisé Construction Horizontale, constructeur de maison individuelle, vous propose ce projet de 100m²+24m² de Garage. Belle opportunité à saisir. Proche de toutes les commodités et des grands axes. Profitez d’un secteur calme et agréable. Cette maison propose 3 chambres spacieuses avec placards. La partie jour se compose, entre autre, d’une pièce de vie traversante et lumineuse de 45m². A noté, cet espace de vie est équipé d’une PAC Aqua/air réversible pour un confort garanti en toute saison! Quel que soit le style, classique ou contemporain, le modèle CLEMENTINE est disponible avec ou sans garage. Cette version offre un très haut niveau de prestations en termes d’équipements et de personnalisations : différents matériaux et coloris pour les menuiseries extérieures, plusieurs couleurs et combinaisons pour les enduits extérieurs… Toutes nos maisons sont conformes à la RE 2020 et sont livrées avec une box domotique + gestion crépusculaire….Garanties et assurances obligatoires incluses (voir détails en agence). Prix indicatif hors peintures, cuisine et sol des chambres. Terrain sélectionné et vu pour vous sous réserve de disponibilité et au prix indiqué par notre partenaire foncier. Nous pouvons vous proposer d’autres modèles de maisons selon vous souhaits, pour tous renseignements complémentaires et étude de projet, n’hésitez pas à contacter : Mme DEPRE Céline (Numéro supprimé).OFFRE COMMERCIALE / CONSTRUCTION HORIZONTALE VOUS OFFRE JUSQU’A 10M² EN PLUS ! OFFRE VALABLE JUSQU’AU 30/11/2025 VOIR CONDITIONS EN AGENCE
Lasserre-Pradère
TERRAIN ET MAISONMAISON INDIVIDUELLE 89m² + Garage de 24m²A LASSERE PRADERE (31) sur une belle parcelle de 845m² entièrement viabilisée, dans un cadre agréable et pavillonnaire proche de toutes commodités (écoles, commerces de proximité, médecin, services de Bus…) et non loin des grands axes routiers dans une commune dynamique,Terrain plat de 845m², beau cadre de vie ! Belle Maison de plain-pied de 89m², comprenant un séjour traversant de 40m² avec cuisine ouverte, WC indépendant .Coté nuit 3 chambres toutes avec placard, une salle de bains équipée d’une baignoire et/ou douche, de nombreux rangements. Idéalement conçu pour optimiser chacun des espaces, les chambres disposent toutes de grands rangements. Maison basse consommation (RE 2020) à haute isolation thermo acoustique, avec de beaux espaces de vie, une box « maison connecté » avec gestionnaire d’énergie, chauffage par pompe à chaleur AIR/AIR… Ce bien idéalement situé dans un secteur pavillonnaire, bien exposé et proche de toutes commodités (écoles, commerces) et des grands axes routiers ! OFFRE COMMERCIALE / CONSTRUCTION HORIZONTALE VOUS OFFRE JUSQU’A 10M² EN PLUS ! OFFRE VALABLE JUSQU’AU 30/11/2025 VOIR CONDITIONS EN AGENCENous avons d’autres modèles de maisons à vous proposer alors n’hésitez pas à prendre contact avec Mme DEPRE Céline pour toutes informations complémentaires et étude de projet ! Garanties et assurances obligatoires incluses (voir détails en agence). Prix indicatif hors peintures, hors options et frais annexes. Terrain sélectionné et vu pour vous sous réserve de disponibilité et au prix indiqué par notre partenaire foncier. N’hésitez pas à me contacter au (Numéro supprimé).
Ségoufielle
MAISONSituée dans la charmante commune de Ségoufielle, Nichée au centre du village, cette belle ferme bénéficie d’un emplacement idéal, proche de toutes les commodités tout en préservant le charme bucolique de la campagne environnante. Caractéristiques Principales : Localisation : Ségoufielle, village pittoresque réputé pour sa tranquillité et son ambiance conviviale. Superficie : Potentiel à rénover: – 300 m² -Parcelle 586 m² Potentiel : Bien que nécessitant une rénovation complète, cette propriété possède un potentiel remarquable pour être transformée en une résidence principale. Points Forts : Emplacement central au cœur du village. Possibilité de personnaliser et de transformer l’espace selon vos besoins. charme de l’ancien A visiter sans tarder !!
L'Isle-Jourdain
TERRAIN ET MAISONA 20 min de Colomiers AIRBUS, Villa contemporaine sur beau terrain de 600m² au calme, à L’Isle Jourdain. Profitez d’un cadre préservé et intimiste sur un petit lotissement de 6 lots, pour construire votre future maison. Fonctionnelle et confortable composée de 3chambres, dont une suite parentale pour le confort de chacun. Un beau séjour lumineux avec de belles ouvertures donnant sur la terrasse couverte, qui lui confère un charme irrésistible. Faites construire votre maison avec IGC, constructeur de maisons de qualités, c’est vous garantir un projet fiable et sans surprises. Projet de construction sur mesure.
Ségoufielle
TERRAIN ET MAISONA 20 min des Pôles AIRBUS et à 5min de L’isle Jourdain, à SEGOUFIELLE ! Superbe maison RE2020 de 89 m² avec garage, sur un terrain de 308 m². Idéalement exposée, dans un environnement pavillonnaire de qualité. Pièce de vie agréable et fonctionnelle, nombreux rangements, 3 chambres ! Idéal pour un premier achat – Eligible au PTZ (Prêt à 0%)
L'Isle-Jourdain
TERRAIN ET MAISONUn projet de construction ? A 20 min d’AIRBUS Colomiers, IGC Construction vous offre l’opportunité de faire construire votre future maison sur-mesure de 104 m² à L’Isle-Jourdain ! Avec son architecture moderne et élégante, cette maison est conçue de manière ingénieuse et fonctionnelle. Les plus ? Une suite parentale, une grande pièce de vie lumineuse, un environnement calme et un garage. TAXE ET FRAIS DE NOTAIRES REDUITS !! Profitez en…Elle est entièrement personnalisable en fonction de vos envies et de votre budget. Nous proposons des prestations de qualité et des garanties et assurances du Contrat de Construction. Le savez-vous ? A l’Isle Jourdain, bénéficiez d’un PTZ zone B1 et augmenter votre enveloppe de financement sans augmenter vos mensualités –
L'Isle-Jourdain
MAISONA 15 minutes de L’Isle Jourdain au calme de la campagne, tranquillité et paix d’un environnement silencieux. Terrain Vue Pyrénées, Viabilisé de 2337 m2 faisant parti d’un lotissement de 3 grands lots. Il vous reste à prévoir l’assainissement individuel. Très beau projet de vie Honoraires de 7.27 % TTC inclus à la charge de l’acquéreur (55 000 hors honoraires)Votre agent commercial 3G IMMO sur place EI – Isabelle DE HULSTER inscrite au RSAC d’AUCH n° 801 930 322 Selon l’article L.561.5 du Code Monétaire et Financier, pour l’organisation de la visite, la présentation d’une pièce d’identité vous sera demandée.Les informations sur les risques auxquels ce bien est exposé sont disponibles sur le site Géorisques : www.georisques.gouv.frLes informations sur les risques auxquels ce bien est exposé sont disponibles sur le site Géorisques : www.georisques.gouv.fr
L'Isle-Jourdain
TERRAIN ET MAISONL’Isle-Jourdain (32) Dans un cadre agréable et proche de toutes commodités (écoles, commerces de proximité, médecin, services de bus…) et des grands axes routiers dans une commune dynamique.Le PRET A TAUX ZERO FAIT SON RETOUR, vous permettant de réaliser votre futur projet de construction en augmentant votre budget ! MAISON INDIVIDUELLE A CONSTRUIRE 100m². CONSTRUCTION HORIZONTALE vous propose son joli modèle CLEMENTINE.Belle Maison de plain-pied de 100 m², comprenant un séjour traversant de 50 m² avec cuisine ouverte, un cellier, WC indépendant.Coté nuit 3 chambres avec placards, une salle de bain équipée d’une baignoire et/ou d’une douche.Maison basse consommation (RE2020) à haute isolation thermo acoustique, avec de beaux espaces de vie, une box domotique avec gestionnaire d’énergie, chauffage par pompe à chaleur AIR/AIR… Construction Horizontale offre exceptionnellement des m² supplémentaires afin d’agrandir votre projet SANS toucher à votre budget ! PRIX INDICATIF d’une maison CONSTRUCTION HORIZONTALE hors frais annexes. Terrain proposé par notre partenaire foncier (sous réserve de disponibilité par notre partenaire) Prenez contact avec Clément SENECOT pour toutes informations complémentaires et étude de projet !Téléphone (Numéro supprimé) / (Numéro supprimé)
Sainte-Livrade
TERRAIN ET MAISONBénéficiez du retour du Prêt à Taux Zéro, cumulable avec le prêt Action Logement et augmentez votre budget afin de vous lancer dans votre projet de construction ! Sur ce beau terrain de 365m² situé à Sainte-Livrade, nous vous proposons le modèle GOJI 90m² avec son garage intégré. Ce modèle fonctionnel, comprend un coin jour de plus de 50m² avec sa cuisine ouverte, d’un coin nuit qui dispose de trois chambres cosy et d’un WC séparé, ainsi que d’une salle de bain équipée selon vos souhaits. CONSTRUCTION HORIZONTALE vous propose aussi différentes options de personnalisation, pour adapter cette maison à vos envies, vos besoins sans oublier votre budget. (Voir détail en agence)Respectant les normes RE2020, cette maison vous garantit des performances énergétiques optimales et un confort de vie quotidien.Toutes nos maisons sont équipées d’une box domotique + gestion crépusculaire. EN CE MOMENT, construction horizontale offre la possibilité d’agrandir votre futur chez vous sans toucher à votre budget ! Prix indicatif pour la réalisation d’une maison + terrain chez Construction Horizontale avec nos partenaires fonciers. HORS FRAIS ANNEXES (Voir détail en agence)Pour toutes questions n’hésitez pas à contacter Clément SENECOT sans tarder ! Téléphone : (Numéro supprimé) / (Numéro supprimé) »
Sainte-Livrade
TERRAIN ET MAISONBeau terrain situé à Sainte-Livrade, à 5 minutes de L’Isle Jourdain et 15 minutes de Léguevin, profitez d’une vue splendide sur les Pyrénées. Avec le retour du Prêt à Taux Zéro, cumulable avec le prêt Action Logement augmentez votre enveloppe afin de vous lancer dans le projet de vos rêves ! Sur ce lot unique, notre modèle de maison CEDRAT 100m² est idéal, son coin jour propose une grande pièce de vie avec sa cuisine ouverte, ainsi que de son coin nuit disposant de 4 chambres confortables et spacieuses, un WC séparé et une salle de bain qui a été parfaitement pensée pour un confort optimal. Nous vous proposons aussi différentes options de personnalisation, pour adapter cette maison à vos envies et à vos besoins qui seront à voir ensemble en agence. Maison aux normes RE2020, ce projet vous est livré prêt à décorer ! EN CE MOMENT, construction horizontale vous offre des m² supplémentaires. (voir détails en agence)Prix indicatif pour la réalisation d’une maison + terrain chez Construction Horizontale HORS FRAIS ANNEXES (Voir détail en agence)Pour toutes questions et échanger sur votre futur projet n’hésitez pas à contacter Clément SENECOT sans tarder ! Téléphone : (Numéro supprimé) / (Numéro supprimé)
L’actualité immobilière à L'Isle-Jourdain
13/10/2022
07/10/2022
03/10/2022
26/09/2022
16/09/2022
09/09/2022