Projet de construction avec terrain à vendre
Images
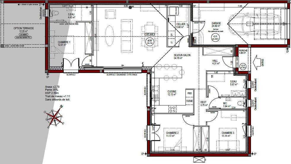
Description
Situé sur la commune de SAINTE-SOULLE, hors lotissement, nous vous présentons un projet de construction sur un terrain à viabiliser. Cette parcelle d'environ 430 m2 bénéficie d’une exposition Sud et dispose d'une vue dégagée.
IGC construction vous propose une maison élégante de 107 m2 qui s'organise autour d'une grande pièce de vie de 47 m2 avec sa cuisine semi-ouverte. Avec d'une part, 2 chambres et une salle d'eau et d'autre part, une suite parentale comprenant chambre et salle d'eau. Elle comporte également un garage intégré de 25 m2 ainsi qu'un porche entrant.
Avec IGC, faites le choix de la sérénité et de la sécurité pour mener à bien votre projet de construction :- 45 ans d’expérience,- Prix ferme et définitif pendant 12 mois,- Excellent taux de Dommages-d’Ouvrages,- Cotation Banque de France « Excellent ». Prix du terrain seul : 148 000 €. (Hors frais de notaire).
Contact : Ugo DA SILVA (Numéro supprimé) - Chargé de projet IGC - Pour plus d'informations(Prix assurances comprises. Estimation des frais de viabilisation, accès, raccordements et évacuations des terres incluses. Frais de notaire, peintures et taxes non compris. Terrain sélectionné sous réserve de disponibilité auprès de notre partenaire foncier. Conditions et visuels non contractuels).
Logement susceptibles de vous intéresser
Nous vous proposons de découvrir aussi cette sélection de logements situés à moins de 10km de Sainte-Soulle et qui seraient susceptibles de vous intéresser.
La Jarrie
TERRAIN ET MAISONMaison neuve à construire PALMIER_2CH_68_V1 BELLE MAISON DE 2 CHAMBRES Cette maison de 2 chambres offre une superficie initiale de 68 m2 habitable avant agrandissement. Elle propose une pièce de vie de 31 m2 évolutive selon vos besoins et vos souhaits. • Lumineuse avec cuisine ouverte donnant sur son jardin. • Beaux volumes et distribution optimisée des pièces pour votre confort de vie. • Aménagements et équipements de haut niveau : volets roulants motorisés et connectés, système de chauffage par pompe à chaleur, domotique, carrelage grand format. ET SI VOUS FAISIEZ CONSTRUIRE AVEC MAISONS ALYSIA ?Testez notre configurateur en ligne et chiffrez instantanément votre projet personnalisé, téléchargeable. • Gratuit, rapide et sans engagement. • + de 250 modèles de maisons personnalisables. • Calculettes en ligne pour identifier votre budget et évaluer votre future mensualité. Rendez-vous sur notre site maisons-alysia(.com) pour concrétiser votre rêve. Contactez-nous au (Numéro supprimé) pour finaliser votre projet ! Coût du terrain inclus dans cette offre. Hors peintures et faïence, revêtements de sol des chambres. Hors assurance dommages-ouvrage, frais de notaire et frais d’adaptation du terrain éventuels.Cette offre est proposée en collaboration avec notre partenaire foncier selon disponibilités. Contact : au (Numéro supprimé).
Périgny
TERRAIN ET MAISONMaison neuve à construire FRENE_4CH_111_V1 BELLE MAISON DE 4 CHAMBRES Cette maison de 4 chambres offre un aspect extérieur équilibré et harmonieux, une façade réduite et une surface habitable initiale généreuse de 111 m². Outre, son agréable pièce de vie de 42m², ce plan propose de spacieuses chambres, dont une suite parentale au rez-de-chaussée avec sa propre salle d’eau, une entrée séparée pratique et utile grâce à ses espaces bureau et placard… un plan de référence pour répondre à vos critères. • Lumineuse avec cuisine ouverte donnant sur son jardin. • Beaux volumes et distribution optimisée des pièces pour votre confort de vie. • Aménagements et équipements de haut niveau : volets roulants motorisés et connectés, système de chauffage par pompe à chaleur, domotique, carrelage grand format. ET SI VOUS FAISIEZ CONSTRUIRE AVEC MAISONS ALYSIA ?Testez notre configurateur en ligne et chiffrez instantanément votre projet personnalisé, téléchargeable. • Gratuit, rapide et sans engagement. • + de 250 modèles de maisons personnalisables. • Calculettes en ligne pour identifier votre budget et évaluer votre future mensualité. Rendez-vous sur notre site maisons-alysia(.com) pour concrétiser votre rêve. Contactez-nous au (Numéro supprimé) pour finaliser votre projet ! Coût du terrain inclus dans cette offre. Hors peintures et faïence, revêtements de sol des chambres. Hors assurance dommages-ouvrage, frais de notaire et frais d’adaptation du terrain éventuels.Cette offre est proposée en collaboration avec notre partenaire foncier selon disponibilités. Contact : au (Numéro supprimé).
Sainte-Soulle
TERRAIN ET MAISONMaison neuve à construire FRENE_4CH_111_V1 BELLE MAISON DE 4 CHAMBRES Cette maison de 4 chambres offre un aspect extérieur équilibré et harmonieux, une façade réduite et une surface habitable initiale généreuse de 111 m². Outre, son agréable pièce de vie de 42m², ce plan propose de spacieuses chambres, dont une suite parentale au rez-de-chaussée avec sa propre salle d’eau, une entrée séparée pratique et utile grâce à ses espaces bureau et placard… un plan de référence pour répondre à vos critères. • Lumineuse avec cuisine ouverte donnant sur son jardin. • Beaux volumes et distribution optimisée des pièces pour votre confort de vie. • Aménagements et équipements de haut niveau : volets roulants motorisés et connectés, système de chauffage par pompe à chaleur, domotique, carrelage grand format. ET SI VOUS FAISIEZ CONSTRUIRE AVEC MAISONS ALYSIA ?Testez notre configurateur en ligne et chiffrez instantanément votre projet personnalisé, téléchargeable. • Gratuit, rapide et sans engagement. • + de 250 modèles de maisons personnalisables. • Calculettes en ligne pour identifier votre budget et évaluer votre future mensualité. Rendez-vous sur notre site maisons-alysia(.com) pour concrétiser votre rêve. Contactez-nous au (Numéro supprimé) pour finaliser votre projet ! Coût du terrain inclus dans cette offre. Hors peintures et faïence, revêtements de sol des chambres. Hors assurance dommages-ouvrage, frais de notaire et frais d’adaptation du terrain éventuels.Cette offre est proposée en collaboration avec notre partenaire foncier selon disponibilités. Contact : au (Numéro supprimé).
Puilboreau
TERRAIN ET MAISONMaison neuve à construire FRENE_4CH_111_V1 BELLE MAISON DE 4 CHAMBRES Cette maison de 4 chambres offre un aspect extérieur équilibré et harmonieux, une façade réduite et une surface habitable initiale généreuse de 111 m². Outre, son agréable pièce de vie de 42m², ce plan propose de spacieuses chambres, dont une suite parentale au rez-de-chaussée avec sa propre salle d’eau, une entrée séparée pratique et utile grâce à ses espaces bureau et placard… un plan de référence pour répondre à vos critères. • Lumineuse avec cuisine ouverte donnant sur son jardin. • Beaux volumes et distribution optimisée des pièces pour votre confort de vie. • Aménagements et équipements de haut niveau : volets roulants motorisés et connectés, système de chauffage par pompe à chaleur, domotique, carrelage grand format. ET SI VOUS FAISIEZ CONSTRUIRE AVEC MAISONS ALYSIA ?Testez notre configurateur en ligne et chiffrez instantanément votre projet personnalisé, téléchargeable. • Gratuit, rapide et sans engagement. • + de 250 modèles de maisons personnalisables. • Calculettes en ligne pour identifier votre budget et évaluer votre future mensualité. Rendez-vous sur notre site maisons-alysia(.com) pour concrétiser votre rêve. Contactez-nous au (Numéro supprimé) pour finaliser votre projet ! Coût du terrain inclus dans cette offre. Hors peintures et faïence, revêtements de sol des chambres. Hors assurance dommages-ouvrage, frais de notaire et frais d’adaptation du terrain éventuels.Cette offre est proposée en collaboration avec notre partenaire foncier selon disponibilités. Contact : au (Numéro supprimé).
Saint-Médard-d'Aunis
TERRAIN ET MAISONMaison neuve à construire PALMIER_2CH_68_V1 BELLE MAISON DE 2 CHAMBRES Cette maison de 2 chambres offre une superficie initiale de 68 m2 habitable avant agrandissement. Elle propose une pièce de vie de 31 m2 évolutive selon vos besoins et vos souhaits. • Lumineuse avec cuisine ouverte donnant sur son jardin. • Beaux volumes et distribution optimisée des pièces pour votre confort de vie. • Aménagements et équipements de haut niveau : volets roulants motorisés et connectés, système de chauffage par pompe à chaleur, domotique, carrelage grand format. ET SI VOUS FAISIEZ CONSTRUIRE AVEC MAISONS ALYSIA ?Testez notre configurateur en ligne et chiffrez instantanément votre projet personnalisé, téléchargeable. • Gratuit, rapide et sans engagement. • + de 250 modèles de maisons personnalisables. • Calculettes en ligne pour identifier votre budget et évaluer votre future mensualité. Rendez-vous sur notre site maisons-alysia(.com) pour concrétiser votre rêve. Contactez-nous au (Numéro supprimé) pour finaliser votre projet ! Coût du terrain inclus dans cette offre. Hors peintures et faïence, revêtements de sol des chambres. Hors assurance dommages-ouvrage, frais de notaire et frais d’adaptation du terrain éventuels.Cette offre est proposée en collaboration avec notre partenaire foncier selon disponibilités. Contact : au (Numéro supprimé).
Dompierre-sur-Mer
TERRAIN ET MAISONMaison neuve à construire FRENE_4CH_111_V1 BELLE MAISON DE 4 CHAMBRES Cette maison de 4 chambres offre un aspect extérieur équilibré et harmonieux, une façade réduite et une surface habitable initiale généreuse de 111 m². Outre, son agréable pièce de vie de 42m², ce plan propose de spacieuses chambres, dont une suite parentale au rez-de-chaussée avec sa propre salle d’eau, une entrée séparée pratique et utile grâce à ses espaces bureau et placard… un plan de référence pour répondre à vos critères. • Lumineuse avec cuisine ouverte donnant sur son jardin. • Beaux volumes et distribution optimisée des pièces pour votre confort de vie. • Aménagements et équipements de haut niveau : volets roulants motorisés et connectés, système de chauffage par pompe à chaleur, domotique, carrelage grand format. ET SI VOUS FAISIEZ CONSTRUIRE AVEC MAISONS ALYSIA ?Testez notre configurateur en ligne et chiffrez instantanément votre projet personnalisé, téléchargeable. • Gratuit, rapide et sans engagement. • + de 250 modèles de maisons personnalisables. • Calculettes en ligne pour identifier votre budget et évaluer votre future mensualité. Rendez-vous sur notre site maisons-alysia(.com) pour concrétiser votre rêve. Contactez-nous au (Numéro supprimé) pour finaliser votre projet ! Coût du terrain inclus dans cette offre. Hors peintures et faïence, revêtements de sol des chambres. Hors assurance dommages-ouvrage, frais de notaire et frais d’adaptation du terrain éventuels.Cette offre est proposée en collaboration avec notre partenaire foncier selon disponibilités. Contact : au (Numéro supprimé).
La Jarne
TERRAIN ET MAISONMaison neuve à construire FRENE_4CH_111_V1 BELLE MAISON DE 4 CHAMBRES Cette maison de 4 chambres offre un aspect extérieur équilibré et harmonieux, une façade réduite et une surface habitable initiale généreuse de 111 m². Outre, son agréable pièce de vie de 42m², ce plan propose de spacieuses chambres, dont une suite parentale au rez-de-chaussée avec sa propre salle d’eau, une entrée séparée pratique et utile grâce à ses espaces bureau et placard… un plan de référence pour répondre à vos critères. • Lumineuse avec cuisine ouverte donnant sur son jardin. • Beaux volumes et distribution optimisée des pièces pour votre confort de vie. • Aménagements et équipements de haut niveau : volets roulants motorisés et connectés, système de chauffage par pompe à chaleur, domotique, carrelage grand format. ET SI VOUS FAISIEZ CONSTRUIRE AVEC MAISONS ALYSIA ?Testez notre configurateur en ligne et chiffrez instantanément votre projet personnalisé, téléchargeable. • Gratuit, rapide et sans engagement. • + de 250 modèles de maisons personnalisables. • Calculettes en ligne pour identifier votre budget et évaluer votre future mensualité. Rendez-vous sur notre site maisons-alysia(.com) pour concrétiser votre rêve. Contactez-nous au (Numéro supprimé) pour finaliser votre projet ! Coût du terrain inclus dans cette offre. Hors peintures et faïence, revêtements de sol des chambres. Hors assurance dommages-ouvrage, frais de notaire et frais d’adaptation du terrain éventuels.Cette offre est proposée en collaboration avec notre partenaire foncier selon disponibilités. Contact : au (Numéro supprimé).
Vérines
TERRAIN ET MAISONMaison neuve à construire PALMIER_2CH_68_V1 BELLE MAISON DE 2 CHAMBRES Cette maison de 2 chambres offre une superficie initiale de 68 m2 habitable avant agrandissement. Elle propose une pièce de vie de 31 m2 évolutive selon vos besoins et vos souhaits. • Lumineuse avec cuisine ouverte donnant sur son jardin. • Beaux volumes et distribution optimisée des pièces pour votre confort de vie. • Aménagements et équipements de haut niveau : volets roulants motorisés et connectés, système de chauffage par pompe à chaleur, domotique, carrelage grand format. ET SI VOUS FAISIEZ CONSTRUIRE AVEC MAISONS ALYSIA ?Testez notre configurateur en ligne et chiffrez instantanément votre projet personnalisé, téléchargeable. • Gratuit, rapide et sans engagement. • + de 250 modèles de maisons personnalisables. • Calculettes en ligne pour identifier votre budget et évaluer votre future mensualité. Rendez-vous sur notre site maisons-alysia(.com) pour concrétiser votre rêve. Contactez-nous au (Numéro supprimé) pour finaliser votre projet ! Coût du terrain inclus dans cette offre. Hors peintures et faïence, revêtements de sol des chambres. Hors assurance dommages-ouvrage, frais de notaire et frais d’adaptation du terrain éventuels.Cette offre est proposée en collaboration avec notre partenaire foncier (17) Nexity selon disponibilités. Contact : au (Numéro supprimé).
Villedoux
TERRAIN ET MAISONMaison neuve à construire IRIS_2CH_69_V2 Cette maison de 2 chambres, optimisée sur 69 m², combine confort et praticité pour un accès à la propriété facile, tout en maîtrisant votre budget. Chaque pièce a été pensée pour votre bien-être et celui de votre famille.ET SI VOUS FAISIEZ CONSTRUIRE AVEC MAISONS ALYSIA ?Testez notre configurateur en ligne et personnalisez votre maison en moins de 2 minutes :Obtenez un projet chiffré et personnalisé téléchargeable immédiatement.C’est gratuit, rapide et sans engagement.Choisissez parmi plus de 250 modèles de maisons personnalisables. Le coût du terrain est inclus dans cette offre !(Hors peintures, faïence, revêtements de sol des chambres, assurance dommages-ouvrage, frais de notaire et éventuels frais d’adaptation du terrain.) Rendez-vous dès maintenant sur maisons-alysia.com pour concrétiser votre rêve ! Ou contactez-nous au (Numéro supprimé) pour finaliser votre projet avec nos experts.Agence Alysia2 rue Becquerel – ZAC de Corne Neuve – 17139 Dompierre-sur-Mer Contact : au (Numéro supprimé).
Andilly
TERRAIN ET MAISONMaison neuve à construire AZALEE_2CH_60_V1 Cette maison de 2 chambres, optimisée sur 60 m², combine confort et praticité pour un accès à la propriété facile, tout en maîtrisant votre budget. Chaque pièce a été pensée pour votre bien-être et celui de votre famille.ET SI VOUS FAISIEZ CONSTRUIRE AVEC MAISONS ALYSIA ?Testez notre configurateur en ligne et personnalisez votre maison en moins de 2 minutes :Obtenez un projet chiffré et personnalisé téléchargeable immédiatement.C’est gratuit, rapide et sans engagement.Choisissez parmi plus de 250 modèles de maisons personnalisables. Le coût du terrain est inclus dans cette offre !(Hors peintures, faïence, revêtements de sol des chambres, assurance dommages-ouvrage, frais de notaire et éventuels frais d’adaptation du terrain.) Rendez-vous dès maintenant sur maisons-alysia.com pour concrétiser votre rêve ! Ou contactez-nous au (Numéro supprimé) pour finaliser votre projet avec nos experts.Agence Alysia2 rue Becquerel – ZAC de Corne Neuve – 17139 Dompierre-sur-Mer Contact : au (Numéro supprimé).
L’actualité immobilière à Sainte-Soulle
13/10/2022
07/10/2022
03/10/2022
26/09/2022
16/09/2022
09/09/2022