Projet de construction avec terrain à La Rochelle
Images
Description
LA ROCHELLE, dans le quartier de La Pallice, nous vous présentons un projet de construction sur un terrain à viabilisé. Cette parcelle arborée d'environ 330 m2 est en second rang et partiellement close de murs.
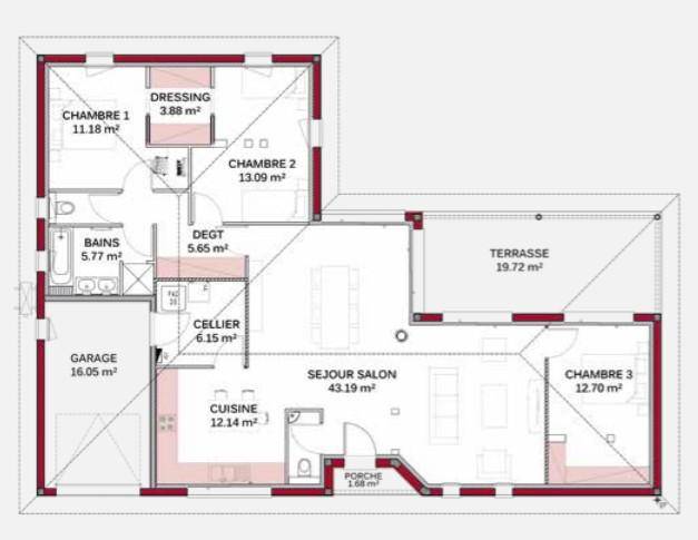
IGC construction vous propose une maison familiale de 112 m2 comprenant 3 chambres, une pièce de vie d'environ 55 m2 n avec une terrasse couverte, un dressing, une pièce d’eau et un WC séparé. Cette construction dispose également d'un cellier attenant au garage et à la cuisine.
Avec IGC, faites le choix de la sérénité et de la sécurité pour mener à bien votre projet de construction :- 45 ans d’expérience,- Prix ferme et définitif pendant 12 mois,- Excellent taux de Dommages-d’Ouvrages,- Cotation Banque de France « Excellent ». Prix du terrain seul : 191 000 €. (Hors frais de notaire).
Contact : Ugo DA SILVA (Numéro supprimé) - Chargé de projet IGC - Pour plus d'informations(Prix assurances comprises. Estimation des frais de viabilisation, accès, raccordements et évacuations des terres incluses. Hors frais de notaire. Peintures et taxes non comprises. Terrain sélectionné sous réserve de disponibilité auprès de notre partenaire foncier. Conditions et visuels non contractuels).
Logement susceptibles de vous intéresser
Nous vous proposons de découvrir aussi cette sélection de logements situés à moins de 10km de La Rochelle et qui seraient susceptibles de vous intéresser.
Lagord
TERRAIN ET MAISONMaison neuve à construire FRENE_4CH_111_V1 BELLE MAISON DE 4 CHAMBRES Cette maison de 4 chambres offre un aspect extérieur équilibré et harmonieux, une façade réduite et une surface habitable initiale généreuse de 111 m². Outre, son agréable pièce de vie de 42m², ce plan propose de spacieuses chambres, dont une suite parentale au rez-de-chaussée avec sa propre salle d’eau, une entrée séparée pratique et utile grâce à ses espaces bureau et placard… un plan de référence pour répondre à vos critères. • Lumineuse avec cuisine ouverte donnant sur son jardin. • Beaux volumes et distribution optimisée des pièces pour votre confort de vie. • Aménagements et équipements de haut niveau : volets roulants motorisés et connectés, système de chauffage par pompe à chaleur, domotique, carrelage grand format. ET SI VOUS FAISIEZ CONSTRUIRE AVEC MAISONS ALYSIA ?Testez notre configurateur en ligne et chiffrez instantanément votre projet personnalisé, téléchargeable. • Gratuit, rapide et sans engagement. • + de 250 modèles de maisons personnalisables. • Calculettes en ligne pour identifier votre budget et évaluer votre future mensualité. Rendez-vous sur notre site maisons-alysia(.com) pour concrétiser votre rêve. Contactez-nous au (Numéro supprimé) pour finaliser votre projet ! Coût du terrain inclus dans cette offre. Hors peintures et faïence, revêtements de sol des chambres. Hors assurance dommages-ouvrage, frais de notaire et frais d’adaptation du terrain éventuels.Cette offre est proposée en collaboration avec notre partenaire foncier selon disponibilités. Contact : au (Numéro supprimé).
Saint-Rogatien
TERRAIN ET MAISONMaison neuve à construire FRENE_4CH_111_V1 BELLE MAISON DE 4 CHAMBRES Cette maison de 4 chambres offre un aspect extérieur équilibré et harmonieux, une façade réduite et une surface habitable initiale généreuse de 111 m². Outre, son agréable pièce de vie de 42m², ce plan propose de spacieuses chambres, dont une suite parentale au rez-de-chaussée avec sa propre salle d’eau, une entrée séparée pratique et utile grâce à ses espaces bureau et placard… un plan de référence pour répondre à vos critères. • Lumineuse avec cuisine ouverte donnant sur son jardin. • Beaux volumes et distribution optimisée des pièces pour votre confort de vie. • Aménagements et équipements de haut niveau : volets roulants motorisés et connectés, système de chauffage par pompe à chaleur, domotique, carrelage grand format. ET SI VOUS FAISIEZ CONSTRUIRE AVEC MAISONS ALYSIA ?Testez notre configurateur en ligne et chiffrez instantanément votre projet personnalisé, téléchargeable. • Gratuit, rapide et sans engagement. • + de 250 modèles de maisons personnalisables. • Calculettes en ligne pour identifier votre budget et évaluer votre future mensualité. Rendez-vous sur notre site maisons-alysia(.com) pour concrétiser votre rêve. Contactez-nous au (Numéro supprimé) pour finaliser votre projet ! Coût du terrain inclus dans cette offre. Hors peintures et faïence, revêtements de sol des chambres. Hors assurance dommages-ouvrage, frais de notaire et frais d’adaptation du terrain éventuels.Cette offre est proposée en collaboration avec notre partenaire foncier selon disponibilités. Contact : au (Numéro supprimé).
Dompierre-sur-Mer
TERRAIN ET MAISONMaison neuve à construire FRENE_4CH_111_V1 BELLE MAISON DE 4 CHAMBRES Cette maison de 4 chambres offre un aspect extérieur équilibré et harmonieux, une façade réduite et une surface habitable initiale généreuse de 111 m². Outre, son agréable pièce de vie de 42m², ce plan propose de spacieuses chambres, dont une suite parentale au rez-de-chaussée avec sa propre salle d’eau, une entrée séparée pratique et utile grâce à ses espaces bureau et placard… un plan de référence pour répondre à vos critères. • Lumineuse avec cuisine ouverte donnant sur son jardin. • Beaux volumes et distribution optimisée des pièces pour votre confort de vie. • Aménagements et équipements de haut niveau : volets roulants motorisés et connectés, système de chauffage par pompe à chaleur, domotique, carrelage grand format. ET SI VOUS FAISIEZ CONSTRUIRE AVEC MAISONS ALYSIA ?Testez notre configurateur en ligne et chiffrez instantanément votre projet personnalisé, téléchargeable. • Gratuit, rapide et sans engagement. • + de 250 modèles de maisons personnalisables. • Calculettes en ligne pour identifier votre budget et évaluer votre future mensualité. Rendez-vous sur notre site maisons-alysia(.com) pour concrétiser votre rêve. Contactez-nous au (Numéro supprimé) pour finaliser votre projet ! Coût du terrain inclus dans cette offre. Hors peintures et faïence, revêtements de sol des chambres. Hors assurance dommages-ouvrage, frais de notaire et frais d’adaptation du terrain éventuels.Cette offre est proposée en collaboration avec notre partenaire foncier selon disponibilités. Contact : au (Numéro supprimé).
Périgny
TERRAIN ET MAISONMaison neuve à construire FRENE_4CH_111_V1 BELLE MAISON DE 4 CHAMBRES Cette maison de 4 chambres offre un aspect extérieur équilibré et harmonieux, une façade réduite et une surface habitable initiale généreuse de 111 m². Outre, son agréable pièce de vie de 42m², ce plan propose de spacieuses chambres, dont une suite parentale au rez-de-chaussée avec sa propre salle d’eau, une entrée séparée pratique et utile grâce à ses espaces bureau et placard… un plan de référence pour répondre à vos critères. • Lumineuse avec cuisine ouverte donnant sur son jardin. • Beaux volumes et distribution optimisée des pièces pour votre confort de vie. • Aménagements et équipements de haut niveau : volets roulants motorisés et connectés, système de chauffage par pompe à chaleur, domotique, carrelage grand format. ET SI VOUS FAISIEZ CONSTRUIRE AVEC MAISONS ALYSIA ?Testez notre configurateur en ligne et chiffrez instantanément votre projet personnalisé, téléchargeable. • Gratuit, rapide et sans engagement. • + de 250 modèles de maisons personnalisables. • Calculettes en ligne pour identifier votre budget et évaluer votre future mensualité. Rendez-vous sur notre site maisons-alysia(.com) pour concrétiser votre rêve. Contactez-nous au (Numéro supprimé) pour finaliser votre projet ! Coût du terrain inclus dans cette offre. Hors peintures et faïence, revêtements de sol des chambres. Hors assurance dommages-ouvrage, frais de notaire et frais d’adaptation du terrain éventuels.Cette offre est proposée en collaboration avec notre partenaire foncier selon disponibilités. Contact : au (Numéro supprimé).
La Jarne
TERRAIN ET MAISONMaison neuve à construire FRENE_4CH_111_V1 BELLE MAISON DE 4 CHAMBRES Cette maison de 4 chambres offre un aspect extérieur équilibré et harmonieux, une façade réduite et une surface habitable initiale généreuse de 111 m². Outre, son agréable pièce de vie de 42m², ce plan propose de spacieuses chambres, dont une suite parentale au rez-de-chaussée avec sa propre salle d’eau, une entrée séparée pratique et utile grâce à ses espaces bureau et placard… un plan de référence pour répondre à vos critères. • Lumineuse avec cuisine ouverte donnant sur son jardin. • Beaux volumes et distribution optimisée des pièces pour votre confort de vie. • Aménagements et équipements de haut niveau : volets roulants motorisés et connectés, système de chauffage par pompe à chaleur, domotique, carrelage grand format. ET SI VOUS FAISIEZ CONSTRUIRE AVEC MAISONS ALYSIA ?Testez notre configurateur en ligne et chiffrez instantanément votre projet personnalisé, téléchargeable. • Gratuit, rapide et sans engagement. • + de 250 modèles de maisons personnalisables. • Calculettes en ligne pour identifier votre budget et évaluer votre future mensualité. Rendez-vous sur notre site maisons-alysia(.com) pour concrétiser votre rêve. Contactez-nous au (Numéro supprimé) pour finaliser votre projet ! Coût du terrain inclus dans cette offre. Hors peintures et faïence, revêtements de sol des chambres. Hors assurance dommages-ouvrage, frais de notaire et frais d’adaptation du terrain éventuels.Cette offre est proposée en collaboration avec notre partenaire foncier selon disponibilités. Contact : au (Numéro supprimé).
La Jarne
TERRAIN ET MAISONMaison neuve à construire TILLEUL_3CH_90_V1 BELLE MAISON DE 3 CHAMBRES – 90 m²Cette maison spacieuse offre une distribution optimisée et une pièce de vie de 39 m² que vous pouvez adapter selon vos envies et besoins. Confort, praticité et personnalisation sont au cœur de ce projet.ET SI VOUS FAISIEZ CONSTRUIRE AVEC MAISONS ALYSIA ?Testez notre configurateur en ligne et personnalisez votre maison en moins de 2 minutes :Obtenez un projet chiffré personnalisé téléchargeable.Gratuit, rapide et sans engagement.Accédez à plus de 250 modèles de maisons personnalisables. Le coût du terrain est inclus dans l’offre !(Hors peintures, faïence, revêtements de sol des chambres, assurance dommages-ouvrage, frais de notaire et éventuels frais d’adaptation du terrain.) Rendez-vous sur maisons-alysia.com pour concrétiser votre rêve ! Ou contactez-nous au (Numéro supprimé) pour finaliser votre projet avec nos experts.Agence Alysia2 rue Becquerel – ZAC de Corne Neuve – 17139 Dompierre-sur-Mer Contact : au (Numéro supprimé).
Lagord
TERRAIN ET MAISON📍 Lagord (17140) – à quelques minutes de La RochelleIGC vous propose un projet de construction d’une maison contemporaine de 140 m² avec garage sur un terrain de 400 m², idéalement situé dans un secteur recherché de Lagord.Cette maison moderne offre un grand séjour lumineux avec cuisine ouverte, un patio pour profiter d’un espace extérieur intimiste, trois chambres dont une suite parentale avec dressing et salle d’eau, un bureau idéal pour télétravail ainsi qu’un garage intégré. Prestations de qualité signées IGC et possibilité de personnaliser votre intérieur selon vos envies.Emplacement privilégié à proximité des commodités et à quelques minutes de La Rochelle. Une opportunité à saisir pour concevoir votre maison sur mesure dans un cadre calme et agréable.Les atouts du projet :Accompagnement complet par un chargé de projet dédiéConception sur mesure avec notre bureau d’étudesGaranties et assurances incluses (CCMI, dommage-ouvrage, etc.)Contact : Ugo DA SILVA (Numéro supprimé) – Chargé de projet IGC – Pour plus d’informations(Prix assurances comprises. Estimation viabilisation, accès, raccordements et évacuations des terres incluses. Hors frais de notaire. Peintures et taxes non comprises. Terrain sélectionné sous réserve de disponibilité auprès de notre partenaire foncier. Conditions et visuels non contractuels).
Dompierre-sur-Mer
TERRAIN ET MAISONÀ quelques minutes de La Rochelle – Environnement calme et recherchéDécouvrez ce terrain de 452 m² situé dans un lotissement paisible à Dompierre‑sur‑Mer, idéal pour concrétiser un projet familial à proximité immédiate de La Rochelle.👉 Projet de construction IGC inclusUne maison contemporaine de 107 m², pensée pour offrir confort et luminosité :3 chambres, dont une suite parentale possiblePièce de vie spacieuse, tournée vers le jardinGrande baie vitrée offrant une superbe ouverture sur l’extérieurTerrasse couverte idéale pour profiter des beaux joursArchitecture moderne et prestations de qualité proposées par IGCLe tout sur un terrain de 452 m², parfaitement orienté pour valoriser les espaces extérieurs.Les atouts d’un projet IGC : Personnalisation complète des plans : une maison conçue sur-mesure, adaptée à vos besoins et aux contraintes du terrain.Qualité de construction reconnue : matériaux durables, finitions soignées et savoir‑faire d’un constructeur expérimenté.Accompagnement et garanties solides : suivi de projet clair, interlocuteur dédié et garanties légales complètes (livraison, décennale, dommage‑ouvrage).Contact : Ugo DA SILVA (Numéro supprimé) – Chargé de projet IGC – Pour plus d’informations
Angoulins
TERRAIN ET MAISONSur la commune recherchée d’Angoulins, à quelques minutes de La Rochelle et de la plage de Châtelaillon, IGC vous propose un projet de construction sur une parcelle d’environ 760 m², idéalement situé à quelques pas du centre bourg.Ce projet comprend une maison moderne au style atypique de 110 m², 3 chambres dont une suite parentale, un grand salon/séjour lumineux et tourné vers l’extérieur avec cuisine ouverte et une belle terrasse couverte de 16 m².Ce projet vous permettra de bénéficier d’un confort idéal toute l’année grâce à ses prestations haut de gamme ( matériaux qualitatifs, finitions soignées, performance énergétique… ) Les atouts d’un projet IGC : Personnalisation complète des plans : une maison conçue sur-mesure, adaptée à vos besoins et aux contraintes du terrain.Qualité de construction reconnue : matériaux durables, finitions soignées et savoir‑faire d’un constructeur expérimenté.Accompagnement et garanties solides : suivi de projet clair, interlocuteur dédié et garanties légales complètes (livraison, décennale, dommage‑ouvrage).Contact : Ugo DA SILVA (Numéro supprimé) – Chargé de projet IGC – Pour plus d’informations
Périgny
TERRAIN ET MAISONImaginez votre maison neuve, moderne et lumineuse, à seulement quelques minutes du centre de La Rochelle, sur la commune de Périgny.Ce projet de construction IGC, sur une parcelle de 306 m² vous propose une habitation contemporaine de 100 m², pensée pour offrir confort et fonctionnalité.Avec ses 4 chambres, ses volumes optimisés et ses larges ouvertures, cette maison allie espace et clarté pour un cadre de vie agréable. Vous profiterez également d’un jardin privatif et d’une localisation idéale, proche des commerces, des écoles et des plages.C’est l’opportunité parfaite pour devenir propriétaire d’une maison neuve dans l’une des communes les plus recherchées du secteur.Les atouts du projet :Accompagnement complet par un chargé de projet dédiéConception sur mesure avec notre bureau d’étudesGaranties et assurances incluses (CCMI, dommage-ouvrage, etc.)Contact : Ugo DA SILVA (Numéro supprimé) – Chargé de projet IGC – Pour plus d’informations
L’actualité immobilière à La Rochelle
13/10/2022
07/10/2022
03/10/2022
26/09/2022
16/09/2022
09/09/2022