Projet de construction avec terrain à La Jarrie
Images
Description
A 20 minutes de La Rochelle, sur la commune de LA JARRIE, nous vous présentons un projet de construction sur un terrain viabilisé. Exposée Sud-Ouest, cette large parcelle d'environ 350 m2 bénéficie d'une vue dégagée.
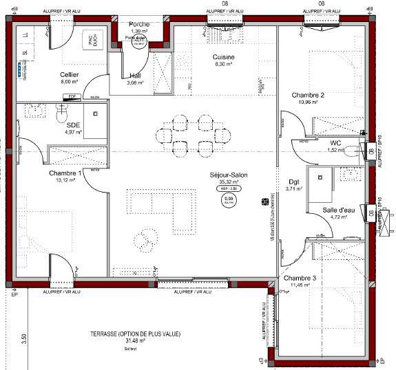
IGC construction vous propose une maison familiale de 105 m2 comprenant 3 chambres, une pièce de vie traversante de plus de 43 m2, de 2 pièces d’eau et un WC séparé. Cette construction dispose également d'un grand cellier.
Avec IGC, faites le choix de la sérénité et de la sécurité pour mener à bien votre projet de construction :- 45 ans d’expérience,- Prix ferme et définitif pendant 12 mois,- Excellent taux de Dommages-d’Ouvrages,- Cotation Banque de France « Excellent ». Prix du terrain seul : 125 809 €. (Hors frais de notaire).
Contact : Ugo DA SILVA (Numéro supprimé) - Chargé de projet IGC - Pour plus d'informations(Prix assurances comprises. Estimation des frais de viabilisation, accès, raccordements et évacuations des terres incluses. Hors frais de notaire. Peintures et taxes non comprises. Terrain sélectionné sous réserve de disponibilité auprès de notre partenaire foncier. Conditions et visuels non contractuels).
Logement susceptibles de vous intéresser
Nous vous proposons de découvrir aussi cette sélection de logements situés à moins de 10km de La Jarrie et qui seraient susceptibles de vous intéresser.
La Jarrie
TERRAIN ET MAISONMaison neuve à construire PALMIER_2CH_68_V1 BELLE MAISON DE 2 CHAMBRES Cette maison de 2 chambres offre une superficie initiale de 68 m2 habitable avant agrandissement. Elle propose une pièce de vie de 31 m2 évolutive selon vos besoins et vos souhaits. • Lumineuse avec cuisine ouverte donnant sur son jardin. • Beaux volumes et distribution optimisée des pièces pour votre confort de vie. • Aménagements et équipements de haut niveau : volets roulants motorisés et connectés, système de chauffage par pompe à chaleur, domotique, carrelage grand format. ET SI VOUS FAISIEZ CONSTRUIRE AVEC MAISONS ALYSIA ?Testez notre configurateur en ligne et chiffrez instantanément votre projet personnalisé, téléchargeable. • Gratuit, rapide et sans engagement. • + de 250 modèles de maisons personnalisables. • Calculettes en ligne pour identifier votre budget et évaluer votre future mensualité. Rendez-vous sur notre site maisons-alysia(.com) pour concrétiser votre rêve. Contactez-nous au (Numéro supprimé) pour finaliser votre projet ! Coût du terrain inclus dans cette offre. Hors peintures et faïence, revêtements de sol des chambres. Hors assurance dommages-ouvrage, frais de notaire et frais d’adaptation du terrain éventuels.Cette offre est proposée en collaboration avec notre partenaire foncier selon disponibilités. Contact : au (Numéro supprimé).
Périgny
TERRAIN ET MAISONMaison neuve à construire FRENE_4CH_111_V1 BELLE MAISON DE 4 CHAMBRES Cette maison de 4 chambres offre un aspect extérieur équilibré et harmonieux, une façade réduite et une surface habitable initiale généreuse de 111 m². Outre, son agréable pièce de vie de 42m², ce plan propose de spacieuses chambres, dont une suite parentale au rez-de-chaussée avec sa propre salle d’eau, une entrée séparée pratique et utile grâce à ses espaces bureau et placard… un plan de référence pour répondre à vos critères. • Lumineuse avec cuisine ouverte donnant sur son jardin. • Beaux volumes et distribution optimisée des pièces pour votre confort de vie. • Aménagements et équipements de haut niveau : volets roulants motorisés et connectés, système de chauffage par pompe à chaleur, domotique, carrelage grand format. ET SI VOUS FAISIEZ CONSTRUIRE AVEC MAISONS ALYSIA ?Testez notre configurateur en ligne et chiffrez instantanément votre projet personnalisé, téléchargeable. • Gratuit, rapide et sans engagement. • + de 250 modèles de maisons personnalisables. • Calculettes en ligne pour identifier votre budget et évaluer votre future mensualité. Rendez-vous sur notre site maisons-alysia(.com) pour concrétiser votre rêve. Contactez-nous au (Numéro supprimé) pour finaliser votre projet ! Coût du terrain inclus dans cette offre. Hors peintures et faïence, revêtements de sol des chambres. Hors assurance dommages-ouvrage, frais de notaire et frais d’adaptation du terrain éventuels.Cette offre est proposée en collaboration avec notre partenaire foncier selon disponibilités. Contact : au (Numéro supprimé).
Sainte-Soulle
TERRAIN ET MAISONMaison neuve à construire FRENE_4CH_111_V1 BELLE MAISON DE 4 CHAMBRES Cette maison de 4 chambres offre un aspect extérieur équilibré et harmonieux, une façade réduite et une surface habitable initiale généreuse de 111 m². Outre, son agréable pièce de vie de 42m², ce plan propose de spacieuses chambres, dont une suite parentale au rez-de-chaussée avec sa propre salle d’eau, une entrée séparée pratique et utile grâce à ses espaces bureau et placard… un plan de référence pour répondre à vos critères. • Lumineuse avec cuisine ouverte donnant sur son jardin. • Beaux volumes et distribution optimisée des pièces pour votre confort de vie. • Aménagements et équipements de haut niveau : volets roulants motorisés et connectés, système de chauffage par pompe à chaleur, domotique, carrelage grand format. ET SI VOUS FAISIEZ CONSTRUIRE AVEC MAISONS ALYSIA ?Testez notre configurateur en ligne et chiffrez instantanément votre projet personnalisé, téléchargeable. • Gratuit, rapide et sans engagement. • + de 250 modèles de maisons personnalisables. • Calculettes en ligne pour identifier votre budget et évaluer votre future mensualité. Rendez-vous sur notre site maisons-alysia(.com) pour concrétiser votre rêve. Contactez-nous au (Numéro supprimé) pour finaliser votre projet ! Coût du terrain inclus dans cette offre. Hors peintures et faïence, revêtements de sol des chambres. Hors assurance dommages-ouvrage, frais de notaire et frais d’adaptation du terrain éventuels.Cette offre est proposée en collaboration avec notre partenaire foncier selon disponibilités. Contact : au (Numéro supprimé).
Saint-Médard-d'Aunis
TERRAIN ET MAISONMaison neuve à construire PALMIER_2CH_68_V1 BELLE MAISON DE 2 CHAMBRES Cette maison de 2 chambres offre une superficie initiale de 68 m2 habitable avant agrandissement. Elle propose une pièce de vie de 31 m2 évolutive selon vos besoins et vos souhaits. • Lumineuse avec cuisine ouverte donnant sur son jardin. • Beaux volumes et distribution optimisée des pièces pour votre confort de vie. • Aménagements et équipements de haut niveau : volets roulants motorisés et connectés, système de chauffage par pompe à chaleur, domotique, carrelage grand format. ET SI VOUS FAISIEZ CONSTRUIRE AVEC MAISONS ALYSIA ?Testez notre configurateur en ligne et chiffrez instantanément votre projet personnalisé, téléchargeable. • Gratuit, rapide et sans engagement. • + de 250 modèles de maisons personnalisables. • Calculettes en ligne pour identifier votre budget et évaluer votre future mensualité. Rendez-vous sur notre site maisons-alysia(.com) pour concrétiser votre rêve. Contactez-nous au (Numéro supprimé) pour finaliser votre projet ! Coût du terrain inclus dans cette offre. Hors peintures et faïence, revêtements de sol des chambres. Hors assurance dommages-ouvrage, frais de notaire et frais d’adaptation du terrain éventuels.Cette offre est proposée en collaboration avec notre partenaire foncier selon disponibilités. Contact : au (Numéro supprimé).
Aigrefeuille-d'Aunis
TERRAIN ET MAISONMaison neuve à construire FRENE_4CH_111_V1 BELLE MAISON DE 4 CHAMBRES Cette maison de 4 chambres offre un aspect extérieur équilibré et harmonieux, une façade réduite et une surface habitable initiale généreuse de 111 m². Outre, son agréable pièce de vie de 42m², ce plan propose de spacieuses chambres, dont une suite parentale au rez-de-chaussée avec sa propre salle d’eau, une entrée séparée pratique et utile grâce à ses espaces bureau et placard… un plan de référence pour répondre à vos critères. • Lumineuse avec cuisine ouverte donnant sur son jardin. • Beaux volumes et distribution optimisée des pièces pour votre confort de vie. • Aménagements et équipements de haut niveau : volets roulants motorisés et connectés, système de chauffage par pompe à chaleur, domotique, carrelage grand format. ET SI VOUS FAISIEZ CONSTRUIRE AVEC MAISONS ALYSIA ?Testez notre configurateur en ligne et chiffrez instantanément votre projet personnalisé, téléchargeable. • Gratuit, rapide et sans engagement. • + de 250 modèles de maisons personnalisables. • Calculettes en ligne pour identifier votre budget et évaluer votre future mensualité. Rendez-vous sur notre site maisons-alysia(.com) pour concrétiser votre rêve. Contactez-nous au (Numéro supprimé) pour finaliser votre projet ! Coût du terrain inclus dans cette offre. Hors peintures et faïence, revêtements de sol des chambres. Hors assurance dommages-ouvrage, frais de notaire et frais d’adaptation du terrain éventuels.Cette offre est proposée en collaboration avec notre partenaire foncier selon disponibilités. Contact : au (Numéro supprimé).
Dompierre-sur-Mer
TERRAIN ET MAISONMaison neuve à construire FRENE_4CH_111_V1 BELLE MAISON DE 4 CHAMBRES Cette maison de 4 chambres offre un aspect extérieur équilibré et harmonieux, une façade réduite et une surface habitable initiale généreuse de 111 m². Outre, son agréable pièce de vie de 42m², ce plan propose de spacieuses chambres, dont une suite parentale au rez-de-chaussée avec sa propre salle d’eau, une entrée séparée pratique et utile grâce à ses espaces bureau et placard… un plan de référence pour répondre à vos critères. • Lumineuse avec cuisine ouverte donnant sur son jardin. • Beaux volumes et distribution optimisée des pièces pour votre confort de vie. • Aménagements et équipements de haut niveau : volets roulants motorisés et connectés, système de chauffage par pompe à chaleur, domotique, carrelage grand format. ET SI VOUS FAISIEZ CONSTRUIRE AVEC MAISONS ALYSIA ?Testez notre configurateur en ligne et chiffrez instantanément votre projet personnalisé, téléchargeable. • Gratuit, rapide et sans engagement. • + de 250 modèles de maisons personnalisables. • Calculettes en ligne pour identifier votre budget et évaluer votre future mensualité. Rendez-vous sur notre site maisons-alysia(.com) pour concrétiser votre rêve. Contactez-nous au (Numéro supprimé) pour finaliser votre projet ! Coût du terrain inclus dans cette offre. Hors peintures et faïence, revêtements de sol des chambres. Hors assurance dommages-ouvrage, frais de notaire et frais d’adaptation du terrain éventuels.Cette offre est proposée en collaboration avec notre partenaire foncier selon disponibilités. Contact : au (Numéro supprimé).
La Jarne
TERRAIN ET MAISONMaison neuve à construire FRENE_4CH_111_V1 BELLE MAISON DE 4 CHAMBRES Cette maison de 4 chambres offre un aspect extérieur équilibré et harmonieux, une façade réduite et une surface habitable initiale généreuse de 111 m². Outre, son agréable pièce de vie de 42m², ce plan propose de spacieuses chambres, dont une suite parentale au rez-de-chaussée avec sa propre salle d’eau, une entrée séparée pratique et utile grâce à ses espaces bureau et placard… un plan de référence pour répondre à vos critères. • Lumineuse avec cuisine ouverte donnant sur son jardin. • Beaux volumes et distribution optimisée des pièces pour votre confort de vie. • Aménagements et équipements de haut niveau : volets roulants motorisés et connectés, système de chauffage par pompe à chaleur, domotique, carrelage grand format. ET SI VOUS FAISIEZ CONSTRUIRE AVEC MAISONS ALYSIA ?Testez notre configurateur en ligne et chiffrez instantanément votre projet personnalisé, téléchargeable. • Gratuit, rapide et sans engagement. • + de 250 modèles de maisons personnalisables. • Calculettes en ligne pour identifier votre budget et évaluer votre future mensualité. Rendez-vous sur notre site maisons-alysia(.com) pour concrétiser votre rêve. Contactez-nous au (Numéro supprimé) pour finaliser votre projet ! Coût du terrain inclus dans cette offre. Hors peintures et faïence, revêtements de sol des chambres. Hors assurance dommages-ouvrage, frais de notaire et frais d’adaptation du terrain éventuels.Cette offre est proposée en collaboration avec notre partenaire foncier selon disponibilités. Contact : au (Numéro supprimé).
Vérines
TERRAIN ET MAISONMaison neuve à construire PALMIER_2CH_68_V1 BELLE MAISON DE 2 CHAMBRES Cette maison de 2 chambres offre une superficie initiale de 68 m2 habitable avant agrandissement. Elle propose une pièce de vie de 31 m2 évolutive selon vos besoins et vos souhaits. • Lumineuse avec cuisine ouverte donnant sur son jardin. • Beaux volumes et distribution optimisée des pièces pour votre confort de vie. • Aménagements et équipements de haut niveau : volets roulants motorisés et connectés, système de chauffage par pompe à chaleur, domotique, carrelage grand format. ET SI VOUS FAISIEZ CONSTRUIRE AVEC MAISONS ALYSIA ?Testez notre configurateur en ligne et chiffrez instantanément votre projet personnalisé, téléchargeable. • Gratuit, rapide et sans engagement. • + de 250 modèles de maisons personnalisables. • Calculettes en ligne pour identifier votre budget et évaluer votre future mensualité. Rendez-vous sur notre site maisons-alysia(.com) pour concrétiser votre rêve. Contactez-nous au (Numéro supprimé) pour finaliser votre projet ! Coût du terrain inclus dans cette offre. Hors peintures et faïence, revêtements de sol des chambres. Hors assurance dommages-ouvrage, frais de notaire et frais d’adaptation du terrain éventuels.Cette offre est proposée en collaboration avec notre partenaire foncier (17) Nexity selon disponibilités. Contact : au (Numéro supprimé).
Aigrefeuille-d'Aunis
TERRAIN ET MAISONMaison neuve à construire FRAMBOISIER_3CH_77_V1 BELLE MAISON DE 3 CHAMBRES – 77 m²Cette maison spacieuse offre une distribution optimisée et une pièce de vie de 35 m² que vous pouvez adapter selon vos envies et besoins. Confort, praticité et personnalisation sont au cœur de ce projet.ET SI VOUS FAISIEZ CONSTRUIRE AVEC MAISONS ALYSIA ?Testez notre configurateur en ligne et personnalisez votre maison en moins de 2 minutes :Obtenez un projet chiffré personnalisé téléchargeable.Gratuit, rapide et sans engagement.Accédez à plus de 250 modèles de maisons personnalisables. Le coût du terrain est inclus dans l’offre !(Hors peintures, faïence, revêtements de sol des chambres, assurance dommages-ouvrage, frais de notaire et éventuels frais d’adaptation du terrain.) Rendez-vous sur maisons-alysia.com pour concrétiser votre rêve ! Ou contactez-nous au (Numéro supprimé) pour finaliser votre projet avec nos experts.Agence Alysia2 rue Becquerel – ZAC de Corne Neuve – 17139 Dompierre-sur-Mer Contact : au (Numéro supprimé).
Le Thou
TERRAIN ET MAISONMaison neuve à construire SEQUOIA_3CH_90_V1 BELLE MAISON DE 3 CHAMBRES – 90 m²Cette maison spacieuse offre une distribution optimisée et une pièce de vie de 41 m² que vous pouvez adapter selon vos envies et besoins. Confort, praticité et personnalisation sont au cœur de ce projet.ET SI VOUS FAISIEZ CONSTRUIRE AVEC MAISONS ALYSIA ?Testez notre configurateur en ligne et personnalisez votre maison en moins de 2 minutes :Obtenez un projet chiffré personnalisé téléchargeable.Gratuit, rapide et sans engagement.Accédez à plus de 250 modèles de maisons personnalisables. Le coût du terrain est inclus dans l’offre !(Hors peintures, faïence, revêtements de sol des chambres, assurance dommages-ouvrage, frais de notaire et éventuels frais d’adaptation du terrain.) Rendez-vous sur maisons-alysia.com pour concrétiser votre rêve ! Ou contactez-nous au (Numéro supprimé) pour finaliser votre projet avec nos experts.Agence Alysia2 rue Becquerel – ZAC de Corne Neuve – 17139 Dompierre-sur-Mer Contact : au (Numéro supprimé).
L’actualité immobilière à La Jarrie
13/10/2022
07/10/2022
03/10/2022
26/09/2022
16/09/2022
09/09/2022