Projet de construction avec terrain à vendre
Images
Description
A 20 minutes de La Rochelle, sur la commune de LA JARRIE, nous vous présentons un projet de construction sur un terrain à viabiliser. Cette parcelle d'environ 450 m2 bénéficie d'une vue arborée.
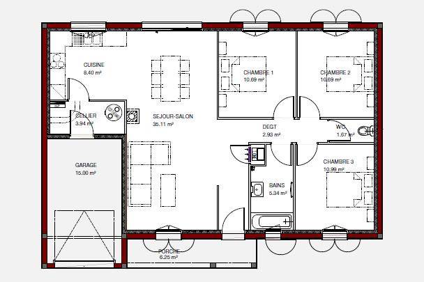
IGC construction vous propose une maison familiale de 90 m2 comprenant 3 chambres, une pièce de vie traversante de plus de 43 m2, d'une pièce d’eau et un WC séparé. Cette construction dispose également d'un garage avec son cellier attenant.
Avec IGC, faites le choix de la sérénité et de la sécurité pour mener à bien votre projet de construction :- 45 ans d’expérience,- Prix ferme et définitif pendant 12 mois,- Excellent taux de Dommages-d’Ouvrages,- Cotation Banque de France « Excellent ». Prix du terrain seul : 133 000 €. (Hors frais de notaire).
Contact : Ugo DA SILVA (Numéro supprimé) - Chargé de projet IGC - Pour plus d'informations(Prix assurances comprises. Estimation des frais de viabilisation, accès, raccordements et évacuations des terres incluses. Hors frais de notaire. Peintures et taxes non comprises. Terrain sélectionné sous réserve de disponibilité auprès de notre partenaire foncier. Conditions et visuels non contractuels).
Logement susceptibles de vous intéresser
Nous vous proposons de découvrir aussi cette sélection de logements situés à moins de 10km de La Jarrie et qui seraient susceptibles de vous intéresser.
Périgny
TERRAIN ET MAISONMaison neuve à construire FRENE_3CH_94_V1 BELLE MAISON DE 3 CHAMBRES Cette maison de 3 chambres présente une façade compacte, une architecture équilibrée et une surface habitable de 94 m². Elle se distingue par une pièce de vie de 35 m², deux grandes chambres à l’étage, et une suite au rez-de-chaussée avec salle d’eau privative. L’entrée indépendante renforce la fonctionnalité du plan. Un modèle de référence conçu pour répondre à vos attentes. • Lumineuse avec cuisine ouverte donnant sur son jardin. • Beaux volumes et distribution optimisée des pièces pour votre confort de vie. • Aménagements et équipements de haut niveau : volets roulants motorisés et connectés, système de chauffage par pompe à chaleur, domotique, carrelage grand format. ET SI VOUS FAISIEZ CONSTRUIRE AVEC MAISONS ALYSIA ?Testez notre configurateur en ligne et chiffrez instantanément votre projet personnalisé, téléchargeable. • Gratuit, rapide et sans engagement. • + de 250 modèles de maisons personnalisables. • Calculettes en ligne pour identifier votre budget et évaluer votre future mensualité. Rendez-vous sur notre site maisons-alysia(.com) pour concrétiser votre rêve. Contactez-nous au (Numéro supprimé) pour finaliser votre projet ! Coût du terrain inclus dans cette offre. Hors peintures et faïence, revêtements de sol des chambres. Hors assurance dommages-ouvrage, frais de notaire et frais d’adaptation du terrain éventuels.Cette offre est proposée en collaboration avec notre partenaire foncier selon disponibilités. Contact : au (Numéro supprimé).
Dompierre-sur-Mer
TERRAIN ET MAISONMaison neuve à construire BAOBAB_4CH_115_V2 BELLE MAISON DE 4 CHAMBRES Voyez la vie en double avec cette grande maison.Avec son double garage, ses deux espaces nuits isolés, ses deux salles de bains, ses 2 grandes baies vitrées dans la pièce de vie qui sont prolongées par deux terrasses.Profitez de la vie chez vous en deux fois plus grand ! Vivez votre rêve en ayant deux fois plus de confort toujours avec un cout de construction attractif chez Maisons Alysia. • Lumineuse avec cuisine ouverte donnant sur son jardin. • Beaux volumes et distribution optimisée des pièces pour votre confort de vie. • Aménagements et équipements de haut niveau : volets roulants motorisés et connectés, système de chauffage par pompe à chaleur, domotique, carrelage grand format. ET SI VOUS FAISIEZ CONSTRUIRE AVEC MAISONS ALYSIA ?Testez notre configurateur en ligne et chiffrez instantanément votre projet personnalisé, téléchargeable. • Gratuit, rapide et sans engagement. • + de 250 modèles de maisons personnalisables. • Calculettes en ligne pour identifier votre budget et évaluer votre future mensualité. Rendez-vous sur notre site maisons-alysia(.com) pour concrétiser votre rêve. Contactez-nous au (Numéro supprimé) pour finaliser votre projet ! Coût du terrain inclus dans cette offre. Hors peintures et faïence, revêtements de sol des chambres. Hors assurance dommages-ouvrage, frais de notaire et frais d’adaptation du terrain éventuels.Cette offre est proposée en collaboration avec notre partenaire foncier selon disponibilités. Contact : au (Numéro supprimé).
Sainte-Soulle
TERRAIN ET MAISONMaison neuve à construire FRENE_3CH_94_V1 BELLE MAISON DE 3 CHAMBRES Cette maison de 3 chambres présente une façade compacte, une architecture équilibrée et une surface habitable de 94 m². Elle se distingue par une pièce de vie de 35 m², deux grandes chambres à l’étage, et une suite au rez-de-chaussée avec salle d’eau privative. L’entrée indépendante renforce la fonctionnalité du plan. Un modèle de référence conçu pour répondre à vos attentes. • Lumineuse avec cuisine ouverte donnant sur son jardin. • Beaux volumes et distribution optimisée des pièces pour votre confort de vie. • Aménagements et équipements de haut niveau : volets roulants motorisés et connectés, système de chauffage par pompe à chaleur, domotique, carrelage grand format. ET SI VOUS FAISIEZ CONSTRUIRE AVEC MAISONS ALYSIA ?Testez notre configurateur en ligne et chiffrez instantanément votre projet personnalisé, téléchargeable. • Gratuit, rapide et sans engagement. • + de 250 modèles de maisons personnalisables. • Calculettes en ligne pour identifier votre budget et évaluer votre future mensualité. Rendez-vous sur notre site maisons-alysia(.com) pour concrétiser votre rêve. Contactez-nous au (Numéro supprimé) pour finaliser votre projet ! Coût du terrain inclus dans cette offre. Hors peintures et faïence, revêtements de sol des chambres. Hors assurance dommages-ouvrage, frais de notaire et frais d’adaptation du terrain éventuels.Cette offre est proposée en collaboration avec notre partenaire foncier selon disponibilités. Contact : au (Numéro supprimé).
Vérines
TERRAIN ET MAISONMaison neuve à construire FRENE_3CH_94_V1 BELLE MAISON DE 3 CHAMBRES Cette maison de 3 chambres présente une façade compacte, une architecture équilibrée et une surface habitable de 94 m². Elle se distingue par une pièce de vie de 35 m², deux grandes chambres à l’étage, et une suite au rez-de-chaussée avec salle d’eau privative. L’entrée indépendante renforce la fonctionnalité du plan. Un modèle de référence conçu pour répondre à vos attentes. • Lumineuse avec cuisine ouverte donnant sur son jardin. • Beaux volumes et distribution optimisée des pièces pour votre confort de vie. • Aménagements et équipements de haut niveau : volets roulants motorisés et connectés, système de chauffage par pompe à chaleur, domotique, carrelage grand format. ET SI VOUS FAISIEZ CONSTRUIRE AVEC MAISONS ALYSIA ?Testez notre configurateur en ligne et chiffrez instantanément votre projet personnalisé, téléchargeable. • Gratuit, rapide et sans engagement. • + de 250 modèles de maisons personnalisables. • Calculettes en ligne pour identifier votre budget et évaluer votre future mensualité. Rendez-vous sur notre site maisons-alysia(.com) pour concrétiser votre rêve. Contactez-nous au (Numéro supprimé) pour finaliser votre projet ! Coût du terrain inclus dans cette offre. Hors peintures et faïence, revêtements de sol des chambres. Hors assurance dommages-ouvrage, frais de notaire et frais d’adaptation du terrain éventuels.Cette offre est proposée en collaboration avec notre partenaire foncier (17) Nexity selon disponibilités. Contact : au (Numéro supprimé).
La Jarne
TERRAIN ET MAISONMaison neuve à construire FRENE_3CH_94_V1 BELLE MAISON DE 3 CHAMBRES Cette maison de 3 chambres présente une façade compacte, une architecture équilibrée et une surface habitable de 94 m². Elle se distingue par une pièce de vie de 35 m², deux grandes chambres à l’étage, et une suite au rez-de-chaussée avec salle d’eau privative. L’entrée indépendante renforce la fonctionnalité du plan. Un modèle de référence conçu pour répondre à vos attentes. • Lumineuse avec cuisine ouverte donnant sur son jardin. • Beaux volumes et distribution optimisée des pièces pour votre confort de vie. • Aménagements et équipements de haut niveau : volets roulants motorisés et connectés, système de chauffage par pompe à chaleur, domotique, carrelage grand format. ET SI VOUS FAISIEZ CONSTRUIRE AVEC MAISONS ALYSIA ?Testez notre configurateur en ligne et chiffrez instantanément votre projet personnalisé, téléchargeable. • Gratuit, rapide et sans engagement. • + de 250 modèles de maisons personnalisables. • Calculettes en ligne pour identifier votre budget et évaluer votre future mensualité. Rendez-vous sur notre site maisons-alysia(.com) pour concrétiser votre rêve. Contactez-nous au (Numéro supprimé) pour finaliser votre projet ! Coût du terrain inclus dans cette offre. Hors peintures et faïence, revêtements de sol des chambres. Hors assurance dommages-ouvrage, frais de notaire et frais d’adaptation du terrain éventuels.Cette offre est proposée en collaboration avec notre partenaire foncier selon disponibilités. Contact : au (Numéro supprimé).
La Jarrie
TERRAIN ET MAISONMaison neuve à construire FRENE_3CH_94_V1 BELLE MAISON DE 3 CHAMBRES Cette maison de 3 chambres présente une façade compacte, une architecture équilibrée et une surface habitable de 94 m². Elle se distingue par une pièce de vie de 35 m², deux grandes chambres à l’étage, et une suite au rez-de-chaussée avec salle d’eau privative. L’entrée indépendante renforce la fonctionnalité du plan. Un modèle de référence conçu pour répondre à vos attentes. • Lumineuse avec cuisine ouverte donnant sur son jardin. • Beaux volumes et distribution optimisée des pièces pour votre confort de vie. • Aménagements et équipements de haut niveau : volets roulants motorisés et connectés, système de chauffage par pompe à chaleur, domotique, carrelage grand format. ET SI VOUS FAISIEZ CONSTRUIRE AVEC MAISONS ALYSIA ?Testez notre configurateur en ligne et chiffrez instantanément votre projet personnalisé, téléchargeable. • Gratuit, rapide et sans engagement. • + de 250 modèles de maisons personnalisables. • Calculettes en ligne pour identifier votre budget et évaluer votre future mensualité. Rendez-vous sur notre site maisons-alysia(.com) pour concrétiser votre rêve. Contactez-nous au (Numéro supprimé) pour finaliser votre projet ! Coût du terrain inclus dans cette offre. Hors peintures et faïence, revêtements de sol des chambres. Hors assurance dommages-ouvrage, frais de notaire et frais d’adaptation du terrain éventuels.Cette offre est proposée en collaboration avec notre partenaire foncier selon disponibilités. Contact : au (Numéro supprimé).
Aigrefeuille-d'Aunis
TERRAIN ET MAISONMaison neuve à construire FRENE_3CH_94_V1 BELLE MAISON DE 3 CHAMBRES Cette maison de 3 chambres présente une façade compacte, une architecture équilibrée et une surface habitable de 94 m². Elle se distingue par une pièce de vie de 35 m², deux grandes chambres à l’étage, et une suite au rez-de-chaussée avec salle d’eau privative. L’entrée indépendante renforce la fonctionnalité du plan. Un modèle de référence conçu pour répondre à vos attentes. • Lumineuse avec cuisine ouverte donnant sur son jardin. • Beaux volumes et distribution optimisée des pièces pour votre confort de vie. • Aménagements et équipements de haut niveau : volets roulants motorisés et connectés, système de chauffage par pompe à chaleur, domotique, carrelage grand format. ET SI VOUS FAISIEZ CONSTRUIRE AVEC MAISONS ALYSIA ?Testez notre configurateur en ligne et chiffrez instantanément votre projet personnalisé, téléchargeable. • Gratuit, rapide et sans engagement. • + de 250 modèles de maisons personnalisables. • Calculettes en ligne pour identifier votre budget et évaluer votre future mensualité. Rendez-vous sur notre site maisons-alysia(.com) pour concrétiser votre rêve. Contactez-nous au (Numéro supprimé) pour finaliser votre projet ! Coût du terrain inclus dans cette offre. Hors peintures et faïence, revêtements de sol des chambres. Hors assurance dommages-ouvrage, frais de notaire et frais d’adaptation du terrain éventuels.Cette offre est proposée en collaboration avec notre partenaire foncier selon disponibilités. Contact : au (Numéro supprimé).
Saint-Médard-d'Aunis
TERRAIN ET MAISONMaison neuve à construire MAGNOLIA_2CH_51_V1 BELLE MAISON DE 2 CHAMBRES Cette maison de 2 chambres offre une distribution optimisée des pièces sur une superficie de 51 m2 habitable. Ce plan compact a été pensé pour faciliter l’accès à la propriété avec un budget maîtrisé. • Lumineuse avec cuisine ouverte donnant sur son jardin. • Beaux volumes et distribution optimisée des pièces pour votre confort de vie. • Aménagements et équipements de haut niveau : volets roulants motorisés et connectés, système de chauffage par pompe à chaleur, domotique, carrelage grand format. ET SI VOUS FAISIEZ CONSTRUIRE AVEC MAISONS ALYSIA ?Testez notre configurateur en ligne et chiffrez instantanément votre projet personnalisé, téléchargeable. • Gratuit, rapide et sans engagement. • + de 250 modèles de maisons personnalisables. • Calculettes en ligne pour identifier votre budget et évaluer votre future mensualité. Rendez-vous sur notre site maisons-alysia(.com) pour concrétiser votre rêve. Contactez-nous au (Numéro supprimé) pour finaliser votre projet ! Coût du terrain inclus dans cette offre. Hors peintures et faïence, revêtements de sol des chambres. Hors assurance dommages-ouvrage, frais de notaire et frais d’adaptation du terrain éventuels.Cette offre est proposée en collaboration avec notre partenaire foncier selon disponibilités. Contact : au (Numéro supprimé).
Aigrefeuille-d'Aunis
TERRAIN ET MAISONMaison neuve à construire FRAMBOISIER_3CH_77_V1 BELLE MAISON DE 3 CHAMBRES – 77 m²Cette maison spacieuse offre une distribution optimisée et une pièce de vie de 35 m² que vous pouvez adapter selon vos envies et besoins. Confort, praticité et personnalisation sont au cœur de ce projet.ET SI VOUS FAISIEZ CONSTRUIRE AVEC MAISONS ALYSIA ?Testez notre configurateur en ligne et personnalisez votre maison en moins de 2 minutes :Obtenez un projet chiffré personnalisé téléchargeable.Gratuit, rapide et sans engagement.Accédez à plus de 250 modèles de maisons personnalisables. Le coût du terrain est inclus dans l’offre !(Hors peintures, faïence, revêtements de sol des chambres, assurance dommages-ouvrage, frais de notaire et éventuels frais d’adaptation du terrain.) Rendez-vous sur maisons-alysia.com pour concrétiser votre rêve ! Ou contactez-nous au (Numéro supprimé) pour finaliser votre projet avec nos experts.Agence Alysia2 rue Becquerel – ZAC de Corne Neuve – 17139 Dompierre-sur-Mer Contact : au (Numéro supprimé).
Le Thou
TERRAIN ET MAISONMaison neuve à construire SEQUOIA_3CH_90_V1 BELLE MAISON DE 3 CHAMBRES – 90 m²Cette maison spacieuse offre une distribution optimisée et une pièce de vie de 41 m² que vous pouvez adapter selon vos envies et besoins. Confort, praticité et personnalisation sont au cœur de ce projet.ET SI VOUS FAISIEZ CONSTRUIRE AVEC MAISONS ALYSIA ?Testez notre configurateur en ligne et personnalisez votre maison en moins de 2 minutes :Obtenez un projet chiffré personnalisé téléchargeable.Gratuit, rapide et sans engagement.Accédez à plus de 250 modèles de maisons personnalisables. Le coût du terrain est inclus dans l’offre !(Hors peintures, faïence, revêtements de sol des chambres, assurance dommages-ouvrage, frais de notaire et éventuels frais d’adaptation du terrain.) Rendez-vous sur maisons-alysia.com pour concrétiser votre rêve ! Ou contactez-nous au (Numéro supprimé) pour finaliser votre projet avec nos experts.Agence Alysia2 rue Becquerel – ZAC de Corne Neuve – 17139 Dompierre-sur-Mer Contact : au (Numéro supprimé).
L’actualité immobilière à La Jarrie
13/10/2022
07/10/2022
03/10/2022
26/09/2022
16/09/2022
09/09/2022