Elégante maison de ville - 3 chambres - 135 m² - Cognac
Images
Description
Bienvenue chez Abriculteurs, l'agence familiale qui s'engage à un service immobilier d'exception. Découvrez une présentation soignée de ce bien : des photos professionnelles, un plan détaillé et une visite virtuelle immersive.
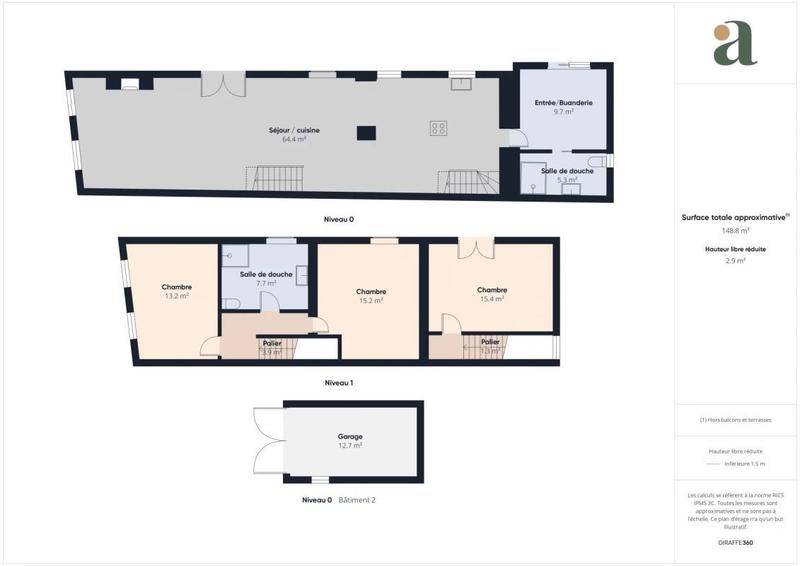
Idéalement située dans le quartier Saint-Martin, cette charmante maison d'environ 135 m² séduit par ses beaux volumes et son atmosphère chaleureuse, parfaitement adaptée à une vie de famille dans un environnement calme et recherché.
Au rez-de-chaussée, vous découvrirez :
- Un vaste séjour lumineux agrémenté d'une cheminée avec insert
- Une cuisine haut de gamme entièrement équipée avec îlot central (deux fours, four vapeur, micro-ondes, chauffe-plat, plaque à induction, hotte et lave-vaisselle)
- Une buanderie
- Une salle d'eau avec WC
À l'étage :
- Trois chambres
- Une salle d'eau avec WC
Extérieurs :
- Une agréable cour sans vis-à-vis de 167 m²
- Un jacuzzi 5 places
- Un garage
Les plus :
- Pompe à chaleur
- portail motorisé
- visiophone
- proche commodités et écoles
A noter :
- Taxe foncière : 1768 € (2025)
- Terrain de 253 m²
- Chauffage : pompe à chaleur
- État du bien : très bon état
- Fibre
- Raccordé au réseau général du tout à l'égout
Consommation conventionnelle (kWhEP/m2.an) : 149 (C)
Estimation des émissions (kg CO2/m2.an) : 4 (A)
Coût de l'énergie min / max : 1080 €/ 1530 €
Année de référence des prix : 2021
Prix de vente : 299 900 € TTC (Honoraires Abriculteurs à la charge du vendeur)
Les informations sur les risques auxquels ce bien est exposé sont disponibles sur le site Géorisques : www.georisques.gouv.fr
Annonce rédigée sous la responsabilité éditoriale de Mme Estelle BIGOURET, agent commercial (EI), immatriculé au RSAC de Créteil sous le n° 880 255 179, sans détention de fonds, agissant pour le compte de la SARL Abriculteurs immobilier, au capital de 5 000 €, immatriculée sous le SIREN n° 837 704 584, titulaire de la carte professionnelle n° CPI 7501 2018 000 025 842 délivrée par la CCI de Paris Île-de-France, dont le représentant légal est M. Adrien Piot, ayant son siège social au 12 rue des Halles, 75001 Paris
Les informations sur les risques auxquels ce bien est exposé sont disponibles sur le site www.georisques.gouv.fr
Diagnostics énergétiques
Consommation énergétique (DPE)
Émissions de Gaz à effet de serre (GES)
Logement susceptibles de vous intéresser
Nous vous proposons de découvrir aussi cette sélection de logements situés à moins de 10km de Cognac et qui seraient susceptibles de vous intéresser.
Nercillac
TERRAIN ET MAISONMaison neuve à construire PEPINO_3CH_95_V1 BELLE MAISON DE 3 CHAMBRES Cette maison de 3 chambres (95m² avant agrandissement) offre une conception unique : sa pièce de vie, intelligemment positionnée, vous donne la liberté de l’adapter à l’exposition idéale de votre terrain. Modifiez ou ajoutez des ouvertures pour créer l’espace baigné de lumière dont vous rêvez. Une suite parentale avec dressing et salle d’eau vient parfaire ce confort sur-mesure. • Lumineuse avec cuisine ouverte donnant sur son jardin. • Beaux volumes et distribution optimisée des pièces pour votre confort de vie. • Aménagements et équipements de haut niveau : volets roulants motorisés et connectés, système de chauffage par pompe à chaleur, domotique, carrelage grand format. ET SI VOUS FAISIEZ CONSTRUIRE AVEC MAISONS ALYSIA ?Testez notre configurateur en ligne et chiffrez instantanément votre projet personnalisé, téléchargeable. • Gratuit, rapide et sans engagement. • + de 250 modèles de maisons personnalisables. • Calculettes en ligne pour identifier votre budget et évaluer votre future mensualité. Rendez-vous sur notre site maisons-alysia(.com) pour concrétiser votre rêve. Contactez-nous au (Numéro supprimé) pour finaliser votre projet ! Coût du terrain inclus dans cette offre. Hors peintures et faïence, revêtements de sol des chambres. Hors assurance dommages-ouvrage, frais de notaire et frais d’adaptation du terrain éventuels.Cette offre est proposée en collaboration avec notre partenaire foncier selon disponibilités. Contact : au (Numéro supprimé).
Gensac-la-Pallue
TERRAIN ET MAISONMaison neuve à construire PALMIER_2CH_68_V1 BELLE MAISON DE 2 CHAMBRES Cette maison de 2 chambres offre une superficie initiale de 68 m2 habitable avant agrandissement. Elle propose une pièce de vie de 31 m2 évolutive selon vos besoins et vos souhaits. • Lumineuse avec cuisine ouverte donnant sur son jardin. • Beaux volumes et distribution optimisée des pièces pour votre confort de vie. • Aménagements et équipements de haut niveau : volets roulants motorisés et connectés, système de chauffage par pompe à chaleur, domotique, carrelage grand format. ET SI VOUS FAISIEZ CONSTRUIRE AVEC MAISONS ALYSIA ?Testez notre configurateur en ligne et chiffrez instantanément votre projet personnalisé, téléchargeable. • Gratuit, rapide et sans engagement. • + de 250 modèles de maisons personnalisables. • Calculettes en ligne pour identifier votre budget et évaluer votre future mensualité. Rendez-vous sur notre site maisons-alysia(.com) pour concrétiser votre rêve. Contactez-nous au (Numéro supprimé) pour finaliser votre projet ! Coût du terrain inclus dans cette offre. Hors peintures et faïence, revêtements de sol des chambres. Hors assurance dommages-ouvrage, frais de notaire et frais d’adaptation du terrain éventuels.Cette offre est proposée en collaboration avec notre partenaire foncier selon disponibilités. Contact : au (Numéro supprimé).
Cherves-Richemont
TERRAIN ET MAISONMaison neuve à construire MAGNOLIA_3CH_70_V1 BELLE MAISON DE 3 CHAMBRES Cette maison de 3 chambres offre une distribution optimisée des pièces. Ce plan compact et fonctionnel a été pensé pour faciliter l’accès à la propriété avec un budget maîtrisé. • Lumineuse avec cuisine ouverte donnant sur son jardin. • Beaux volumes et distribution optimisée des pièces pour votre confort de vie. • Aménagements et équipements de haut niveau : volets roulants motorisés et connectés, système de chauffage par pompe à chaleur, domotique, carrelage grand format. ET SI VOUS FAISIEZ CONSTRUIRE AVEC MAISONS ALYSIA ?Testez notre configurateur en ligne et chiffrez instantanément votre projet personnalisé, téléchargeable. • Gratuit, rapide et sans engagement. • + de 250 modèles de maisons personnalisables. • Calculettes en ligne pour identifier votre budget et évaluer votre future mensualité. Rendez-vous sur notre site maisons-alysia(.com) pour concrétiser votre rêve. Contactez-nous au (Numéro supprimé) pour finaliser votre projet ! Coût du terrain inclus dans cette offre. Hors peintures et faïence, revêtements de sol des chambres. Hors assurance dommages-ouvrage, frais de notaire et frais d’adaptation du terrain éventuels.Cette offre est proposée en collaboration avec notre partenaire foncier selon disponibilités. Contact : au (Numéro supprimé).
Châteaubernard
TERRAIN ET MAISONMaison neuve à construire PEPINO_2CH_73_V1 BELLE MAISON DE 2 CHAMBRES Cette maison de 2 chambres (73m² avant agrandissement) offre une conception unique : sa pièce de vie, intelligemment positionnée, vous donne la liberté de l’adapter à l’exposition idéale de votre terrain. Modifiez ou ajoutez des ouvertures pour créer l’espace baigné de lumière dont vous rêvez. Une suite parentale avec dressing vient parfaire ce confort sur-mesure. • Lumineuse avec cuisine ouverte donnant sur son jardin. • Beaux volumes et distribution optimisée des pièces pour votre confort de vie. • Aménagements et équipements de haut niveau : volets roulants motorisés et connectés, système de chauffage par pompe à chaleur, domotique, carrelage grand format. ET SI VOUS FAISIEZ CONSTRUIRE AVEC MAISONS ALYSIA ?Testez notre configurateur en ligne et chiffrez instantanément votre projet personnalisé, téléchargeable. • Gratuit, rapide et sans engagement. • + de 250 modèles de maisons personnalisables. • Calculettes en ligne pour identifier votre budget et évaluer votre future mensualité. Rendez-vous sur notre site maisons-alysia(.com) pour concrétiser votre rêve. Contactez-nous au (Numéro supprimé) pour finaliser votre projet ! Coût du terrain inclus dans cette offre. Hors peintures et faïence, revêtements de sol des chambres. Hors assurance dommages-ouvrage, frais de notaire et frais d’adaptation du terrain éventuels.Cette offre est proposée en collaboration avec notre partenaire foncier selon disponibilités. Contact : au (Numéro supprimé).
Cherves-Richemont
TERRAIN ET MAISONMaison neuve à construire FRENE_4CH_111_V1 BELLE MAISON DE 4 CHAMBRES Cette maison de 4 chambres offre un aspect extérieur équilibré et harmonieux, une façade réduite et une surface habitable initiale généreuse de 111 m². Outre, son agréable pièce de vie de 42m², ce plan propose de spacieuses chambres, dont une suite parentale au rez-de-chaussée avec sa propre salle d’eau, une entrée séparée pratique et utile grâce à ses espaces bureau et placard… un plan de référence pour répondre à vos critères. • Lumineuse avec cuisine ouverte donnant sur son jardin. • Beaux volumes et distribution optimisée des pièces pour votre confort de vie. • Aménagements et équipements de haut niveau : volets roulants motorisés et connectés, système de chauffage par pompe à chaleur, domotique, carrelage grand format. ET SI VOUS FAISIEZ CONSTRUIRE AVEC MAISONS ALYSIA ?Testez notre configurateur en ligne et chiffrez instantanément votre projet personnalisé, téléchargeable. • Gratuit, rapide et sans engagement. • + de 250 modèles de maisons personnalisables. • Calculettes en ligne pour identifier votre budget et évaluer votre future mensualité. Rendez-vous sur notre site maisons-alysia(.com) pour concrétiser votre rêve. Contactez-nous au (Numéro supprimé) pour finaliser votre projet ! Coût du terrain inclus dans cette offre. Hors peintures et faïence, revêtements de sol des chambres. Hors assurance dommages-ouvrage, frais de notaire et frais d’adaptation du terrain éventuels.Cette offre est proposée en collaboration avec notre partenaire foncier selon disponibilités. Contact : au (Numéro supprimé).
Cognac
TERRAIN ET MAISONMaison neuve à construire FRENE_4CH_111_V1 BELLE MAISON DE 4 CHAMBRES Cette maison de 4 chambres offre un aspect extérieur équilibré et harmonieux, une façade réduite et une surface habitable initiale généreuse de 111 m². Outre, son agréable pièce de vie de 42m², ce plan propose de spacieuses chambres, dont une suite parentale au rez-de-chaussée avec sa propre salle d’eau, une entrée séparée pratique et utile grâce à ses espaces bureau et placard… un plan de référence pour répondre à vos critères. • Lumineuse avec cuisine ouverte donnant sur son jardin. • Beaux volumes et distribution optimisée des pièces pour votre confort de vie. • Aménagements et équipements de haut niveau : volets roulants motorisés et connectés, système de chauffage par pompe à chaleur, domotique, carrelage grand format. ET SI VOUS FAISIEZ CONSTRUIRE AVEC MAISONS ALYSIA ?Testez notre configurateur en ligne et chiffrez instantanément votre projet personnalisé, téléchargeable. • Gratuit, rapide et sans engagement. • + de 250 modèles de maisons personnalisables. • Calculettes en ligne pour identifier votre budget et évaluer votre future mensualité. Rendez-vous sur notre site maisons-alysia(.com) pour concrétiser votre rêve. Contactez-nous au (Numéro supprimé) pour finaliser votre projet ! Coût du terrain inclus dans cette offre. Hors peintures et faïence, revêtements de sol des chambres. Hors assurance dommages-ouvrage, frais de notaire et frais d’adaptation du terrain éventuels.Cette offre est proposée en collaboration avec notre partenaire foncier selon disponibilités. Contact : au (Numéro supprimé).
Nercillac
TERRAIN ET MAISONMaison neuve à construire BAOBAB_3CH_98_V2 BELLE MAISON DE 3 CHAMBRES Voyez la vie en double avec cette grande maison.Avec son double garage, ses deux espaces nuits isolés, ses deux salles de bains, ses 2 grandes baies vitrées dans la pièce de vie qui sont prolongées par deux terrasses.Profitez de la vie chez vous en deux fois plus grand ! Vivez votre rêve en ayant deux fois plus de confort toujours avec un cout de construction attractif chez Maisons Alysia. • Lumineuse avec cuisine ouverte donnant sur son jardin. • Beaux volumes et distribution optimisée des pièces pour votre confort de vie. • Aménagements et équipements de haut niveau : volets roulants motorisés et connectés, système de chauffage par pompe à chaleur, domotique, carrelage grand format. ET SI VOUS FAISIEZ CONSTRUIRE AVEC MAISONS ALYSIA ?Testez notre configurateur en ligne et chiffrez instantanément votre projet personnalisé, téléchargeable. • Gratuit, rapide et sans engagement. • + de 250 modèles de maisons personnalisables. • Calculettes en ligne pour identifier votre budget et évaluer votre future mensualité. Rendez-vous sur notre site maisons-alysia(.com) pour concrétiser votre rêve. Contactez-nous au (Numéro supprimé) pour finaliser votre projet ! Coût du terrain inclus dans cette offre. Hors peintures et faïence, revêtements de sol des chambres. Hors assurance dommages-ouvrage, frais de notaire et frais d’adaptation du terrain éventuels.Cette offre est proposée en collaboration avec notre partenaire foncier selon disponibilités. Contact : au (Numéro supprimé).
Châteaubernard
TERRAIN ET MAISONMaison neuve à construire FRENE_4CH_111_V1 BELLE MAISON DE 4 CHAMBRES Cette maison de 4 chambres offre un aspect extérieur équilibré et harmonieux, une façade réduite et une surface habitable initiale généreuse de 111 m². Outre, son agréable pièce de vie de 42m², ce plan propose de spacieuses chambres, dont une suite parentale au rez-de-chaussée avec sa propre salle d’eau, une entrée séparée pratique et utile grâce à ses espaces bureau et placard… un plan de référence pour répondre à vos critères. • Lumineuse avec cuisine ouverte donnant sur son jardin. • Beaux volumes et distribution optimisée des pièces pour votre confort de vie. • Aménagements et équipements de haut niveau : volets roulants motorisés et connectés, système de chauffage par pompe à chaleur, domotique, carrelage grand format. ET SI VOUS FAISIEZ CONSTRUIRE AVEC MAISONS ALYSIA ?Testez notre configurateur en ligne et chiffrez instantanément votre projet personnalisé, téléchargeable. • Gratuit, rapide et sans engagement. • + de 250 modèles de maisons personnalisables. • Calculettes en ligne pour identifier votre budget et évaluer votre future mensualité. Rendez-vous sur notre site maisons-alysia(.com) pour concrétiser votre rêve. Contactez-nous au (Numéro supprimé) pour finaliser votre projet ! Coût du terrain inclus dans cette offre. Hors peintures et faïence, revêtements de sol des chambres. Hors assurance dommages-ouvrage, frais de notaire et frais d’adaptation du terrain éventuels.Cette offre est proposée en collaboration avec notre partenaire foncier selon disponibilités. Contact : au (Numéro supprimé).
Cognac
TERRAIN ET MAISONMaison neuve à construire CANNELIER_3CH_97_V2 BELLE MAISON DE 3 CHAMBRES Imaginez votre futur chez-vous, deux fois plus grand : Double garage, deux espaces nuit bien séparés avec 2 chambres + 1 suite parentale, deux salles de bains, deux grandes baies vitrées ouvertes sur deux terrasses, dont une abritée sous un grand préau idéal pour les journées ensoleillées. Plus de confort, plus de lumière, plus de liberté — toujours accessible avec Maisons Alysia. • Lumineuse avec cuisine ouverte donnant sur son jardin. • Beaux volumes et distribution optimisée des pièces pour votre confort de vie. • Aménagements et équipements de haut niveau : volets roulants motorisés et connectés, système de chauffage par pompe à chaleur, domotique, carrelage grand format. ET SI VOUS FAISIEZ CONSTRUIRE AVEC MAISONS ALYSIA ?Testez notre configurateur en ligne et chiffrez instantanément votre projet personnalisé, téléchargeable. • Gratuit, rapide et sans engagement. • + de 250 modèles de maisons personnalisables. • Calculettes en ligne pour identifier votre budget et évaluer votre future mensualité. Rendez-vous sur notre site maisons-alysia(.com) pour concrétiser votre rêve. Contactez-nous au (Numéro supprimé) pour finaliser votre projet ! Coût du terrain inclus dans cette offre. Hors peintures et faïence, revêtements de sol des chambres. Hors assurance dommages-ouvrage, frais de notaire et frais d’adaptation du terrain éventuels.Cette offre est proposée en collaboration avec notre partenaire foncier selon disponibilités. Contact : au (Numéro supprimé).
Nercillac
TERRAIN ET MAISONMaison neuve à construire IRIS_PATRIMOINE_2CH_52_V1 BELLE MAISON DE 2 CHAMBRES Cette maison de 2 chambres offre une distribution avantageuse alliant simplicité, optimisation et coûts de construction attractif. Son garage intégré offre un réel avantage : le gain d’une pièce supplémentaire à un coût minimisé. Ce plan a été pensé pour faciliter l’accès à la propriété avec un budget maîtrisé. • Lumineuse avec cuisine ouverte donnant sur son jardin. • Beaux volumes et distribution optimisée des pièces pour votre confort de vie. • Aménagements et équipements de haut niveau : volets roulants motorisés et connectés, système de chauffage par pompe à chaleur, domotique, carrelage grand format. ET SI VOUS FAISIEZ CONSTRUIRE AVEC MAISONS ALYSIA ?Testez notre configurateur en ligne et chiffrez instantanément votre projet personnalisé, téléchargeable. • Gratuit, rapide et sans engagement. • + de 250 modèles de maisons personnalisables. • Calculettes en ligne pour identifier votre budget et évaluer votre future mensualité. Rendez-vous sur notre site maisons-alysia(.com) pour concrétiser votre rêve. Contactez-nous au (Numéro supprimé) pour finaliser votre projet ! Coût du terrain inclus dans cette offre. Hors peintures et faïence, revêtements de sol des chambres. Hors assurance dommages-ouvrage, frais de notaire et frais d’adaptation du terrain éventuels.Cette offre est proposée en collaboration avec notre partenaire foncier selon disponibilités. Contact : au (Numéro supprimé).
L’actualité immobilière à Cognac
13/10/2022
07/10/2022
03/10/2022
26/09/2022
16/09/2022
09/09/2022